QUOTE:
原帖由 20151215 于 16-8-24 20:53 发表
每天做饭的话,表示还是有点担心油烟问题
就开放式厨房的油烟问题,我专门在装大同学的贴子上提问,有好几个使用开放式厨房,并且天天在家开火的同学纷纷表示每天做饭的话,表示还是有点担心油烟问题
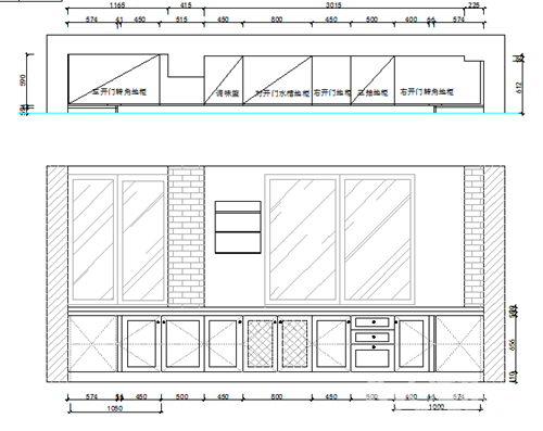
油烟不是问题。所以,我才决定考虑开放式厨房,而且我还留了后手,确保以后如果感觉油烟太重可以加装移门。,

| 期中预算大盘点 | ||||
| 总价 | 尚未支付 | |||
| 硬 装 部 分 | 1 | 卫浴洁具,洗衣盆,花洒,浴缸,洗脸盆柜等 | ||
| 2 | 硅藻泥 | |||
| 3 | 中央空调 | |||
| 4 | 瓷砖 | |||
| 5 | 楼梯 | |||
| 6 | 物业垃圾运输费 | |||
| 7 | 装潢公司装修工程款 | |||
| 8 | 厨柜(水槽,龙头) | |||
| 9 | 现浇楼顶 | |||
| 10 | 配电箱、断路器、地插 | |||
| 11 | 太阳能控制器 | |||
| 12 | 阳光房、封阳台 | |||
| 13 | 16平方主线 | |||
| 14 | 室外配电箱80*60*20 | |||
| 15 | 配电箱 | |||
| 16 | 集成吊顶 | |||
| 17 | 壁炉(京东商城) | |||
| 18 | 酒柜定制,衣柜门板定制 | |||
| 19 | 打家具 | |||
| 20 | 地板 | |||
| 21 | 木门 | |||
| 22 | 石材 | |||
| 23 | 集成灶、蒸箱 | |||
| 24 | 热水器 | |||
| 25 | 墙纸 | |||
| 27 | 移门,淋浴房 | |||
| 28 | 开关面板 | |||
| 29 | 三角阀、地漏 | |||
| 30 | 全屋主灯具 | |||
| 32 | 保险柜 | |||
| 37 | 填缝剂,瓷砖粘合剂 | |||
| 38 | 美缝 | |||
| 38 | 辅灯,筒灯等 | |||
| 38 | 拖把池 | |||
| 39 | ||||
| 小 计 | 634,076.00 | |||
| 软 装 部 份 | ||||
| 1 | 家具 | |||
| 2 | 晒衣架 | |||
| 3 | 冰箱、电视、小家电 | |||
| 4 | 窗帘 | |||
| 5 | 沙窗 | |||
| 6 | 防盗窗铁艺,花园围栏 | |||
| 7 | 挂画,摆件 | |||
| 8 | 厨房用具 | |||
| 9 | 遥控门铃、网络设备 | |||
| 10 | ||||
| 小 计 | ||||
| 总 计 | ||||





