| 标题
快捷导航

精彩推荐:MY0511客户端下载

    • 中信银行镇江分行

    • 公益体彩 乐善人生

    • 鹏龙鸿蒙

    • 天然石材·人造石

    » 梦溪论坛 » 家庭装修 » 微微简美,浓浓幸福——吾悦装修随记(已近尾声)
    家庭装修  >  [装修日记] 微微简美,浓浓幸福——吾悦装修随记(已近尾声)     
    查看: 98462  回复: 303
     304  1/7  1  2  3  4  5  6  7  > 
    [装修日记] 微微简美,浓浓幸福——吾悦装修随记(已近尾声)      查看: 98462  回复: 303
    • 来自 江苏省
    • 精华 0
    • 注册 2017-10-24
    •  
    微微简美,浓浓幸福——吾悦装修随记(已近尾声)



    【小区名称】:吾悦广场
    【所在楼层】:22
    【建筑面积】:143.5
    【装修风格】:简 美
    【包工方式】:半 包
    【设计公司】:十二间工作室
    【设 计 师】:王 欣
    【装修公司】:苏 匠
    【开工日期】:2018年11月23日
    【装修预算】:待 定
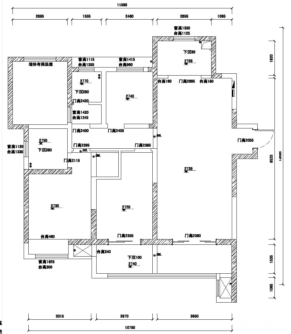
    【户型图片】:










    [ 本帖最后由 无为99 于 18-7-27 07:39 编辑 ]





                      
    • 来自 江苏省
    • 精华 0
    • 注册 2017-10-24
    •  

        经过很长时间的思想斗争,这个日记是写呢,还是不写呢?    真正是没有勇气提笔,也可能是现在的自己确实慵懒了。
        十几年前,意气风发加入装修大军时的情景,还依稀记得,当时自己也曾写过一个不了了之的装修日记,也曾多次参加网友的团购会,还记得那时有个团长叫做天下有雪,泰山等当年的大神们,又已经在路上,可是我当年的ID都已经寻不到踪迹,罢了罢了,就让一切重新开始吧,我也该整装待发了。
        不过我对自己真的是没有什么信心,一个没有文采的理工男,却又偏偏不是技术控,喜欢跟着感觉走,估计也写不出什么装修日记,暂且就叫做装修流水账吧,不为其他,十年轮回再次上路,重点是给自己一个交代吧!
        总之,不管如何,我来了!


    [ 本帖最后由 无为99 于 17-10-25 10:03 编辑 ]




    • 来自 江苏省
    • 精华 0
    • 注册 2017-10-24
    •  

         说到买房,也应该属于激情买房吧,前期没有详细的规划,也没有过多的考察,仅仅是走进去看过了,就决定了,就这样子!          

         在等待了一年半之后,昨天终于拿到了钥匙,新家也如约揭开了神秘的面纱!






    [ 本帖最后由 无为99 于 17-10-25 10:03 编辑 ]




    • 来自 江苏省
    • 精华 0
    • 注册 2017-10-24
    •  

    经过十二间设计室设计师们的努力,效果图终于千呼万唤始出来







    [ 本帖最后由 无为99 于 17-11-25 23:13 编辑 ]




    • 来自 江苏省
    • 精华 0
    • 注册 2017-10-24
    •  

    所选产品:
    施工:苏匠装饰
    设计:十二间工作室
    水电材料:日丰、金貂、飞利浦
    腻子:圣戈班
    板材:艾格欧松板
    橱柜:欧派橱柜
    木门、护墙板、踢脚线:关亨木门
    全屋定制:欧卡罗
    油漆:芬琳漆
    墙纸、软装:嫣然家居
    家具:瑞格瑞奇、印象北美、雅苏格兰
    移门:大自然移门
    封阳台、外窗:撒诺凯
    集成吊顶:美的集成吊顶
    地板:大建地板
    瓷砖:曼联瓷砖
    美缝:时立
    卫浴洁具:法恩莎
    中央空调:东芝
    冰箱、洗衣机:松下
    洗碗机:西门子
    燃气热水器:林内
    强弱电箱、空气开关:施耐德(网购)
    开关面板:施耐德、西蒙(网购)
    升降衣架:好太太
    指纹门锁、电子猫眼:海康威视莹石(网购)
    射灯、筒灯:记忆点(网购)
    室内门锁、五金:(网购)
    保险箱:(网购)

    床垫:舒达、爱舒

    [ 本帖最后由 无为99 于 18-4-21 00:06 编辑 ]




    • 来自 江苏省
    • 精华 0
    • 注册 2017-10-24
    •  

    占楼




    • 来自 江苏省
    • 精华 0
    • 注册 2017-10-24
    •  

    占楼




    • 来自 江苏省
    • 精华 0
    • 注册 2017-10-24
    •  

    占楼




    • 来自 江苏省
    • 精华 0
    • 注册 2017-10-24
    •  

    占楼




    • 来自 江苏省
    • 精华 0
    • 注册 2017-10-24
    •  

    占这么多,也不知道用的上不




    • 来自 江苏省
    • 精华 0
    • 注册 2003-1-3
    •  
    • 来自 江苏省
    • 精华 0
    • 注册 2017-9-21
    •  

    恭喜楼主




    • 来自 江苏省
    • 精华 0
    • 注册 2017-10-24
    •  


    QUOTE:
    原帖由 微斯人 于 17-10-24 21:59 发表
    邻居同户型
    邻居好,这不是巧了嘛,这不是
    邻居房子拿了嘛?




    • 来自 江苏省
    • 精华 0
    • 注册 2017-10-24
    •  


    QUOTE:
    原帖由 A尚工美缝 于 17-10-24 22:06 发表
    恭喜楼主
    谢谢尚工!




    • 来自 浙江省
    • 精华 0
    • 注册 2010-6-19
    • 行业 商业贸易
    •  

    邻居好,同一单元




    • 来自 江苏省
    • 精华 0
    • 注册 2017-10-24
    •  


    QUOTE:
    原帖由 非诚勿窈 于 17-10-25 00:12 发表
    邻居好,同一单元
    邻居好邻居好!不过在下有一事不明,您是怎么判断出我们是一个单元的啊




    • 来自 江苏省
    • 精华 0
    • 注册 2017-10-10
    •  

    恭喜邻居开贴呀,看见你们的文笔都这么好,我都不好意思更贴了




    • 来自 江苏省
    • 精华 0
    • 注册 2017-10-24
    •  

           前面前前后后的也跑了几家装修公司,最后情定苏匠!

          理由?似乎没有理由!谈得来算吗!不管是跟王总吹牛逼,还是跟王帅哥沟通想法,都感觉很舒服,所以就他了。


          还是跟着感觉走吧,真正的理由可能需要苏匠和时间来给我吧!

          感谢王总、王欣百忙之中抽身来现场莅临指导,荣幸之至!




    [ 本帖最后由 无为99 于 17-10-25 10:13 编辑 ]
















    • 来自 江苏省
    • 精华 0
    • 注册 2016-10-20
    • 行业 其它
    •  


    QUOTE:
    原帖由 流尘 于 2017-10-25 09:52 发表
    恭喜邻居开贴呀,看见你们的文笔都这么好,我都不好意思更贴了
    居然看到熟人了。




    • 来自 江苏省
    • 精华 0
    • 注册 2016-10-20
    • 行业 其它
    •  


    QUOTE:
    原帖由 优金瓷美缝 于 2017-10-25 09:56 发表

    居然看到熟人了。
    看错了。这头像太像了




    • 来自 江苏省
    • 精华 0
    • 注册 2017-10-24
    •  


    QUOTE:
    原帖由 流尘 于 17-10-25 09:52 发表
    恭喜邻居开贴呀,看见你们的文笔都这么好,我都不好意思更贴了
    流尘兄,就别埋汰哥哥了,我这也叫文笔啊装修流水账,拿不上台面,仅仅是记录一下装修点滴,为自己的装修留下一点点痕迹而已!!




    • 来自 江苏省
    • 精华 0
    • 注册 2017-10-24
    •  


    QUOTE:
    原帖由 优金瓷美缝 于 17-10-25 09:58 发表

    看错了。这头像太像了
    没关系,那是我邻居,欢迎优总来做客!!




    • 来自 江苏省
    • 精华 0
    • 注册 2017-3-13
    •  

    恭喜恭喜,一切顺利!




    • 来自 江苏省
    • 精华 0
    • 注册 2017-10-24
    •  


    QUOTE:
    原帖由 柏尔地板 于 17-10-25 13:12 发表
    恭喜恭喜,一切顺利!
    谢谢老板,生意兴隆!




    • 来自 江苏省
    • 精华 0
    • 注册 2017-10-9
    • 行业 房产建筑
    •  

    恭喜恭喜




    • 来自 江苏省
    • 精华 55
    • 注册 2017-2-10
    •  

    恭喜开工~~




    • 来自 江苏省
    • 精华 0
    • 注册 2017-5-5
    • 行业 房产建筑
    •  

    恭喜啊,关注下,邻居




    • 来自 江苏省
    • 精华 7
    • 注册 2005-9-7
    • 行业 其它
    • 家装达人
    •  


    QUOTE:
    原帖由 无为99 于 17-10-24 21:41 发表
        经过很长时间的思想斗争,这个日记是写呢,还是不写呢?    真正是没有勇气提笔,也可能是现在的自己确实慵懒了 ...

    你也是10来年之前的装大同学啊?你再想想你当年的ID呢
    今年装修我们又同是选择了十二间设计和苏匠施工
    真正是缘分





    • 来自 江苏省
    • 精华 0
    • 注册 2003-1-3
    •  

    我也在跑材料呢,你啥时开工啊




    • 来自 江苏省
    • 精华 4
    • 注册 2008-7-25
    • 行业 房产建筑
    • 我是车主 家装达人
    •  

    恭喜开贴,王欣设计,苏匠施工,必定又是和泰山大哥家一样的精品




    • 来自 江苏省
    • 精华 0
    • 注册 2017-10-24
    •  


    QUOTE:
    原帖由 好莱客全屋定制 于 17-10-25 14:12 发表
    恭喜恭喜
    感谢老板大驾光临!




    • 来自 江苏省
    • 精华 0
    • 注册 2017-10-24
    •  


    QUOTE:
    原帖由 佳安舒适家 于 17-10-25 14:44 发表
    恭喜开工~~
    感谢老板关注!




    • 来自 江苏省
    • 精华 0
    • 注册 2017-10-24
    •  


    QUOTE:
    原帖由 万达壁纸软装 于 17-10-25 17:30 发表
    恭喜啊,关注下,邻居
    邻居好,欢迎邻居来串门!




    • 来自 江苏省
    • 精华 0
    • 注册 2017-10-24
    •  


    QUOTE:
    原帖由 泰山 于 17-10-25 22:00 发表

    你也是10来年之前的装大同学啊?你再想想你当年的ID呢
    今年装修我们又同是选择了十二间设 ...

    泰山大神好!今天能有勇气开帖,有一半是因为大神的督促!曾经的ID好像叫自由落体1999,可是密码忘记了,那时没有绑定手机,找了好久未果,一个新的ID,一个新的开始,也未尝不是一件好事!是啊,缘分啊,正所谓人生何处不相逢,还望多多指教!!


    [ 本帖最后由 无为99 于 17-10-26 08:32 编辑 ]




    • 来自 江苏省
    • 精华 0
    • 注册 2017-10-24
    •  


    QUOTE:
    原帖由 delarge 于 17-10-25 22:18 发表
    恭喜开贴,王欣设计,苏匠施工,必定又是和泰山大哥家一样的精品
    如果没认错,应该是呱呱兄弟吧,大名如雷贯耳!欢迎莅临指导!




    • 来自 江苏省
    • 精华 0
    • 注册 2017-10-24
    •  


    QUOTE:
    原帖由 微斯人 于 17-10-25 22:16 发表
    我也在跑材料呢,你啥时开工啊
    现在在等设计,何时开工取决于设计什么时候能够完成!!我们一样刚刚上路,加油哦!




    • 来自 江苏省
    • 精华 0
    • 注册 2016-2-26
    • 行业 房产建筑
    •  

    恭喜恭喜开工大吉




    • 来自 江苏省
    • 精华 0
    • 注册 2017-10-24
    •  


    QUOTE:
    原帖由 洛克华菲.滑动门 于 17-10-25 22:47 发表
    恭喜恭喜开工大吉
    谢谢洛克大驾光临,生意兴隆哦!




    • 来自 江苏省
    • 精华 0
    • 注册 2012-8-13
    • 行业 其它
    •  

    恭喜恭喜




    • 来自 江苏省
    • 精华 0
    • 注册 2017-10-9
    • 行业 基础设施
    •  

    :clapping::clapping::clapping::clapping::clapping:




    • 来自 江苏省
    • 精华 0
    • 注册 2015-12-23
    • 行业 房产建筑
    •  

    恭喜拿房




    • 来自 江苏省
    • 精华 0
    • 注册 2016-4-30
    •  
    • 来自 江苏省
    • 精华 0
    • 注册 2016-5-13
    •  

    恭喜开工!!!美心蒙迪木门现双十活动,欢迎来门店看看!13913448737钟




    • 来自 江苏省
    • 精华 7
    • 注册 2005-9-7
    • 行业 其它
    • 家装达人
    •  


    QUOTE:
    原帖由 无为99 于 17-10-25 22:36 发表

    泰山大神好!今天能有勇气开帖,有一半是因为大神的督促!曾经的ID好像叫自由落体1999,可是密码忘记了,那时没有绑定手机,找了好久未果,一个新的ID,一个新的开始,也未尝不是一件好 ...

    自由落体1999这个ID,我是有印象的,我2006年装修时我们有过交流的;
    刚才搜索到了你们当年的装修日记:http://bbs.my0511.com/f95b-t654069z?highlight=,确实是缘分啊,10年前大家一起装修,10年后又一起装修,又一起写装修日记,而且今年还是选择的同一家设计公司和装修公司




    • 来自 江苏省
    • 精华 2
    • 注册 2008-1-12
    • 行业 其它
    •  

    恭喜开工!




    • 来自 江苏省
    • 精华 0
    • 注册 2012-4-6
    • 行业 商业贸易
    •  

    瓜瓜在圈里名气很大嘛恭喜开工啊




    • 来自 江苏省
    • 精华 1
    • 注册 2013-1-28
    • 行业 政府行政
    • 我是车主
    •  

    恭喜开工




    • 来自 江苏省
    • 精华 0
    • 注册 2005-9-26
    •  

    还没开工就开贴了,这速度




    • 来自 江苏省
    • 精华 4
    • 注册 2008-7-25
    • 行业 房产建筑
    • 我是车主 家装达人
    •  


    QUOTE:
    原帖由 无为99 于 17-10-25 22:40 发表

    如果没认错,应该是呱呱兄弟吧,大名如雷贯耳!欢迎莅临指导!
    不知无为大哥如何称呼,大家认识就是缘分 说来您才是装大前辈,和泰山大哥都是我的前辈呢




    • 来自 江苏省
    • 精华 0
    • 注册 2013-7-12
    • 行业 教育科研
    • 家装达人
    •  
     304  1/7  1  2  3  4  5  6  7  > 
    查看积分策略说明快速回复主题
    您目前还是游客,请 登录注册
    您目前是游客,本帖已被系统设置了自动关闭,不可回复!

    0/5000字

     
    < >
     

    Powered by Discuz! X 2 0.094259 s 清除 Cookies - 镇江网友之家 - 手机版
    论坛导航 关闭