我们选择在新年的第一天,来开启这一段奇妙的旅程(当时的心情是超激动的,因为奋斗了这么多年,终于有属于自己的家喽~哈哈
)在此说明一下,由于之前没有时间整理,最近才有时间发现有很多的心得分享给大家。
,
[ 本帖最后由 蔷薇泡沫7 于 18-7-7 18:36 编辑 ]
一不小心又跑偏了。

【建筑面积】:100㎡
【装修预算】:20万左右(但是预算等于决算
)

,有的人把卫生间打通出去,虽然解决了卫生间小,但是厨房的采光呢,NO NO
,还是找个专业的人做专业的事吧!
(你们估计也会挑花眼,对吧)。分别看了各个设计工作室的案例,看到21设计金奂工作室的作品时,感觉空间气质感不错;看了设计师金奂的简介,作品还曾获过全国设计大赛的金奖;又看了一些业主的家装日记,发现他们服务的还是很细致的,更令我惊喜的是,工作室就在北固湾,真心是方便啊,于是预约了一下设计师,没想到还挺忙的
,约到了之后几天,于是耐心的等待了一下。
~先上一张想要的感觉,也是在去工作室之前准备的。
),
。
,看来还是要找专业的人来做专业事。。。
,一定要吃的网红菠萝冰激凌,
)送上我们当时的午餐

)
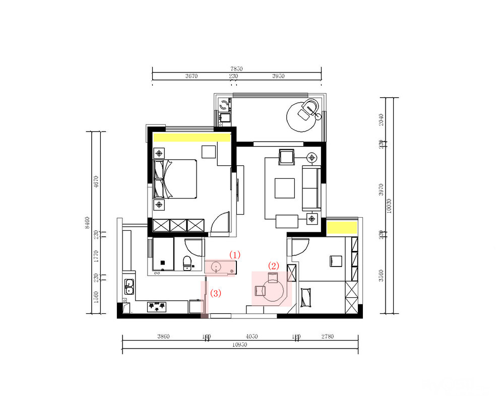
相似户型的可以参考哦!
),足足扩了4个平米出来。
~设计师给我推荐了一个看一眼就喜欢上的若隐柜(这一些都来自于他们团队对我审美的认真分析啊
),强烈要求设计师设计进去,
。
)
。
)
和一些收纳的图片给你们参考,户型图,平面方案在上一篇日记中。留下厨房很漂亮的瓷砖延伸和洗面池的悬念(哈哈,想让你们继续看我日记的小套路
)





























