《褪去浮华》
小区:彩虹城
面积:180㎡
风格:港式现代
设计单位:泽一设计





概况:3月底客户和妈妈在同一天下午两次进店
为什么会二次进店呢?
客户的妈妈当时说了一句话,让设计师尤为深刻
“对比其他几家店,相比较而言,泽一设计公司的图纸尺寸很精细,别人家只标注了1-2条尺寸,而你们标注了3条,细节决定一切”
谢谢阿姨的认可!(做事我们是认真的,更是注意细节的
)
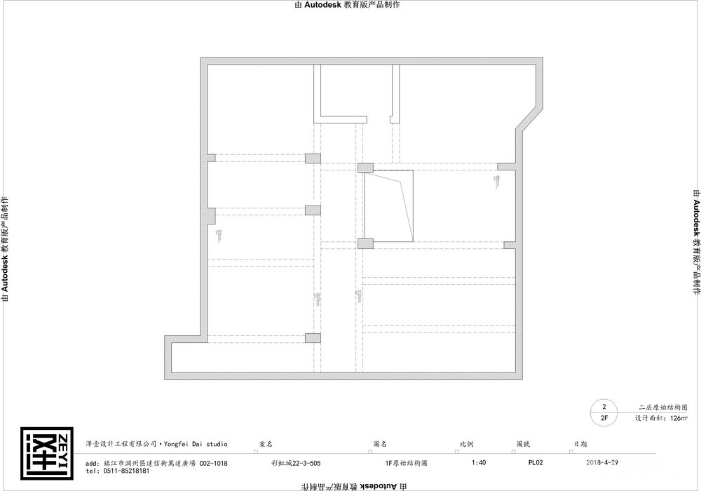
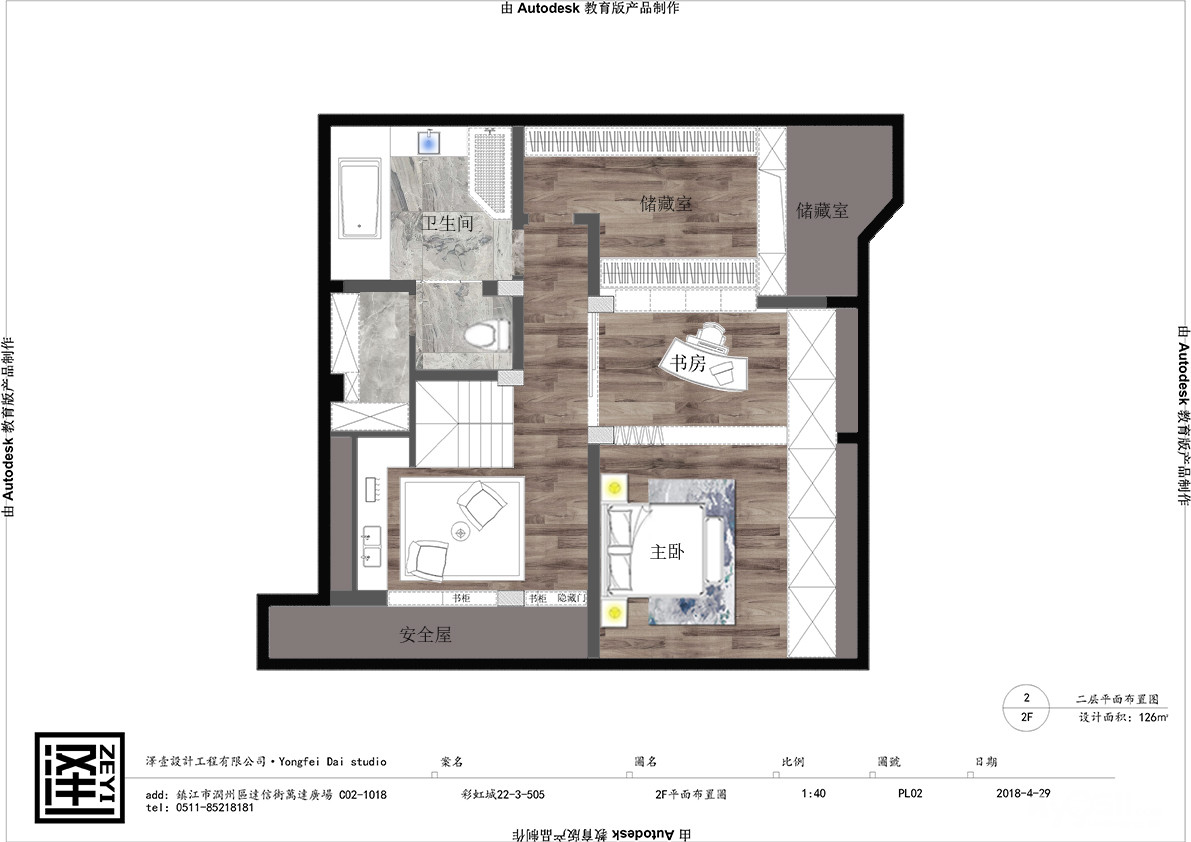
先看平面图




由于该户是顶复带有阁楼,而且原有楼梯位置并不合理,所以格局改动相对较大。
4月12日顺利开工~
回顾从初次见面到后期整个装修过程,沟通都很愉快合拍;
目前半包已经结束,大安装也已经进入收尾阶段。
[ 本帖最后由 泽一设计 于 2019-3-7 13:04 编辑 ]







