| 标题
快捷导航

精彩推荐:MY0511客户端下载

    • 中信银行镇江分行

    • 公益体彩 乐善人生

    • 鹏龙鸿蒙

    • 天然石材·人造石

    » 梦溪论坛 » 家庭装修 » 瑞阳装饰1 » 施工中案例---北固湾 ❥简约美式❥
    瑞阳装饰1  >  [作品欣赏] 施工中案例---北固湾 ❥简约美式❥     
    查看: 3740  回复: 5
    [作品欣赏] 施工中案例---北固湾 ❥简约美式❥      查看: 3740  回复: 5
    • 来自 江苏省
    • 精华 115
    • 注册 2011-1-5
    • 行业 房产建筑
    •  
    施工中案例---北固湾 ❥简约美式❥

    【案例地址】:北固湾2-2204

    【案例风格】:简美

    【设计师】 :何松荣

    【质检经理】: 谢佩清

    烈恭贺葛总豪宅开工大吉!感谢您对瑞阳装饰|精品设计的信任和支持。


    我们依旧秉承客户至上,质量第一的理念,用心打造优质放心工程


    祝福我们的客户,全家幸福,平安顺遂






    [ 本帖最后由 【瑞阳装饰】 于 2020-7-31 17:30 编辑 ]





                      
    • 来自 江苏省
    • 精华 115
    • 注册 2011-1-5
    • 行业 房产建筑
    •  

    【原始结构图】




    [ 本帖最后由 【瑞阳装饰】 于 2020-2-11 18:37 编辑 ]




    • 来自 江苏省
    • 精华 115
    • 注册 2011-1-5
    • 行业 房产建筑
    •  

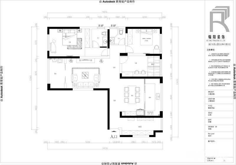
    【平面方案图】







    [ 本帖最后由 【瑞阳装饰】 于 2020-2-20 23:21 编辑 ]




    • 来自 江苏省
    • 精华 115
    • 注册 2011-1-5
    • 行业 房产建筑
    •  

    【效果图】







    [ 本帖最后由 【瑞阳装饰】 于 2020-2-20 23:22 编辑 ]




    • 来自 江苏省
    • 精华 115
    • 注册 2011-1-5
    • 行业 房产建筑
    •  

    【效果图】







    [ 本帖最后由 【瑞阳装饰】 于 2020-2-20 23:22 编辑 ]




    • 来自 江苏省
    • 精华 115
    • 注册 2011-1-5
    • 行业 房产建筑
    •  

    【效果图】







    [ 本帖最后由 【瑞阳装饰】 于 2020-2-20 23:22 编辑 ]




    查看积分策略说明快速回复主题
    您目前还是游客,请 登录注册
    您目前是游客,本帖已被系统设置了自动关闭,不可回复!

    0/5000字

     
    < >
     

    Powered by Discuz! X 2 0.059296 s 清除 Cookies - 镇江网友之家 - 手机版
    论坛导航 关闭