| 标题
快捷导航

精彩推荐:MY0511客户端下载

    • 中信银行镇江分行

    • 公益体彩 乐善人生

    • 鹏龙鸿蒙

    • 天然石材·人造石

    » 梦溪论坛 » 家庭装修 » 瑞阳装饰1 » 施工中案例---中冶玉翠园❥中现代轻奢❥
    瑞阳装饰1  >  [作品欣赏] 施工中案例---中冶玉翠园❥中现代轻奢❥     
    查看: 11972  回复: 2
    [作品欣赏] 施工中案例---中冶玉翠园❥中现代轻奢❥      查看: 11972  回复: 2
    • 来自 江苏省
    • 精华 115
    • 注册 2011-1-5
    • 行业 房产建筑
    •  
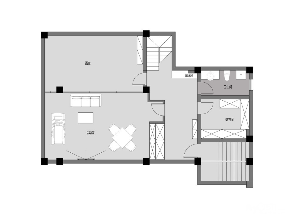
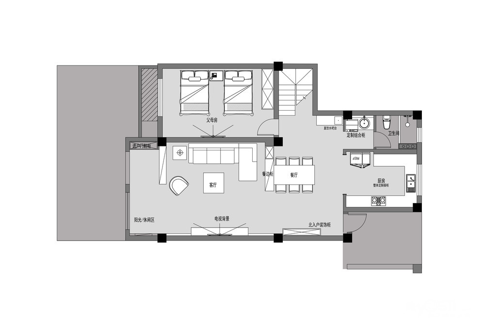
    施工中案例---中冶玉翠园❥中现代轻奢❥

    【案例地址】:中冶玉翠园

    【案例风格】:现代轻奢

    【设计师】 :何松荣

    【质检经理】: 许学飞





    [ 本帖最后由 【瑞阳装饰】 于 2022-1-25 16:44 编辑 ]





                      
    • 来自 江苏省
    • 精华 115
    • 注册 2011-1-5
    • 行业 房产建筑
    •  

    效果图案例

















    [ 本帖最后由 【瑞阳装饰】 于 2020-8-6 11:27 编辑 ]




    • 来自 江苏省
    • 精华 1
    • 注册 2006-3-11
    •  

    专业媒体设计团队,有多年传统纸媒和新媒体(公众号、H5微传单、短视频等)策划设计和编辑经验,可提供专业的新媒体设计制作上线和推广,活动策划,案例内容的编辑和发布,公众号抖音号内容的制作和发布。联系QQ/微信992514074,电话:13952807340





    查看积分策略说明快速回复主题
    您目前还是游客,请 登录注册
    您目前是游客,本帖已被系统设置了自动关闭,不可回复!

    0/5000字

     
    < >
     

    Powered by Discuz! X 2 0.065514 s 清除 Cookies - 镇江网友之家 - 手机版
    论坛导航 关闭