原始结构:
1.原始结构的入户区空间过于零碎有一小卫生间,对于目前屋主的家庭结构并不适合
2.餐厨区过于独立封闭,使用功能混乱,对于有两个宝宝的家庭来讲,需要强调厨房的使用率和功能性
3.走廊区域布局不合理,过于零碎,无采光,走廊尽头的小空间利用率不高且浪费空间
4.储物间处于整个空间中心的位置,并不合理
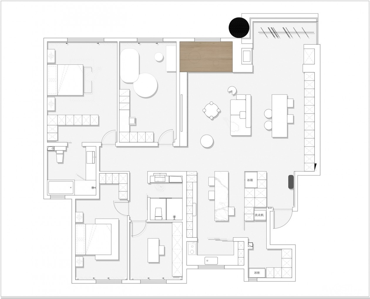
空间优化
1.将门厅处的小卫生间拆除并进行分割,一部分作为西厨冰箱、蒸烤箱以及高柜的储物使用,一小部分划为储物间/设备间内使用,刚好放下家政柜和洗衣机,更加充分的利用空间,
2.因屋主长期生活在日本,对门厅储物空间要求较高,此处设置了一个储物间,作为日常放置宝宝外出推 车使用,
3.进入储物间的门从原始结构的中厨进入改到西厨进入,有效增加了中厨的使用和日常操作的便利性,
4.中西厨分开,宽敞岛台简约实用,方便日常简餐,西厨收纳增加,空间更加规整,动线更加舒适,
5.宽敞的公区设立客餐一体,2.5m加长的餐桌可以方便日常和孩子一起做手工、看书的功能,
6.靠窗区域做了木制地台,有很好的采光,可以作为小宝宝晒太阳和练习爬行的区域,
7.走廊区域也进行了重新整理,增加了老人房的储物空间让公区更加整洁干净。










[ 本帖最后由 金螳螂设计 于 2022-11-11 14:46 编辑 ]







