| 标题
快捷导航

精彩推荐:MY0511客户端下载

    • 中信银行镇江分行

    • 公益体彩 乐善人生

    • 鹏龙鸿蒙

    • 天然石材·人造石

    » 梦溪论坛 » 家庭装修 » 皇家大宅设计 » 恭贺象山花园12-601(施工更新)
    皇家大宅设计  >  [在建工地] 恭贺象山花园12-601(施工更新)     
    查看: 2160  回复: 3
    [在建工地] 恭贺象山花园12-601(施工更新)      查看: 2160  回复: 3
    • 来自 江苏省
    • 精华 0
    • 注册 2016-8-9
    • 行业 房产建筑
    •  
    恭贺象山花园12-601(施工更新)

    业   主  】:象山花园12#601杨先生
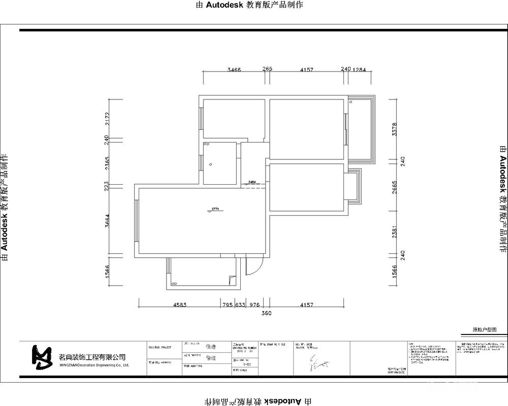
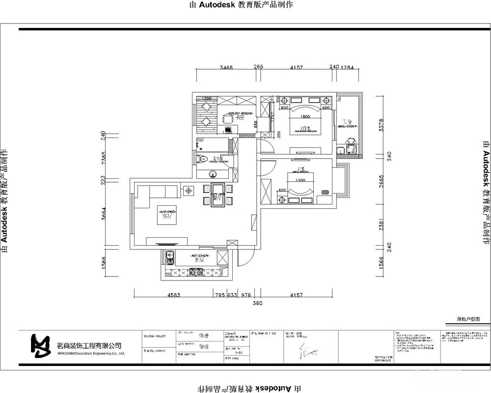
    【建筑面积】:100
    【工程造价】:10.2万(全包)
    【装修风格】:  北欧宜家风
    【  设    计 】
    徐进
    【项目经理】
    唐经理

    【户型图】










    [ 本帖最后由 茗典装饰客服1 于 17-7-20 10:46 编辑 ]





































                      
    • 来自 江苏省
    • 精华 0
    • 注册 2016-8-9
    • 行业 房产建筑
    •  

    镇江茗典装饰工程有限公司成立于2008年11月, AA级企业,国家二级资质,希望小米可以给您的生活带来不一样的感受

    公司地址:镇江市丁卯新区东锦花园小区入口处9栋201室
                
    联系电话:小米15996809365(微信同号)公司网站www.zjmdzh.com




    • 来自 江苏省
    • 精华 0
    • 注册 2015-5-27
    •  
    宣美设计






    • 来自 江苏省
    • 精华 0
    • 注册 2016-8-9
    • 行业 房产建筑
    •  

    施工现场














    本公司,茗典装饰,AAA级品质,二级资质,千万注册资金,在镇江大港新区都有分公司,希望小米可以给您的生活带来不一样的感受

    公司地址:镇江市丁卯新区东锦花园小区入口处9栋201室
                
    联系电话:小米15996809365(微信同号)公司网站【此处为站外链接,请谨慎打开】






    [ 本帖最后由 茗典装饰客服1 于 17-7-20 10:49 编辑 ]




    查看积分策略说明快速回复主题
    您目前还是游客,请 登录注册
    您目前是游客,本帖已被系统设置了自动关闭,不可回复!

    0/5000字

     
    < >
     

    Powered by Discuz! X 2 0.062738 s 清除 Cookies - 镇江网友之家 - 手机版
    论坛导航 关闭