| 标题
快捷导航

精彩推荐:MY0511客户端下载

    • 中信银行镇江分行

    • 公益体彩 乐善人生

    • 鹏龙鸿蒙

    • 天然石材·人造石

    » 梦溪论坛 » 家庭装修 » 易兆精品设计 » 第六空间4F家居馆新中式(开工大吉)
    易兆精品设计  >  [在建工地] 第六空间4F家居馆新中式(开工大吉)     
    查看: 6242  回复: 2
    [在建工地] 第六空间4F家居馆新中式(开工大吉)      查看: 6242  回复: 2
    • 来自 江苏省
    • 精华 75
    • 注册 2017-2-10
    • 行业 房产建筑
    •  
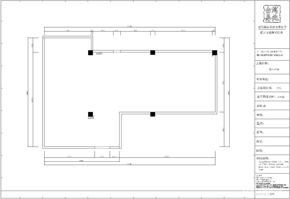
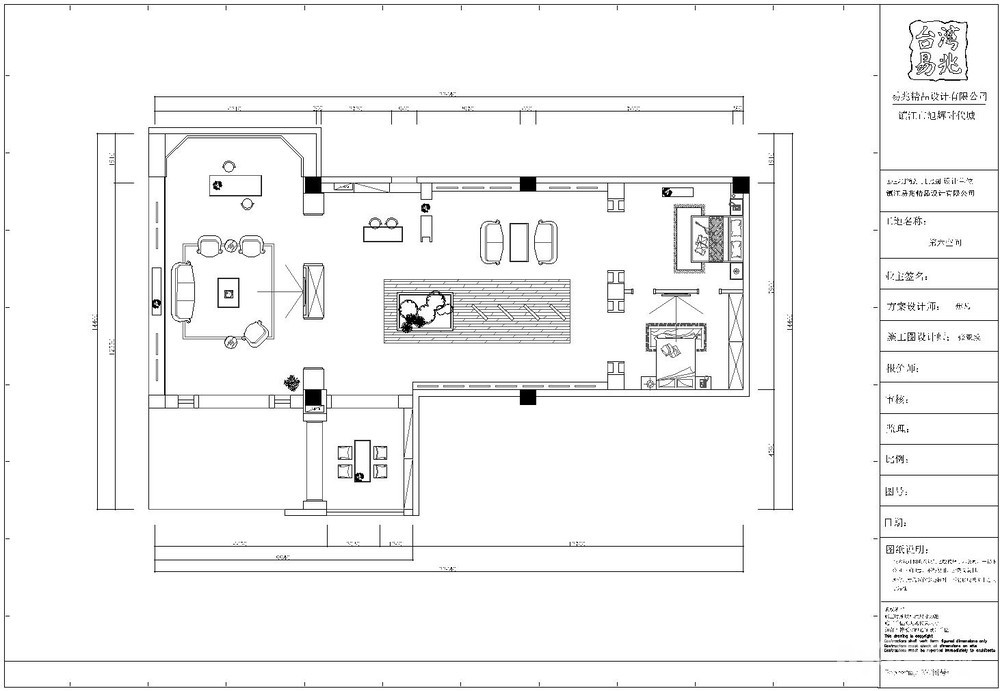
    第六空间4F家居馆新中式(开工大吉)

    项目地址:第六空间生活家居馆

    项目面积237

    装修风格:新中式


    原始结构图:




    平面布置图:




    效果图:
















    装修进度请持续关注!





    [ 本帖最后由 易兆精品设计 于 2019-4-1 14:49 编辑 ]









                      
    • 来自 江苏省
    • 精华 0
    • 注册 2017-2-18
    •  






    • 来自 江苏省
    • 精华 0
    • 注册 2017-2-17
    • 行业 房产建筑
    •  






    查看积分策略说明快速回复主题
    您目前还是游客,请 登录注册
    您目前是游客,本帖已被系统设置了自动关闭,不可回复!

    0/5000字

     
    < >
     

    Powered by Discuz! X 2 0.057456 s 清除 Cookies - 镇江网友之家 - 手机版
    论坛导航 关闭