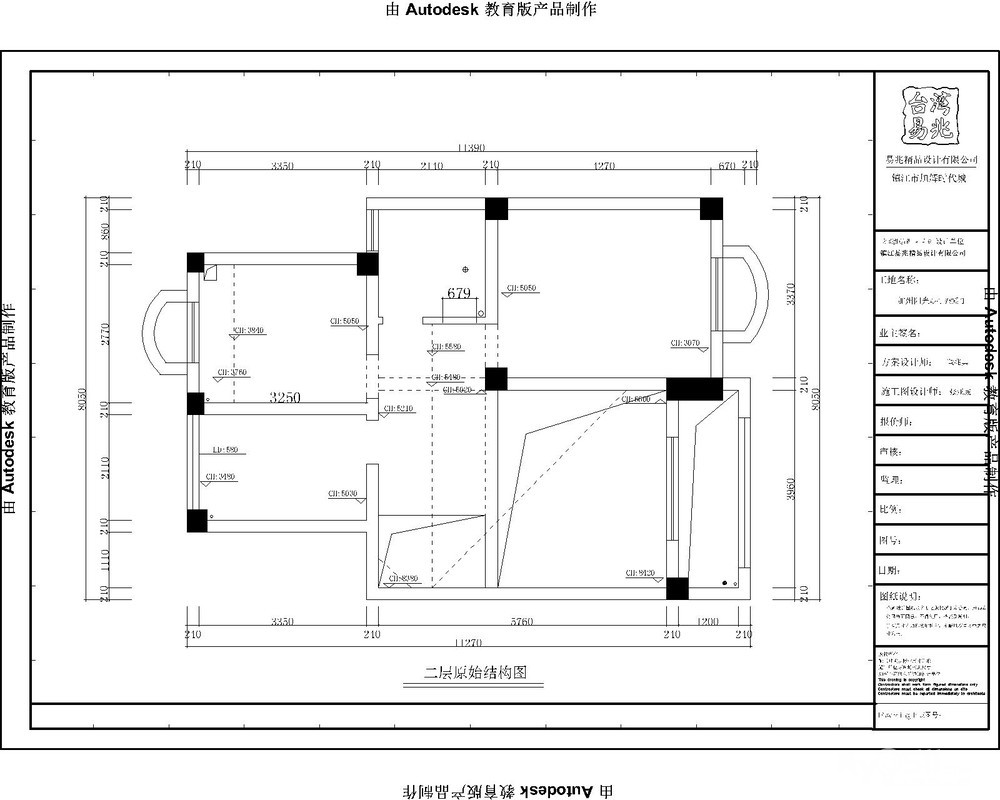
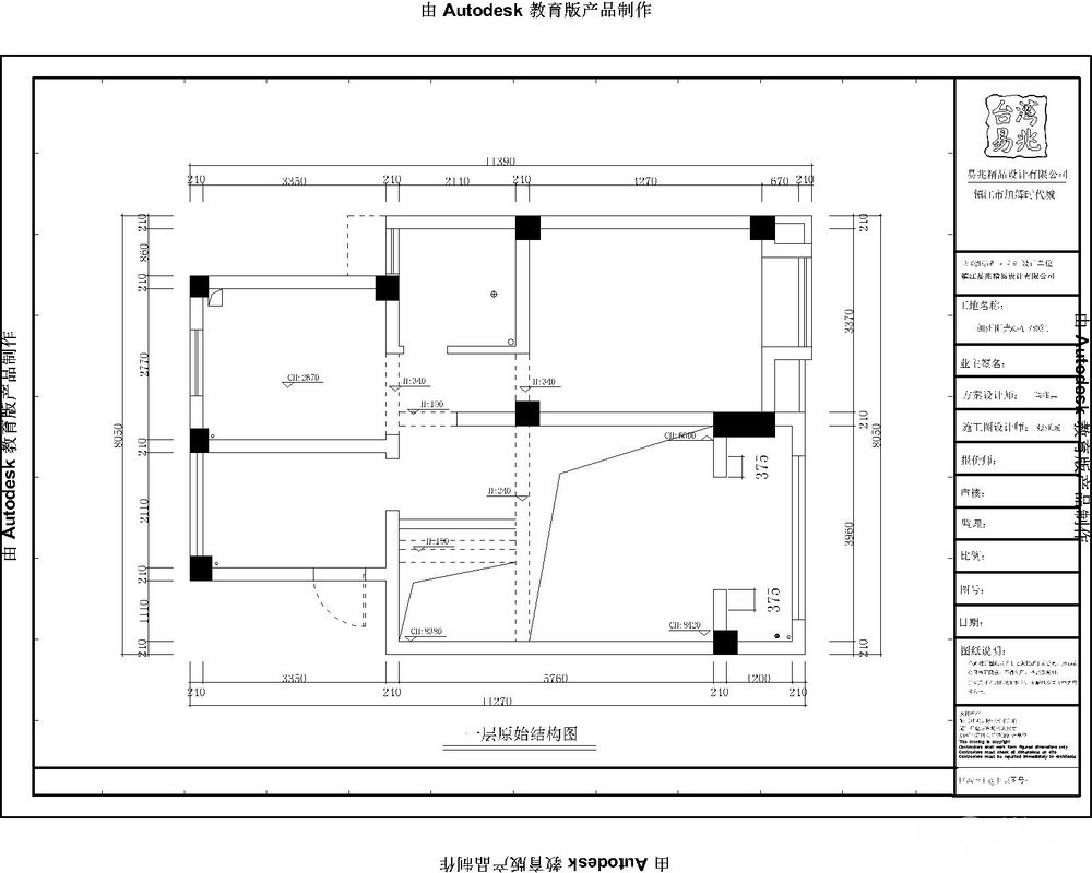
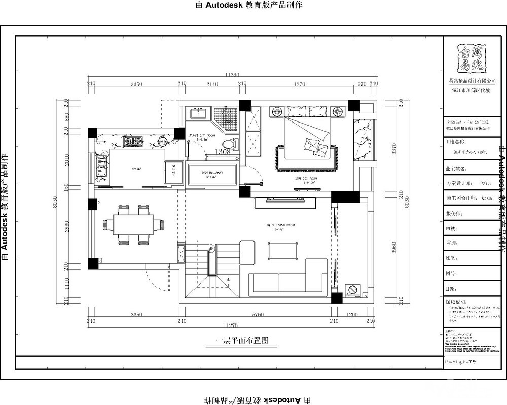
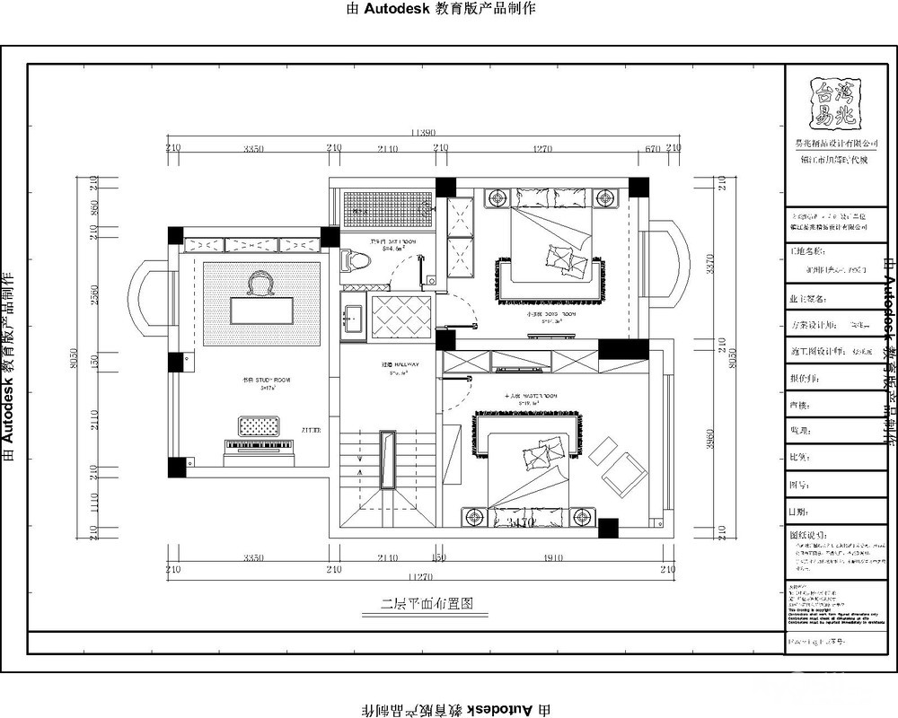
![]() 总设计师:董兆典 从事室内设计研究14年 2003年毕业于上饶师院 武汉大学研修 中国室内设计协会CIID高级会员 镇江室内设计师协会会员 镇江艺术家协会会员 国际空间室内设计艾特入围奖 中业慧谷设计大赛一等奖 <<六空杯>>小品设计大赛二等奖 【项目地址】:加州阳光 【项目面积】:210㎡ 【装修风格】:新中式 【项目设计师】:董兆典 【施工图设计师】:张亚威 【设计咨询】:13376152588(董) 原始结构图:
![]() 主卧效果图: ![]() ![]() |
[ 本帖最后由 易兆精品设计 于 2022-11-17 16:03 编辑 ]
















