| 标题
快捷导航

精彩推荐:MY0511客户端下载

    • 中信银行镇江分行

    • 公益体彩 乐善人生

    • 鹏龙鸿蒙

    • 天然石材·人造石

    » 梦溪论坛 » 家庭装修 » 易兆精品设计 » 亚东紫檀新古典风格——杨砾设计(水电完工验收)
    易兆精品设计  >  [在建工地] 亚东紫檀新古典风格——杨砾设计(水电完工验收)     
    查看: 10670  回复: 7
    [在建工地] 亚东紫檀新古典风格——杨砾设计(水电完工验收)      查看: 10670  回复: 7
    • 来自 江苏省
    • 精华 75
    • 注册 2017-2-10
    • 行业 房产建筑
    •  
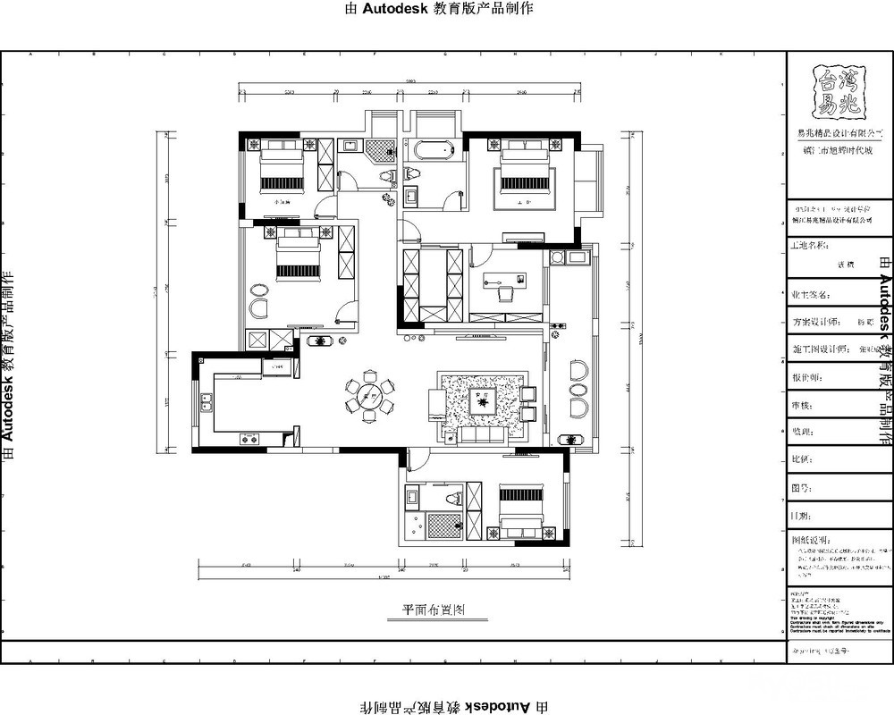
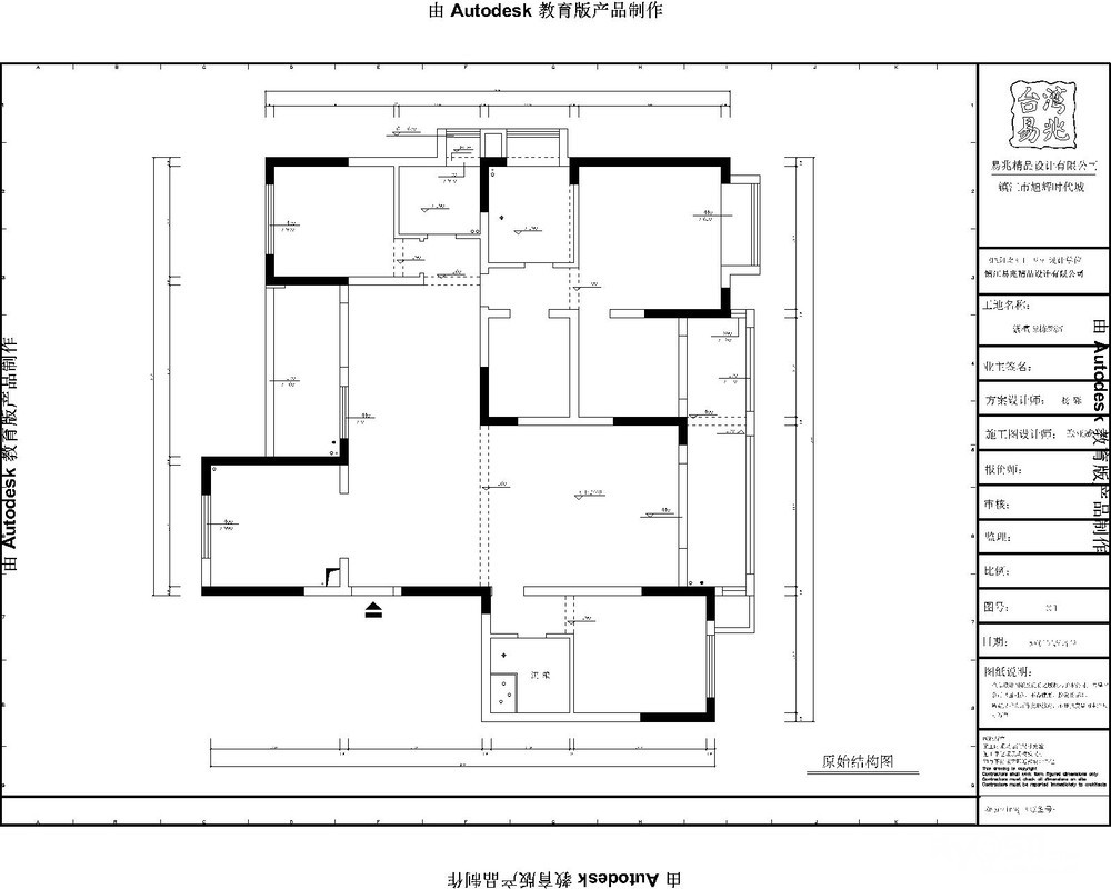
    亚东紫檀新古典风格——杨砾设计(水电完工验收)

    项目地址:亚东紫檀

    装修风格:新古典

    项目设计师:杨砾

    【施工图设计师:张亚威

    设计咨询15189188996(杨砾)

    原始结构图:



         平面布置图:



         客餐厅效果图:



         

         卧室效果图:



         

       




    [ 本帖最后由 易兆精品设计 于 17-8-6 09:51 编辑 ]





                      
    • 来自 江苏省
    • 精华 75
    • 注册 2017-2-10
    • 行业 房产建筑
    •  

    易兆精品设计亚东紫檀——水电完工验收合格




























    [ 本帖最后由 易兆精品设计 于 17-8-6 09:53 编辑 ]




    • 来自 江苏省
    • 精华 0
    • 注册 2017-2-18
    •  






    • 来自 江苏省
    • 精华 75
    • 注册 2017-2-10
    • 行业 房产建筑
    •  






    • 来自 江苏省
    • 精华 0
    • 注册 2017-2-18
    •  






    • 来自 江苏省
    • 精华 0
    • 注册 2017-10-29
    •  






    • 来自 江苏省
    • 精华 75
    • 注册 2017-2-10
    • 行业 房产建筑
    •  











    -------------------------------
    工作室电话:0511-89985899
    工作室地址:旭辉时代城5-101(第六空间西门对面)
    品质追求,永无止境。




    • 来自 0
    • 精华 0
    • 注册 2016-5-24
    • 行业 商业贸易
    •  






    查看积分策略说明快速回复主题
    您目前还是游客,请 登录注册
    您目前是游客,本帖已被系统设置了自动关闭,不可回复!

    0/5000字

     
    < >
     

    Powered by Discuz! X 2 0.062788 s 清除 Cookies - 镇江网友之家 - 手机版
    论坛导航 关闭