【项目地址】:德林艺墅
【项目面积】:250㎡
【项目设计师】:董兆典 易晓晓
【施工图设计师】:许锋
【效果图表现】:付小青
【设计咨询】:13376152588(董兆典)


本案设计整体风格以新中式为主,新中式风格,是专属中国人的精神和文化,意不直述,情不直露,是一种优雅与从容,也是一种境界与智慧。
整个客餐厅空间以红胡桃木和大理石瓷砖为主,红胡桃木的材质色泽均匀,油质感较强,其张扬色调中沉淀着古香古韵的典雅情怀,将其与大理石瓷砖的结合,可以最大化的呈现出中式的钟灵毓秀与富丽堂皇。未避免过于繁杂,其他软装搭配如窗帘,沙发,墙纸类,选择素雅,简单的中性色调。使整个空间氛围古韵悠然,鲜活灵修。
在卧室的设计中,中式传统文化和思想提倡质朴稳重的气性和品格,这与以沉稳厚重见长的棕色调有着异曲同工之妙,当自然的原木色调与新中式高调结合,可以沉淀出自然端方的君子品格。
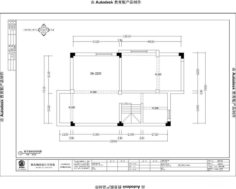
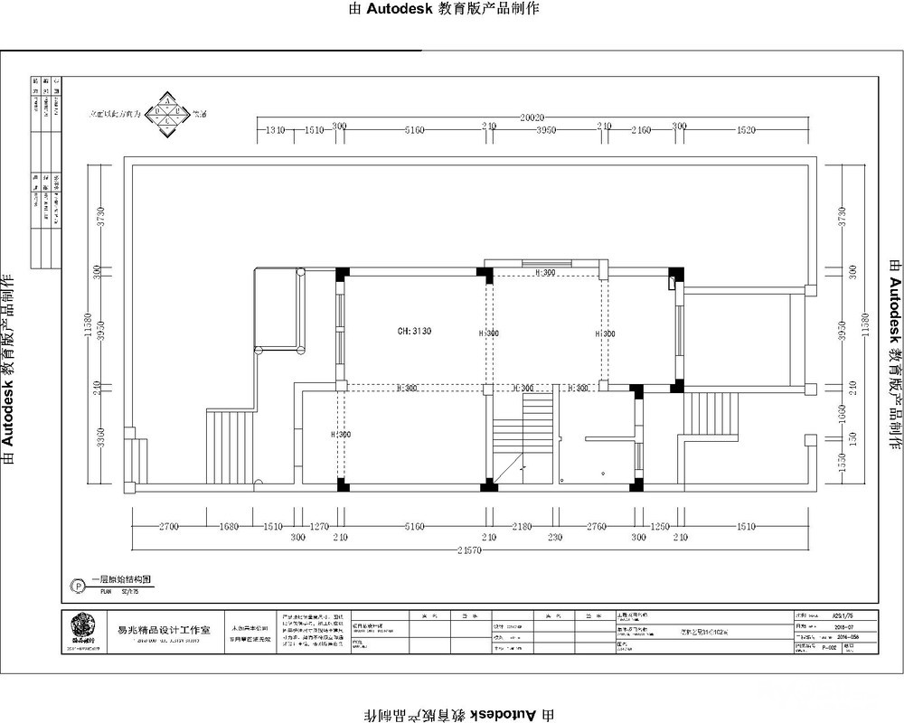
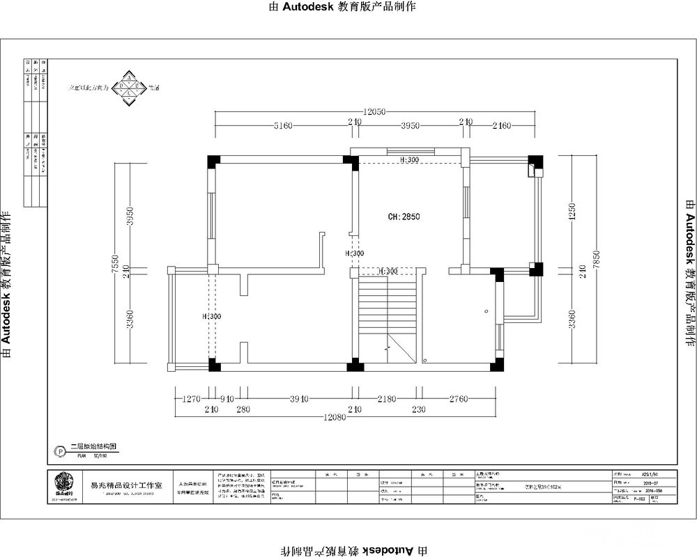
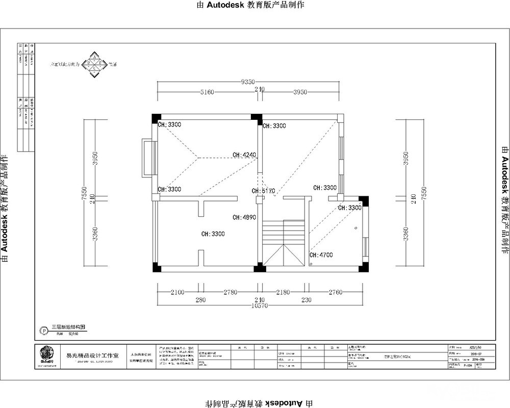
原始结构图:




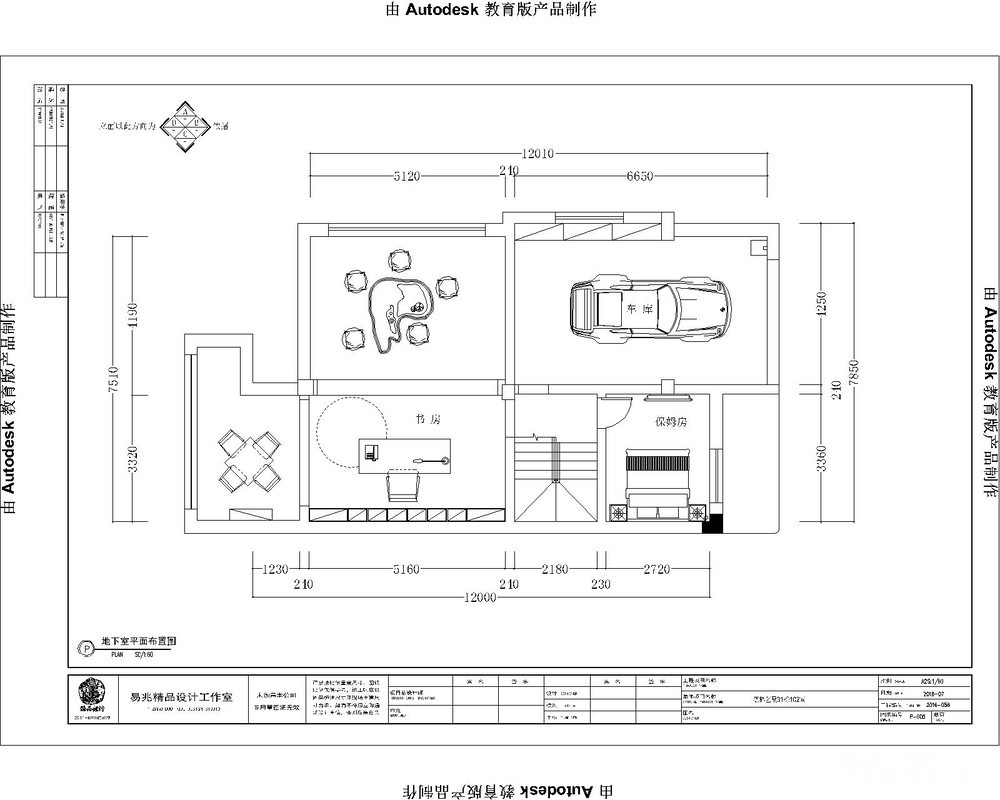
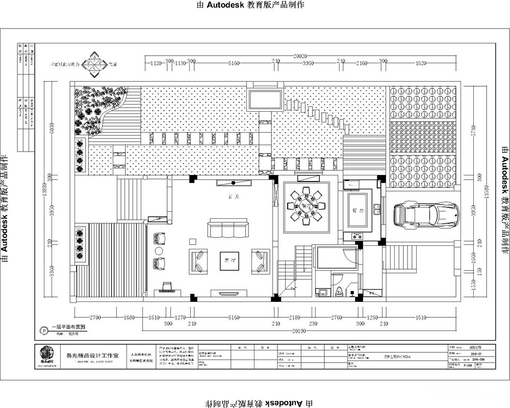
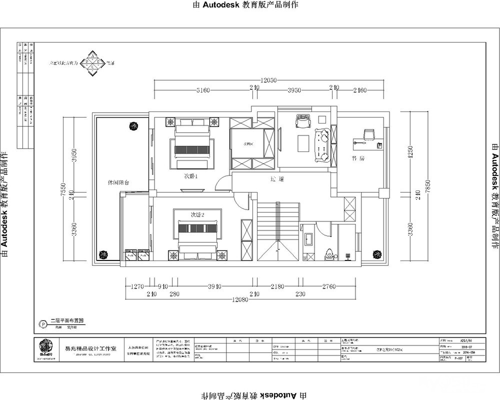
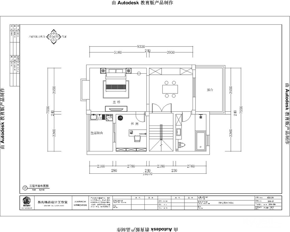
平面布置图:




效果图表现:








[ 本帖最后由 易兆精品设计 于 2022-11-17 15:52 编辑 ]








