【项目地址】:德林艺墅

【项目面积】:250㎡

【项目设计师】:董兆典

【施工图设计师】:许锋

【效果图表现】:付小青

【设计咨询】:13376152588(董兆典)



   
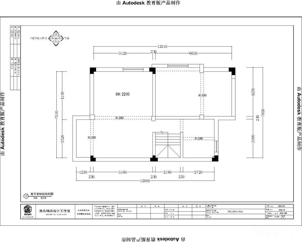
原始结构图:



   

   

   
平面布置图:


效果图表现:



   

   

   





[ 本帖最后由 易兆精品设计 于 2018-11-7 11:26 编辑 ]