| 标题
快捷导航

精彩推荐:MY0511客户端下载

    • 中信银行镇江分行

    • 公益体彩 乐善人生

    • 鹏龙鸿蒙

    • 天然石材·人造石

    » 梦溪论坛 » 家庭装修 » 易兆精品设计 » 实景|万科蓝山——秋日私语
    易兆精品设计  >  [作品欣赏] 实景|万科蓝山——秋日私语     
    查看: 37708  回复: 67
     68  1/2  1  2  > 
    [作品欣赏] 实景|万科蓝山——秋日私语      查看: 37708  回复: 67
    • 来自 江苏省
    • 精华 75
    • 注册 2017-2-10
    • 行业 房产建筑
    •  
    实景|万科蓝山——秋日私语




    作品:秋日私语(万科蓝山洋房)

    设计单位:易兆精品设计
           设计师:杨博 杨砾

    设计风格:美式
           项目面积:200㎡


    车水马龙

    真切、喧嚣

    彷徨 怀想

    曲水 流觞

    深、

    缅怀,

    一半烟火

          一半清欢

    [ 本帖最后由 易兆精品设计 于 2022-11-17 15:35 编辑 ]









                      
    • 来自 江苏省
    • 精华 0
    • 注册 2017-2-18
    •  






    • 来自 江苏省
    • 精华 0
    • 注册 2017-10-12
    • 行业 房产建筑
    •  

    这套我喜欢




    • 来自 0
    • 精华 0
    • 注册 2016-10-31
    •  

    喜欢这个,庭院设计,全屋颜色的搭配




    • 来自 江苏省
    • 精华 75
    • 注册 2017-2-10
    • 行业 房产建筑
    •  

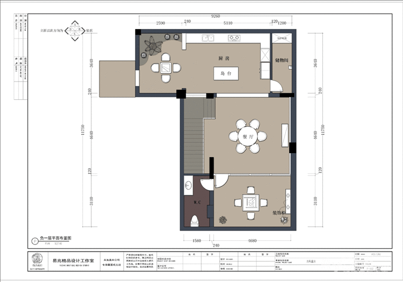
    这个房子是买一楼赠送的地下室,地下室的层高不错,但光线和通风有所欠缺,所以我们的设计重点就是:如何让地下室变的有生机。










    • 来自 江苏省
    • 精华 75
    • 注册 2017-2-10
    • 行业 房产建筑
    •  

    在一楼的设计上我们的重点就是楼梯的开口位置,如何让它和地下室形成更好的互动并让地下室更好的采光和通风!

    在楼梯的选择上我们花了很大的心思,在能改善地下室采光和通风的同时又不能影响楼上的布局。





    • 来自 江苏省
    • 精华 75
    • 注册 2017-2-10
    • 行业 房产建筑
    •  

    我们选择把楼梯开在了客厅窗子处,并在楼梯的尽头开一个经典的圆窗,点缀了风格又能和采光天井 内的室内花园形成互动,增添生机!










    [ 本帖最后由 易兆精品设计 于 18-4-13 10:22 编辑 ]




    • 来自 江苏省
    • 精华 75
    • 注册 2017-2-10
    • 行业 房产建筑
    •  






    • 来自 江苏省
    • 精华 75
    • 注册 2017-2-10
    • 行业 房产建筑
    •  






    • 来自 江苏省
    • 精华 75
    • 注册 2017-2-10
    • 行业 房产建筑
    •  

    天井内本意是要种棕榈树 和绿植墙的,由于种种原因和客观因素,换成了荔枝树和 鱼池!









    • 来自 江苏省
    • 精华 75
    • 注册 2017-2-10
    • 行业 房产建筑
    •  






    • 来自 江苏省
    • 精华 75
    • 注册 2017-2-10
    • 行业 房产建筑
    •  






    • 来自 江苏省
    • 精华 75
    • 注册 2017-2-10
    • 行业 房产建筑
    •  






    • 来自 江苏省
    • 精华 75
    • 注册 2017-2-10
    • 行业 房产建筑
    •  

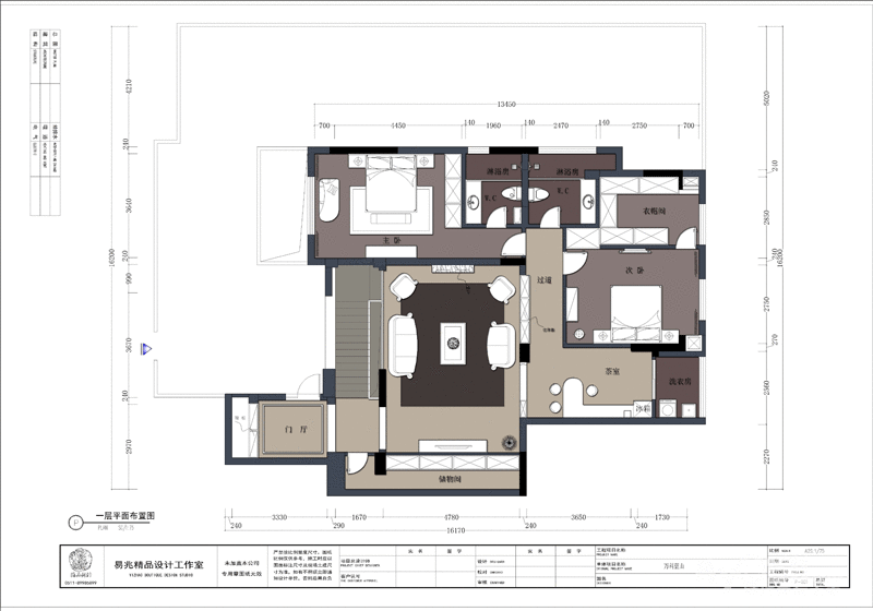
    一楼的层高问题,做完地暖后最高点只有2.6米了,故而在家具和灯的选择上我们用了无铁链的吊灯和浅色的布艺沙发,这样让空间生动灵快而不压抑。









    • 来自 江苏省
    • 精华 75
    • 注册 2017-2-10
    • 行业 房产建筑
    •  

    背景用了一块纹理特好的天然石材,在丰富材料纹理和色彩的同时增加了大自然的生命能量。









    • 来自 江苏省
    • 精华 75
    • 注册 2017-2-10
    • 行业 房产建筑
    •  






    • 来自 江苏省
    • 精华 75
    • 注册 2017-2-10
    • 行业 房产建筑
    •  






    • 来自 江苏省
    • 精华 75
    • 注册 2017-2-10
    • 行业 房产建筑
    •  



    [ 本帖最后由 易兆精品设计 于 18-4-13 10:32 编辑 ]




    • 来自 江苏省
    • 精华 75
    • 注册 2017-2-10
    • 行业 房产建筑
    •  

    咖啡吧









    • 来自 江苏省
    • 精华 75
    • 注册 2017-2-10
    • 行业 房产建筑
    •  

    主卧室









    • 来自 江苏省
    • 精华 75
    • 注册 2017-2-10
    • 行业 房产建筑
    •  

    散热片真的 没有地暖好看





    • 来自 江苏省
    • 精华 0
    • 注册 2017-3-22
    • 行业 房产建筑
    •  






    • 来自 0
    • 精华 0
    • 注册 2017-7-20
    • 行业 商业贸易
    •  






    • 来自 0
    • 精华 0
    • 注册 2017-7-20
    • 行业 商业贸易
    •  






    • 来自 0
    • 精华 0
    • 注册 2017-7-20
    • 行业 商业贸易
    •  






    • 来自 0
    • 精华 0
    • 注册 2017-7-20
    • 行业 商业贸易
    •  






    • 来自 0
    • 精华 0
    • 注册 2017-7-20
    • 行业 商业贸易
    •  






    • 来自 0
    • 精华 0
    • 注册 2017-7-20
    • 行业 商业贸易
    •  






    • 来自 江苏省
    • 精华 75
    • 注册 2017-2-10
    • 行业 房产建筑
    •  

    北固湾简美轻奢即将落地成品!





    • 来自 0
    • 精华 0
    • 注册 2017-7-20
    • 行业 商业贸易
    •  






    • 来自 0
    • 精华 0
    • 注册 2017-7-20
    • 行业 商业贸易
    •  






    • 来自 0
    • 精华 0
    • 注册 2017-7-20
    • 行业 商业贸易
    •  






    • 来自 0
    • 精华 0
    • 注册 2017-7-20
    • 行业 商业贸易
    •  






    • 来自 江苏省
    • 精华 0
    • 注册 2016-10-31
    •  
    • 来自 0
    • 精华 0
    • 注册 2017-7-20
    • 行业 商业贸易
    •  






    • 来自 0
    • 精华 0
    • 注册 2017-7-20
    • 行业 商业贸易
    •  






    • 来自 0
    • 精华 0
    • 注册 2017-7-20
    • 行业 商业贸易
    •  






    • 来自 0
    • 精华 0
    • 注册 2017-7-20
    • 行业 商业贸易
    •  






    • 来自 0
    • 精华 0
    • 注册 2017-7-20
    • 行业 商业贸易
    •  






    • 来自 0
    • 精华 0
    • 注册 2017-7-20
    • 行业 商业贸易
    •  






    • 来自 0
    • 精华 0
    • 注册 2017-7-20
    • 行业 商业贸易
    •  






    • 来自 0
    • 精华 0
    • 注册 2017-7-20
    • 行业 商业贸易
    •  






    • 来自 0
    • 精华 0
    • 注册 2017-7-20
    • 行业 商业贸易
    •  






    • 来自 0
    • 精华 0
    • 注册 2017-7-20
    • 行业 商业贸易
    •  






    • 来自 0
    • 精华 0
    • 注册 2017-7-20
    • 行业 商业贸易
    •  






    • 来自 0
    • 精华 0
    • 注册 2017-7-20
    • 行业 商业贸易
    •  






    • 来自 0
    • 精华 0
    • 注册 2017-7-20
    • 行业 商业贸易
    •  






    • 来自 0
    • 精华 0
    • 注册 2017-7-20
    • 行业 商业贸易
    •  






    • 来自 0
    • 精华 0
    • 注册 2017-7-20
    • 行业 商业贸易
    •  






     68  1/2  1  2  > 
    查看积分策略说明快速回复主题
    您目前还是游客,请 登录注册
    您目前是游客,本帖已被系统设置了自动关闭,不可回复!

    0/5000字

     
    < >
     

    Powered by Discuz! X 2 0.097204 s 清除 Cookies - 镇江网友之家 - 手机版
    论坛导航 关闭