。为了给孩子提供更好的学习环境,再把剩下的为数不多的资金拿来翻新,我们的业主就是这样的年轻夫妻。这是他们装修的第二套房子了,之前的那套由于没有什么经验,装饰性很重,采光、空间都没有设计的很好。对于这第二套房子,一来经济方面实在是资金不多,二来也想要简简单单的优雅风格,所以最后效果落地之后,业主和设计师都特别满意,既省钱又有效果。

项目地址 | 北固湾四期
项目类型 | 私宅—半包
项目面积 | 98平米
设计风格 | 现代美式
设计主创 | 朱玥
设计时间 | 2019.8
摄影时间 | 2020.11.18
设计公司 | 易兆精品设计-镇江公司
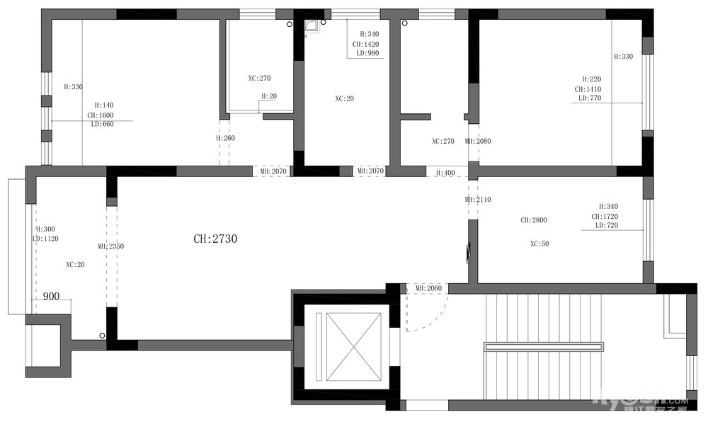
▶原户型图

原始户型弊端:餐厅无采光,白天相对较暗。
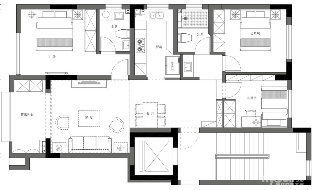
▶平面布局设计图

优化设计后优点:进门宽敞、开阔,光线充足。洗衣房放进主卫,洗完澡后衣服也洗好烘干,阳台可以完全做休闲阳台。
[ 本帖最后由 易兆精品设计 于 2022-11-18 16:58 编辑 ]






















