断 · 舍 · 离 & 返璞归真
断—断绝不需要的东西;
舍—舍去多余的废物;
离—脱离对物品的执着。
以功能为设计的中心和目的
最大程度的释放空间的体量
把有温度的细节
悉数藏到极简的空间里
和谐的同时体现质感和生活感
满足居住者对家的所有期待
项目地址 | 招商北固湾
项目类型 | 私宅
项目面积 | 98+m2
设计风格 | 古典中式
设计主创 | 朱 玥
参与设计 | 董智林、李雪婷
设计时间 | 2021.1.1
设计单位
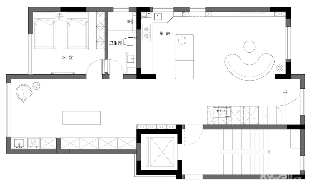
原户型图
原户型是顶楼带阁楼的,位置相当不错,北面就可以直接看到北固山,相当的清幽。对于已退休的夫妻来说,是非常合适的居家住宅。业主本人思想也比较现代化,拒绝传统,很向往以生活为主的空间带来的幸福感。
▶
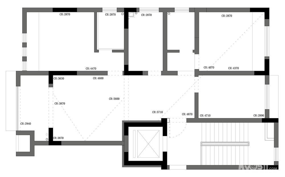
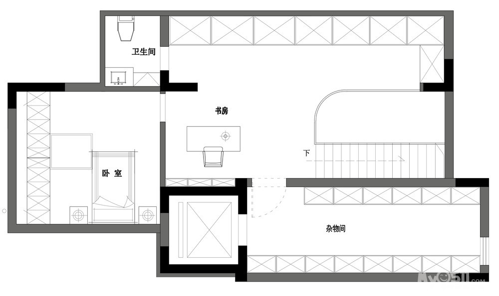
平面布局设计图
一 层

二 层
最初,业主的想法是楼下居住,楼上的空间用于储物。经设计师实地勘察,发现整个空间的异形顶很有创造性,没有拘束,没有绝对对称,拥有无限可能。楼梯部分挑空设计,可以很好的引入光线,同时还可以放下冰箱,又实现收纳功能,一举两得。考虑到住户年纪较大,楼梯较宽且缓,相对安稳。阁楼可以办公,在满足业主储物需求的同时还拥有了卧室,两全其美。[ 本帖最后由 易兆精品设计 于 2022-11-18 16:55 编辑 ]














