
说来也是很有缘分,本案业主是看了同一小区我们公司工地做的不错慕名而来。这套房子主要是想营造轻松的度假氛围,让孩子即使没有时间旅行也能感受到休闲、愉悦、温馨的居家环境。
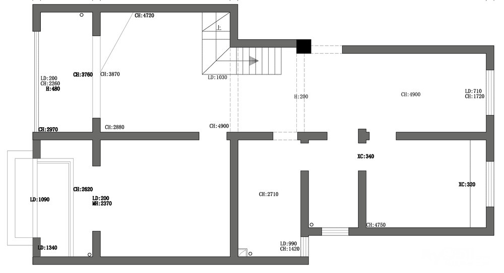
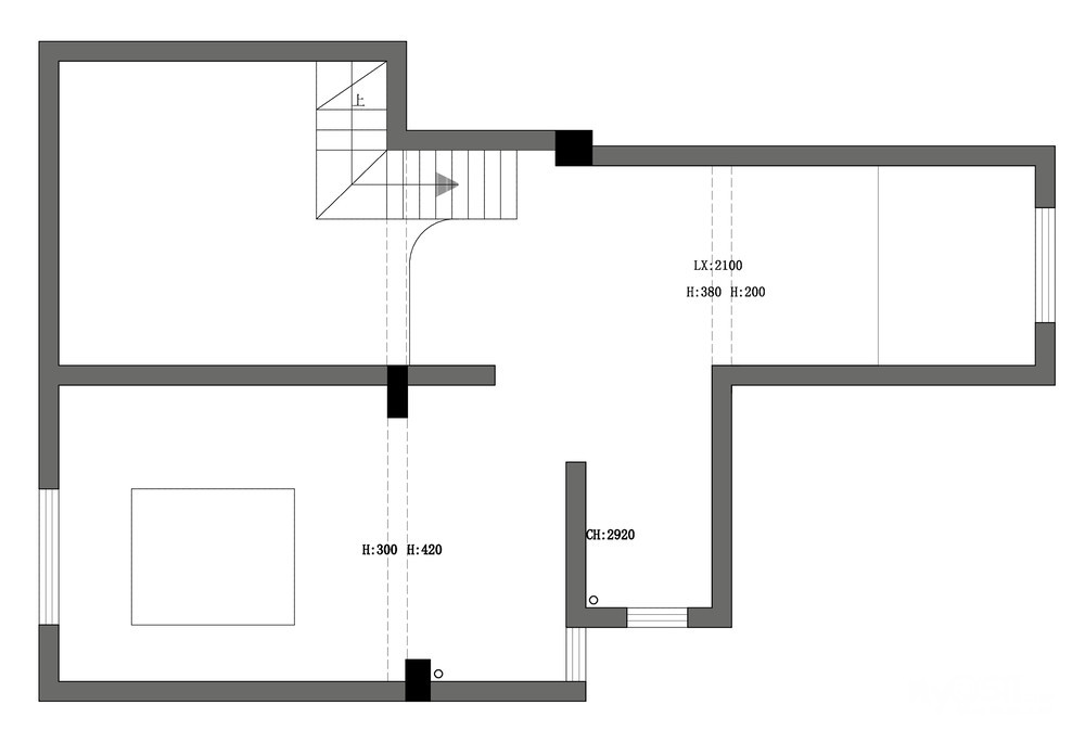
▶原始结构图
一层
阁楼
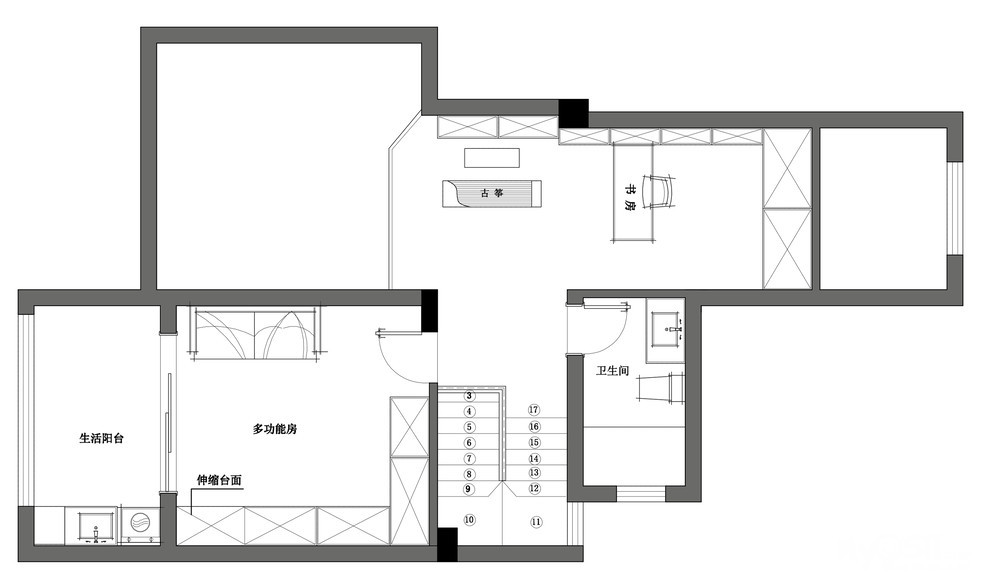
▶平面布置图
经过设计师的巧手设计,厨房布置在了入户左侧,光线良好。楼梯在原本厨房的位置,去除部分墙体,拥有了宽敞的客厅。扩大了主卧空间,增加了衣帽间的设计,书房和休闲区则放在了楼上,完善了空间布局。
一层
阁楼

[ 本帖最后由 易兆精品设计 于 2022-11-18 16:49 编辑 ]














