| 标题
快捷导航

精彩推荐:MY0511客户端下载

    • 中信银行镇江分行

    • 公益体彩 乐善人生

    • 鹏龙鸿蒙

    • 天然石材·人造石

    » 梦溪论坛 » 家庭装修 » 前程装饰 » [前程·设计] [中南御景城28栋]
    前程装饰  >  [在建工地] [前程·设计] [中南御景城28栋]     
    查看: 4454  回复: 2
    [在建工地] [前程·设计] [中南御景城28栋]      查看: 4454  回复: 2
    • 来自 江苏省
    • 精华 9
    • 注册 2010-3-23
    • 行业 房产建筑
    •  
    [前程·设计] [中南御景城28栋]


    [前程·设计]  在建工地


    装修小区 :    中南御锦城

    装修面积  :    130平方

    设计师    :    陈设计师


    开工日期  :   5月1日

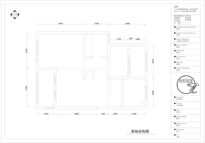
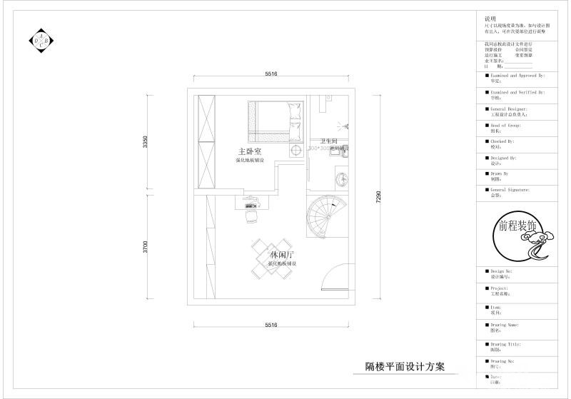
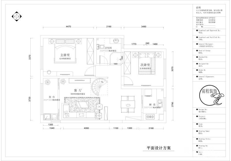
    户型图   :




    平面设计图:




    公司地址:镇江市中山西路47号润居商务中心603-703(大润发斜对面)。

    装修热线:0511-84495550

    手机:18952814882(同微信号

    想了解更多家装咨询扫描下方二维码并关注微信公众号






    [ 本帖最后由 前程设计中心 于 18-7-9 11:38 编辑 ]





                      
    • 来自 江苏省
    • 精华 9
    • 注册 2010-3-23
    • 行业 房产建筑
    •  
    中南御锦城效果图








    • 来自 江苏省
    • 精华 0
    • 注册 2017-6-21
    •  

    *** 作者因违反论坛规定,禁言处理,内容自动屏蔽 ***

    详情参阅论坛注册条款:
    http://bbs.my0511.com/f11b-t2789156z


    查看积分策略说明快速回复主题
    您目前还是游客,请 登录注册
    您目前是游客,本帖已被系统设置了自动关闭,不可回复!

    0/5000字

     
    < >
     

    Powered by Discuz! X 2 0.067946 s 清除 Cookies - 镇江网友之家 - 手机版
    论坛导航 关闭