泽一 落地设计
Choose Only One

HOME ·「 Record Life 记录生活 」
项目面积 / Area:384㎡(实际设计面积)
项目地址 / Project Address:万科蓝山
项目风格 / Style:现代
服务模式 / Service Pattern:部分全案设计

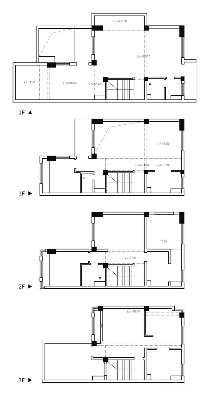
原始户型痛点分析
原有楼梯属于暗梯,且踏高不合适,走起来比较陡;
从地下室入户,客厅则为暗厅,对健康生活有一定影响;
入户无门厅,缺乏入户仪式感及隐私性。

平面布局优化改造
设计师将原本较陡的暗梯北移,留出中景区,从顶面借光,打造令人舒适的明梯;
在暗厅西面增加内景采光区,优化了客厅的采光和通风,也提升了室内观赏性;
调整原入户门位置,形成独立的入户门厅,提升生活便利性。
效果图
全景效果图













施工阶段


拆除阶段


现浇阶段

砌墙阶段

水电阶段

木工阶段

瓦工阶段


油漆阶段

安装阶段
本期作品已全部安装到位,趁着业主及家人即将搬入新宅之际,我们正在准备毕业照拍摄计划,
实拍成品将在次月呈现在大家面前,敬请期待
于生活喧嚣中
Amidst the hustle and bustle of life,
寻一处宁静角落疗伤
seek a peaceful corner to heal.
泽一设计
-COO Design-

[ 本帖最后由 泽一设计 于 2024-12-2 14:36 编辑 ]







