小区名称:绿地翠园10-306室
设计风格:现代日式风格
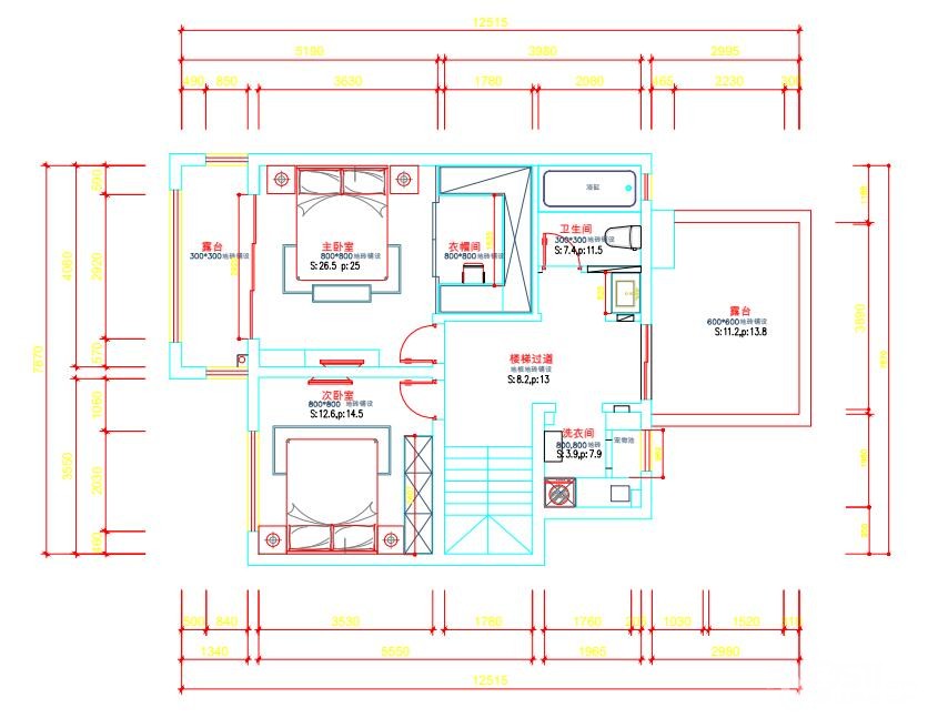
房屋面积:160
房屋类型:3室2厅2卫
设计师:许欢迎
套餐包:799
方案改造说明:整体风格采用日式风,主要体现在木纹颜色以淡淡的原木色为主,地面采用木纹地砖为主题,局部采用户型造型垭口设计,顶部局部用原木装饰设计。
客厅背景设计说明:经过与客户沟通一楼主要是活动,休闲,学习及娱乐区,顾把一楼卧室打通采用客,餐厅,厨房及卧室作为通厅设计,书房区采用地台的形式进行区域分割,厨房采用开放式厨房,一楼卫生间缩小以实用性为主不洗澡,改造后南北通风及彩光都非常好。阳台打通设计。
沙发背景设计说明:卧室墙体拆除利用整面墙体做书柜,楼梯下空间做储物空间。
主卧室:衣柜设计采用暖色木格移门,颜色以暖色为主。
次卧室:顶部做双眼皮吊顶,更好的隐藏窗帘盒。
卫生间:采用下沉式浴缸,并且采用三区分离
干区及过道:过道部分改造城宠物洗漱及洗衣区














