

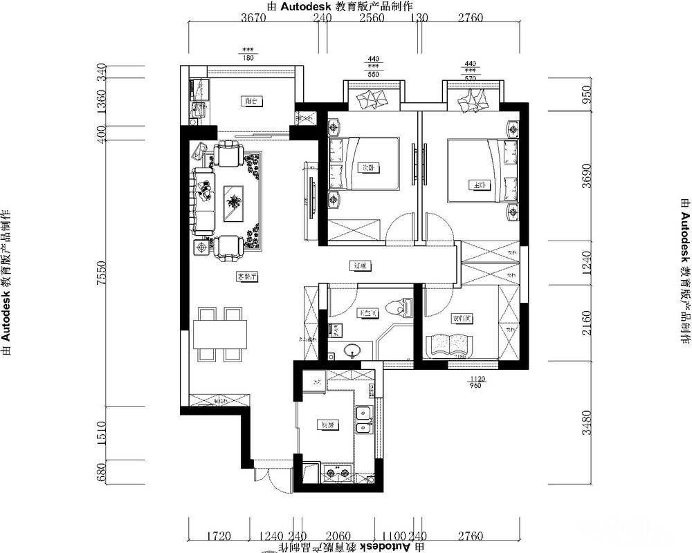
接触到叔叔阿姨也是缘分,两位是经一位老客户介绍来到我们公司咨询装修事宜,初次见面两位很可亲,交谈下来发现他们是个很有想法的人,对生活有一定的品质要求,做事有条理,因为房屋户型是楼上下的原因,我们这边就省去量房这一环节,经过几天设计,平面方案出炉,叔叔阿姨对方案很是满意,其实我们对于老年人的房屋装修就只有两个宗旨,一是方便他们现在的生活,二是兼顾他们往后的生活,我们更多的是为他们考虑一些小的贴心服务和细节,阿姨叔叔也是爽快人,平面定下来就交了设计定金,我们最终确定了施工方案和报价,选定了吉日开工,就是今天3月8号,又和我们这个“女神节”碰撞了火花
,让我们期待这个完美的房屋蜕变。。。。。【小区名称】:凤凰和润
【所在楼层】:中层
【装修风格】:新中式
【包工方式】:半包
【装修公司】:新瑞装饰
【主案设计】:赵明玉
【开工日期】:3月8号 先上一波照片

[ 本帖最后由 新瑞装饰 于 2020-7-12 16:25 编辑 ]









,我们记录工地的点点滴滴,也是希望给多谢装修小白一些参考









,话不多说先来一组施工照片记录下




























