【此处为站外链接,请谨慎打开】
【小区名称】:万科蓝山
【所在楼层】:3、4楼
【建筑面积】:240m2
【装修风格】:新中式风格混搭
【包工方式】:全包
【设计公司】:企屋设计
【装修公司】:企屋设计
【软装陈设】:企屋陈设
【摄影】:金啸文空间摄影
【完工日期】:2015年1月
主材品牌:
地板:德国欧家纯进口地热地板
橱柜:金牌橱柜
洁具:科勒洁具
墙纸:欧雅壁纸
家具:爱舍
瓷砖:东鹏瓷砖
窗帘:摩力克窗帘
灯具:赛诗阁灯具
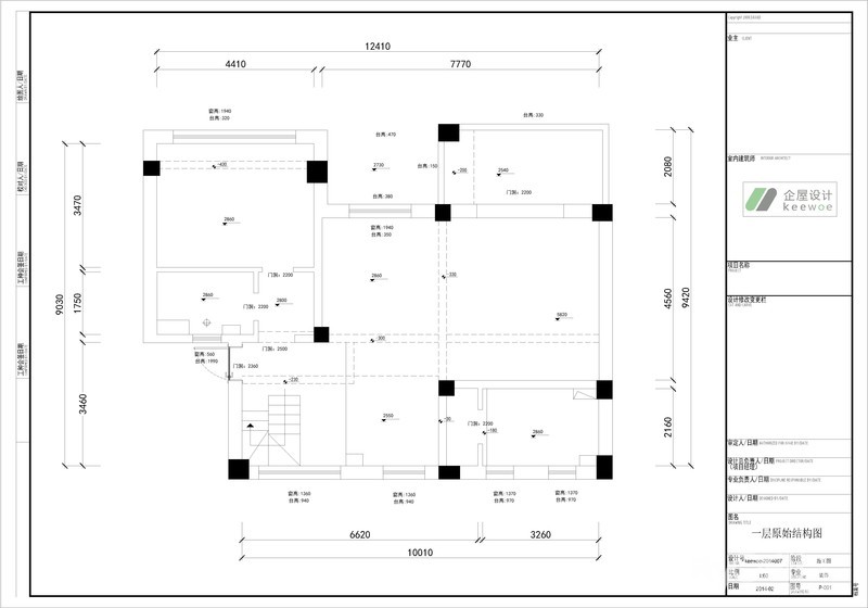
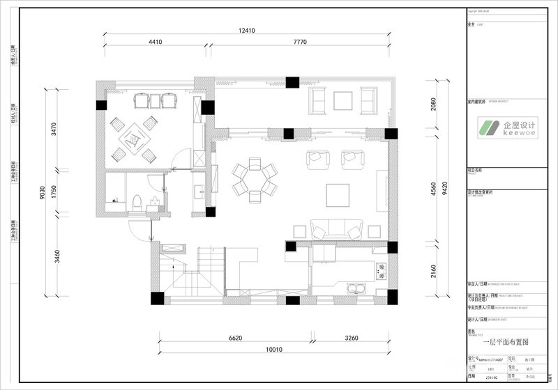
户型图片:见下




【小区名称】:万科蓝山
【所在楼层】:3、4楼
【建筑面积】:240m2
【装修风格】:新中式风格混搭
【包工方式】:全包
【设计公司】:企屋设计
【装修公司】:企屋设计
【软装陈设】:企屋陈设
【摄影】:金啸文空间摄影
【完工日期】:2015年1月
主材品牌:
地板:德国欧家纯进口地热地板
橱柜:金牌橱柜
洁具:科勒洁具
墙纸:欧雅壁纸
家具:爱舍
瓷砖:东鹏瓷砖
窗帘:摩力克窗帘
灯具:赛诗阁灯具
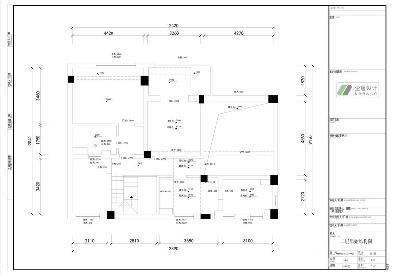
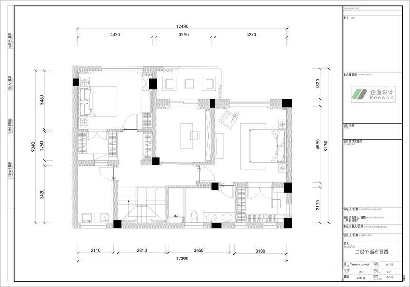
户型图片:见下




封面这张楼梯的夹丝玻璃隔断,当时花了好大的功夫,因为一直找不到想要的样式,所以只能自己买丝去玻璃厂做,一开始是为了挡住楼梯的侧面兼具扶手的功能,但最后出来的效果出乎意料的好,使整个空间都更有层次感了。另一边的木扶手不是能看得到全貌,当时看到别人家的不锈钢扶手,我们改良成了现在这样的木扶手,效果也是跟当初预想的一样,也许换了其他的样式就不会像现在看到的这样适合。有些时候设计师一直坚持的东西,也许客户会因为很多因素最后换成了其他的代替品,但最后出来的感觉真的就是会差一些,虽然看上去也许就是差一些,但是这样的遗憾在创造他的人心里就缺了一块不圆满,并不是所有的愿望最后都能付诸现实,但遗憾也许也是另一种美吧。