【小区名称】:景天花园
【所在楼层】:1楼
【建筑面积】:120㎡
【装修风格】:现代混搭
【包工方式】:全包
【设计公司】:企屋设计
【装修公司】:企屋设计
【软装陈设】:企屋陈设
【摄影】:蓝骑士商业摄影
【完工日期】:2015年10月
主材品牌:
地板:欧家地板
橱柜:宝仕橱柜
洁具:美标洁具
油漆:立邦漆
家具:博领家具
瓷砖:卡斯维诺
窗帘:摩力克
壁纸:德国艾仕(名品建材)
软包:名品建材
木饰面:图森整体木作
灯具:塞诗阁灯具
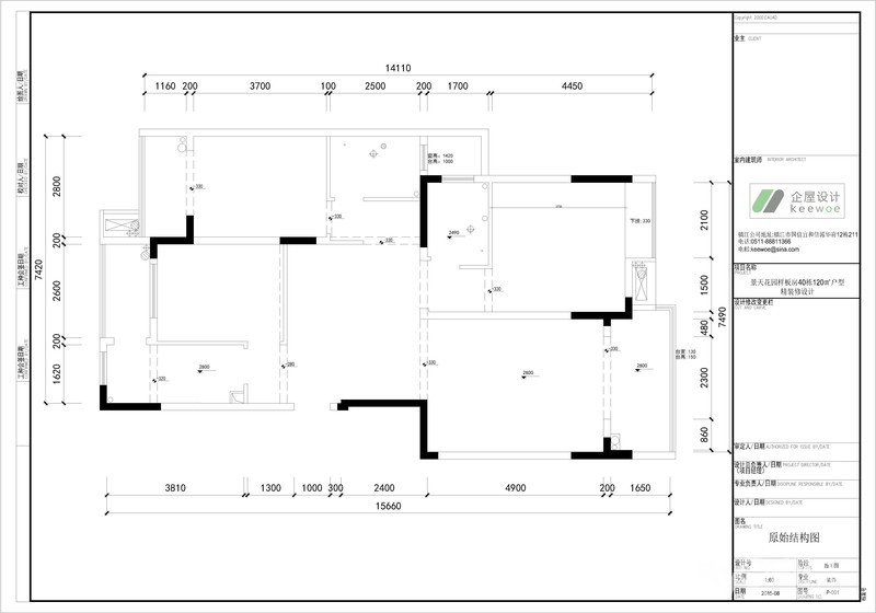
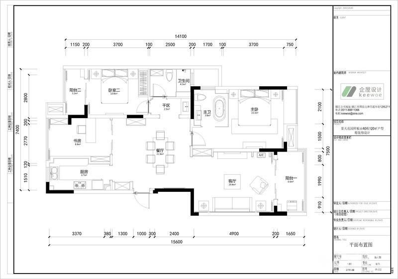
户型图片:见下


[ 本帖最后由 企屋设计 于 15-11-29 16:00 编辑 ]




























