企屋设计是一家集定制设计、精工装饰、品质软装于一体的专业设计公司。
如今企屋设计要做的不仅是打破传统,更是为每一位尊贵的客户提供量身定制的个性化服务,让每一位客户拥有其别具匠心、施工精湛的艺术品。
我们竭诚为您提供最专业的服务:
量房→平面图→概念方案→全套施工图纸→软装方案→报价→客户确认签字开始施工
我们本着认真负责的态度去对待每一个环节。
量 房

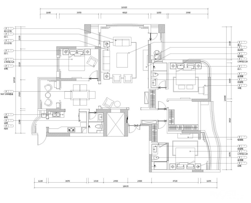
平 面 图

概 念 方 案

空间概念:轻奢/东方内敛/柔和/自然主义
Space concept:Light luxury/Oriental introversion/Soft/Naturalism
在细水长流的感受与发现中,惊艳了岁月......
The feeling and discovery of the thin water, amazed the years……
全 套 施 工 图 纸

效 果 图

客厅效果提案


餐厅主卧效果提案


客卧效果提案
软 装 方 案

主题分析
木饰面
素色墙纸
金属配饰
铜灯

客厅设计提案

主卧设计提案

小景设计提案
工 程 概 况

我们的报价是根据全套施工图纸来制定的,做到报价透明化,所见即所得。
前期所有设计方案完成,业主确认签字后开始施工。根据我们制定的工程进度管理表合理安排工期,确保按时交付。
工 程 进 度 表




实 景 展 示


客厅实景展示


餐厅实景展示


卧室实景展示

小景展示
企屋设计始终致力于为客户提供更丰富的专业空间设计。
经过多年的专业积累,我们整合了更多的资源,带着更好的精神面貌革故鼎新,为您带来更为尊贵奢华的生活体验,和您共同完成一场展示生活品味的交流。
丨定制设计丨精工装饰丨品质软装丨
别墅 · 大宅 · 样板房 · 商业空间高端定制机构
文/企屋设计| 策划/夏天 锈锈
微信:企屋设计
微博:@企屋设计
QQ:3191872677
电话:0511-88811366
地址:江苏省镇江市润州区旭辉时代华府1栋101室

[ 本帖最后由 企屋设计 于 17-8-10 12:09 编辑 ]







