| 标题
快捷导航

精彩推荐:MY0511客户端下载

    • 中信银行镇江分行

    • 公益体彩 乐善人生

    • 鹏龙鸿蒙

    • 天然石材·人造石

    » 梦溪论坛 » 家庭装修 » 企屋设计 » 企屋设计2017年出品------《岁末到家》如意江南现代简约风格实景
    企屋设计  >  企屋设计2017年出品------《岁末到家》如意江南现代简约风格实景     
    查看: 13644  回复: 13
    企屋设计2017年出品------《岁末到家》如意江南现代简约风格实景      查看: 13644  回复: 13
    • 来自 江苏省
    • 精华 105
    • 注册 2009-9-4
    • 行业 房产建筑
    •  
    企屋设计2017年出品------《岁末到家》如意江南现代简约风格实景

    企屋设计2017年出品------《岁末到家》现代简约风格实景

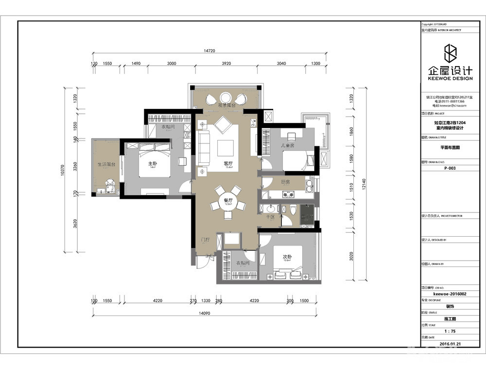
    【小区名称】如意江南

    【建筑面积】125㎡

    【装修风格】现代简约风格

    【包工方式:全包

    【设计公司:企屋设计

    【装修公司:企屋设计

    【软装陈设:企屋陈设

    户型图片:见下










    [ 本帖最后由 企屋设计 于 17-11-25 15:53 编辑 ]





                      
    • 来自 江苏省
    • 精华 105
    • 注册 2009-9-4
    • 行业 房产建筑
    •  

    爱子心无尽 归家喜及辰

      无论是谁 总要走上一条回家的路

      不管是洋房别墅 还是低矮草房

      那总是自己最美的风景


      奔波了一天走在喧嚣的人群中


      家是我们疲倦时的栖息地


      是心灵的伊甸园




    [ 本帖最后由 企屋设计 于 17-11-25 16:29 编辑 ]




    • 来自 江苏省
    • 精华 105
    • 注册 2009-9-4
    • 行业 房产建筑
    •  

    本案是一套125m2 如意江南平层设计

    在设计师与业主的交流中

    我们得知业主想要干净、简单适合孩子居住、便于后期二次改造的学区房

    因此本案采用现代简约风

    注重色彩、氛围与软装配置、陈设设计的结合

    给孩子打造出一个干净又洋溢着活泼气氛的学习环境

    生活是平淡的,但总是会被添上一笔一笔不一样的色彩充实你的一生








    [ 本帖最后由 企屋设计 于 17-11-25 16:27 编辑 ]




    • 来自 江苏省
    • 精华 105
    • 注册 2009-9-4
    • 行业 房产建筑
    •  

      客厅除了纯色的墙面房门和柜体都采用白色系
      利落又不失柔和感


      几何图形的地毯奠定了整个客厅的基调

      白色给人感官上的简约干净


      在清一色的白色空间里


      具有更大的包容性









    [ 本帖最后由 企屋设计 于 17-11-25 16:30 编辑 ]




    • 来自 江苏省
    • 精华 105
    • 注册 2009-9-4
    • 行业 房产建筑
    •  

      一张质朴天然的木餐桌一张舒服的皮沙发
      一些俏皮的装饰


      干净利落  一击即中


      这些看似非常简单的面


      是空间充满魅力的秘密









    [ 本帖最后由 企屋设计 于 17-11-25 16:31 编辑 ]




    • 来自 江苏省
    • 精华 105
    • 注册 2009-9-4
    • 行业 房产建筑
    •  

      我们将进门右手边的墙改造成一个鞋柜

      合理利用空间将厨房和儿童房的门调在一条直线上

      视觉上更加整齐


      将次卧改造成一个衣帽间


      满足了业主的需求






    [ 本帖最后由 企屋设计 于 17-11-25 16:32 编辑 ]




    • 来自 江苏省
    • 精华 105
    • 注册 2009-9-4
    • 行业 房产建筑
    •  


      卧室依旧延续了设计理念中的简约与实用
      将繁冗的装饰去除掉

      简洁明了

      却又自然美好





    [ 本帖最后由 企屋设计 于 17-11-25 16:36 编辑 ]




    • 来自 江苏省
    • 精华 105
    • 注册 2009-9-4
    • 行业 房产建筑
    •  

      儿童房蓝白黄色彩上的简单碰撞
      
      配合柜门图案以及书桌上的小物件

      能激发出孩子们的无限想象力

      充满温馨与爱

      墙上的置物架让整个空间显得整洁、大方












    [ 本帖最后由 企屋设计 于 17-11-25 16:40 编辑 ]




    • 来自 江苏省
    • 精华 105
    • 注册 2009-9-4
    • 行业 房产建筑
    •  

      卫生间简约的造型把天然机理裸露  

      情感中内秀谦和

      卫浴空间

      用最最简单的形式

      赋予灵性的声音

      每天与自己对话最贴近自己的灵魂








    [ 本帖最后由 企屋设计 于 17-11-25 16:44 编辑 ]




    • 来自 江苏省
    • 精华 105
    • 注册 2009-9-4
    • 行业 房产建筑
    •  

    一个好的设计

    源于生活阅历

    感官体验内在素质

    始终保持敏锐的观察力

    对一切充满好奇



    [ 本帖最后由 企屋设计 于 17-11-25 16:46 编辑 ]




    • 来自 江苏省
    • 精华 0
    • 注册 2016-5-10
    •  






    • 来自 江苏省
    • 精华 0
    • 注册 2009-10-28
    • 行业 学生
    •  

    我有江山名洲125平方米房子,想装现代简约风格。我的手机号130168065O3




    • 来自 江苏省
    • 精华 105
    • 注册 2009-9-4
    • 行业 房产建筑
    •  


    QUOTE:
    原帖由 zjkdzh 于 18-4-24 21:51 发表
    我有江山名洲125平方米房子,想装现代简约风格。我的手机号130168065O3
    好的哦 已经让客服加你了哦




    查看积分策略说明快速回复主题
    您目前还是游客,请 登录注册
    您目前是游客,本帖已被系统设置了自动关闭,不可回复!

    0/5000字

     
    < >
     

    Powered by Discuz! X 2 0.078073 s 清除 Cookies - 镇江网友之家 - 手机版
    论坛导航 关闭