企屋设计2017年出品------《尚清之後》
【建筑楼盘】:镇江八佰伴
【包工方式】:全包
【设计公司】:企屋设计
【装修公司】:企屋设计
【软装陈设】:企屋陈设
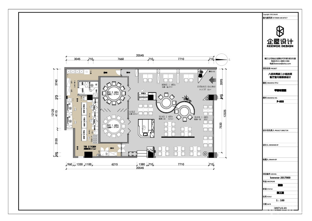
平面图:见下

头上挽着漆黑油光的髻儿,蜜合色棉袄,玫瑰紫二色金银鼠比肩褂,葱黄绫棉裙。一色半新不旧,看来不觉奢华。
这是宝玉掀帘一迈步进去看见的薛宝钗。
其实,古往今来,所有遇见的优雅都需要花很长很长时间。
锵锵踰过尚清戏台,手边没有玉帘,
却倒能寻见优雅的二小姐。
就这样我们的故事开始了...

老墙红砖,描述着繁华背后的简朴与安宁。
轻罗小扇,镌刻了纷繁而交错的文化。

△门头利用了百叶窗和黑框玻璃,伸出的雨棚是一种展示,融和于新空间中,像是走在优雅的小街。
穿过大厅嵌着水纹玻璃的折叠门后是包厢,仿佛可以将人带回旧旧的馥郁时光。
透过玻璃和百叶窗,室内与露台相望,让室外景观与两处室内空间相互交融...

△ 利用玻璃造型的体块关系,对空间进行重新组织。



△ 球体顶灯犹如菜品中沸腾的气泡漂浮在空间的顶部。


△ 包厢利用屋顶一隅,形成一个巨大的水晶盒子。

△ 也尽可能为每一桌房创造独一无二的专属景观。卡座围合出一块内独享小空间。

△ 以花圃一簇簇围合出令人心水的休闲露台。透过半掩的玻璃栅门进入就餐区。

△ 中国近代的社会文化发展的滥觞。大都会纷繁而交错的文化,二小姐为包厢取的名字诸如木槿花、云间语、琉璃瓦、倾城恋、浣锦集、满庭芳中,我们或许可以想象二小姐的故事多么精彩。


△ 此次设计,连同它的那些主人的故事与气息,一起安静地封存在了绣球花和藤蔓中。
她带着尚未冷却的摩登都会的余温,描述着繁华背后的简朴与安宁。
于是餐厅就成了充满小资情怀,不失旧当地靡靡之风、又满怀隐居腔调、人文关怀的美隐餐厅。

想在北京吃一碗卤煮。
想在广州吃一碗萝卜牛杂。
想在重庆吃一碗酸辣粉。
想在西安吃一碗凉皮。
想在二小姐吃一盘六月黄 。








