| 标题
快捷导航

精彩推荐:MY0511客户端下载

    • 中信银行镇江分行

    • 公益体彩 乐善人生

    • 鹏龙鸿蒙

    • 天然石材·人造石

    » 梦溪论坛 » 家庭装修 » 企屋设计 » 企屋设计2017年出品------《城南旧事》现代美式风格实景
    企屋设计  >  企屋设计2017年出品------《城南旧事》现代美式风格实景     
    查看: 10282  回复: 10
    企屋设计2017年出品------《城南旧事》现代美式风格实景      查看: 10282  回复: 10
    • 来自 江苏省
    • 精华 105
    • 注册 2009-9-4
    • 行业 房产建筑
    •  
    企屋设计2017年出品------《城南旧事》现代美式风格实景

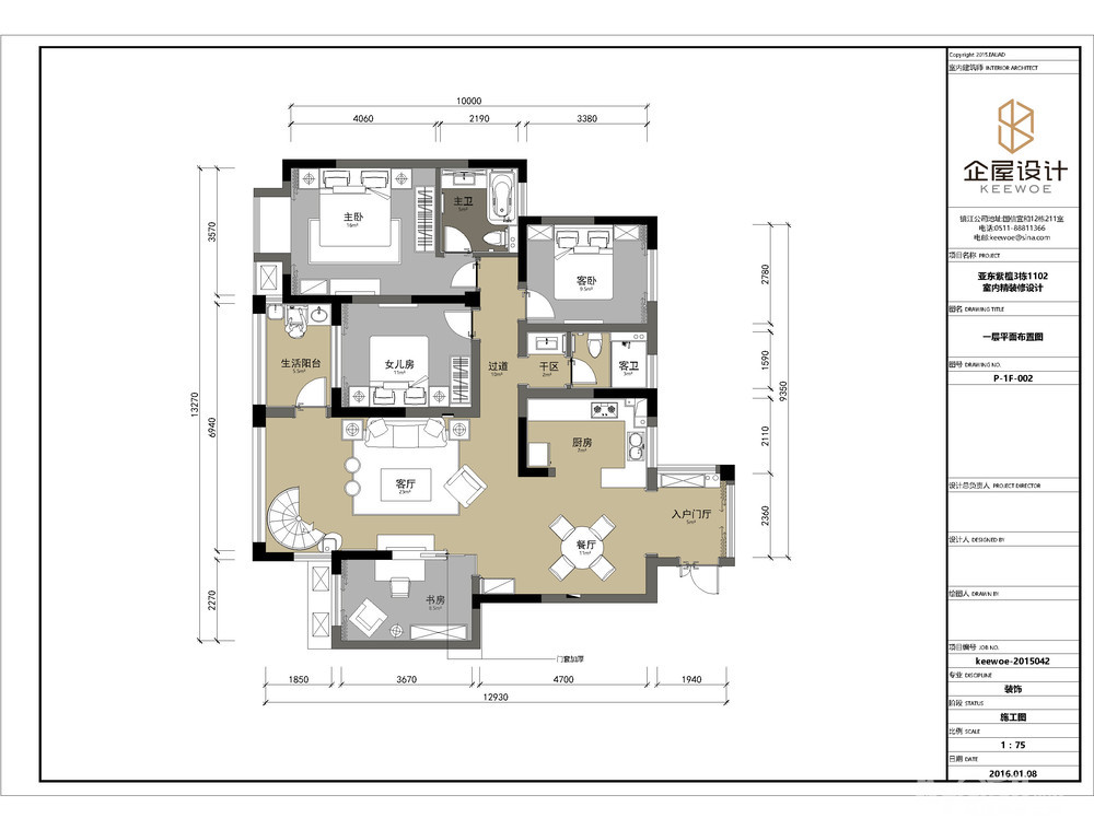
    【小区名称】亚东紫檀

    【建筑面积】157㎡

    【装修风格】现代美式风格

    【包工方式:全包

    【设计公司:企屋设计

    【装修公司:企屋设计

    【软装陈设:企屋陈设

    户型图片:见下










                      
    • 来自 江苏省
    • 精华 105
    • 注册 2009-9-4
    • 行业 房产建筑
    •  

    本案是一套157m2亚东紫檀顶层带挑高的一个跃层的户型,
    我们把挑空层做了一个活动空间,
    因为老人小孩一起住,
    业主追求安静宜居并且温馨的氛围,
    所以我们最后决定采用现代美式风格,
    有幸福温度的生活,这样的日子,安静而美好。





    [ 本帖最后由 企屋设计 于 17-12-24 17:20 编辑 ]




    • 来自 江苏省
    • 精华 105
    • 注册 2009-9-4
    • 行业 房产建筑
    •  

    -客厅是日常生活中使用最为频繁的区域,
    以咖色为基调,
    简约的皮质沙发,
    简洁又不失优雅。
    实木茶几上摆放精致花束,
    彰显品味和格调。
    大落地窗配以浅蓝色窗帘,
    洋溢着悠然自得的气氛。
    在靠电视背阳台那里,
    我们选用了木质的楼梯也是因为家里有老人和小孩,稳重又安全。













    • 来自 江苏省
    • 精华 105
    • 注册 2009-9-4
    • 行业 房产建筑
    •  

    -整个空间色调舒适温馨,餐厅使用了实用的风扇灯全家人围

    坐一起在此享用美食,心情都会变得更加柔和。

    同时给业主选用了圆形木桌,满足了人多的需求。

    我们常说,生活的惊喜,

    是是刚出锅菜肴携带的热气,

    是音乐响起时附赠的回忆,

    是慵懒的周末谈天说地的舒适,

    所以小吧台的设计,给生活的平静中又增添些许情调。











    • 来自 江苏省
    • 精华 105
    • 注册 2009-9-4
    • 行业 房产建筑
    •  

    -厨房选用开放式,配经典白色系橱柜,
    打造现代质感,
    将厨具隐藏于墙上的橱柜内,
    强大的收纳功能给人以清爽简洁舒适的感觉。

















    • 来自 江苏省
    • 精华 105
    • 注册 2009-9-4
    • 行业 房产建筑
    •  

    -根据业主的喜好,

    以简单、舒适为主题,

    浅灰色的背景墙配上清淡温和色系床品,

    大型玻璃窗为房间带入充足光线,

    搭配简约纯色窗帘,

    营造出宁静平和复古的休憩环境。











    • 来自 江苏省
    • 精华 105
    • 注册 2009-9-4
    • 行业 房产建筑
    •  

    -传统美式的风格更加给老人提供一个宁静稳重的居住环境,
    一切简单为主,
    不添加复杂的陈设与装饰也是为了老人的安全着想。










    • 来自 江苏省
    • 精华 105
    • 注册 2009-9-4
    • 行业 房产建筑
    •  

    -蓝色加黄色的强烈对比,作为经典的撞色系列。
    个性化几何窗帘,彰显个性,尤为引人注目,
    将整个空间的色彩点亮,
    空间一下子就赋予了层次感,
    与淡紫色墙面相互碰撞,
    抽象元素的运用重重叠叠,
    凸显在每一个细节上。










    • 来自 江苏省
    • 精华 105
    • 注册 2009-9-4
    • 行业 房产建筑
    •  

    -“力学如力耕,情惰尔自知。但使书种多,会有岁稔时。”

    我们将电视背景墙后的储藏室改为书房,给小孩提供一个安静的学习环境。









    • 来自 江苏省
    • 精华 105
    • 注册 2009-9-4
    • 行业 房产建筑
    •  

    -干湿分离是卫浴设计比较流行的设计概念,可保持沐浴之外的

    场地干燥卫生,维持浴室整体环境的整洁美观。









    • 来自 江苏省
    • 精华 105
    • 注册 2009-9-4
    • 行业 房产建筑
    •  

      你理想中的家是怎样?


    有人说温馨


    有人说放松


      有人说什么样不重要


      家人在的地方就是家


    /






    查看积分策略说明快速回复主题
    您目前还是游客,请 登录注册
    您目前是游客,本帖已被系统设置了自动关闭,不可回复!

    0/5000字

     
    < >
     

    Powered by Discuz! X 2 0.065138 s 清除 Cookies - 镇江网友之家 - 手机版
    论坛导航 关闭