人为的设计生活方式,是为了努力创造一种更好的生活状态。





丹阳·新桥别墅

——企屋设计团队




  设计项目丹阳·新桥别墅


  项目性质 ▏全案定制  


           设计风格 ▏现代意式/现代简约  


  主创设计 ▏杨涛、徐娜


设计单位 ▏企屋设计





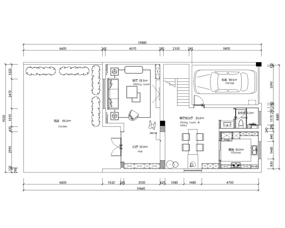
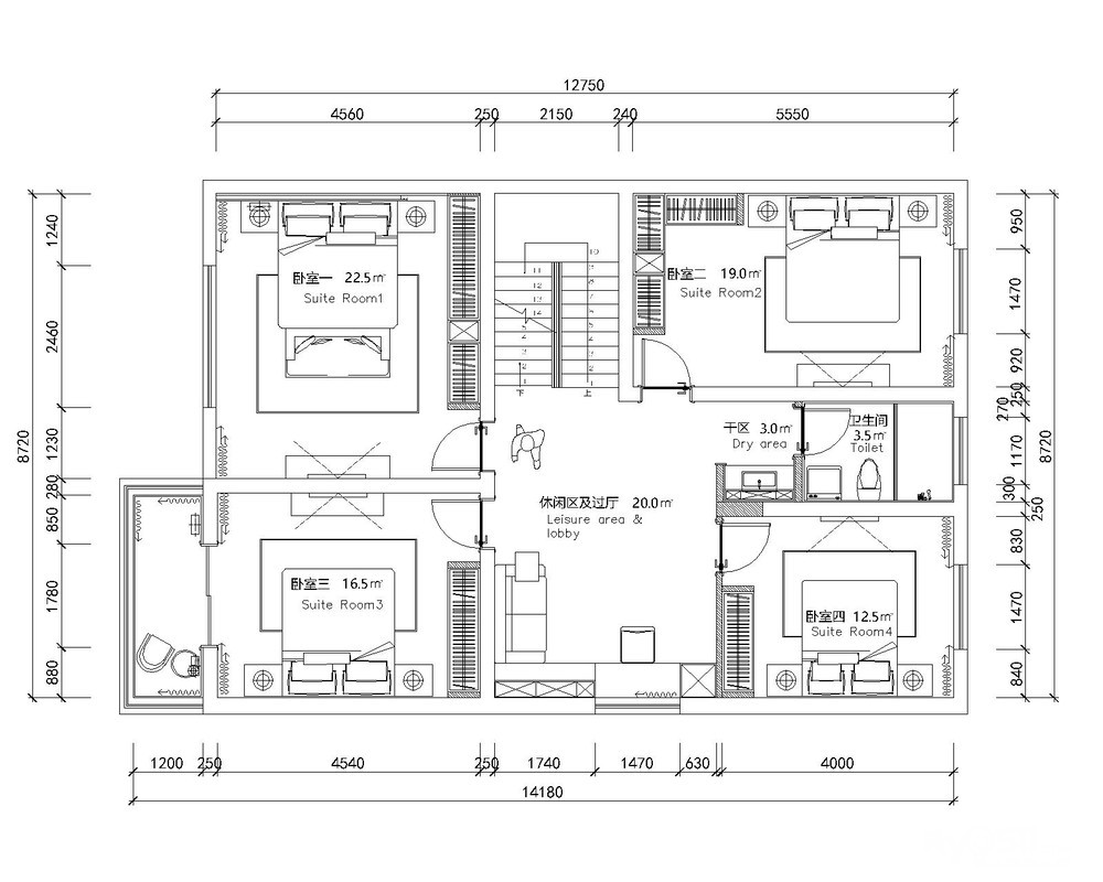
丨平面布置图丨








丨效果图丨






















[ 本帖最后由 企屋设计 于 2020-7-5 16:17 编辑 ]