WHAT ON EARTH
ARE WE DOING
设计向善,是一种责任

“ 每个项目,都是从零开始的思考。”
"Every project is thinking from scratch."
01
LEISURE VIDEO AREA
休闲影音区
-
主人期待的家
干净有质感
但依然保留烟火气
生活的气息让他享受待在家的感觉
设计师从细节入手
采用大地色系软装
给黑白灰基调的空间升温、柔化
引入大自然的元素,让家更接地气

P. 01

P. 02
02
RED WINE AREA
红酒区
-
设计师将娱乐、影音、品酒等
私人需求融入到地下空间
影音室兼具家庭客厅功能
通过两层挑高空间完成了空间的对话
形成有趣的互动

P. 03
03
LANDSCAPE SKETCH
景观小品
-
光线拂过,在踱步与凝视中
完成人对于艺术品的审美体验
更加是对于精神世界的认知活动

P. 04
04
TEAROOM
茶室
-
看似有序的、庄重的生活
就像是一场梦境
所有的艺术品
或诉说着荒诞或演绎着情怀
看见并非真实
用心感知生活灵感之光
绚丽、沉默、而意蕴绵长

P. 05
05
RECEPTION ROOM
会客厅
-
客厅着力于塑造空间的尺度与包容感
去构建人与空间、人与物、物与物的关系
相互之间无所牵绊
催发出一种不疾不徐的情绪
好似时光静止不动,空间与人同生共长

P. 06

P. 07
06
DININGROOM
餐厅
-
一个最为烟火气的地方
也因敞亮的格局而明媚
充满质感的天地墙
为轻松自在的空间塑造出独特气质
借由通透的大玻璃落地窗
营造无处不在的清雅舒心

P. 08
07
PARENTS' ROOM
父母房
-
画家弗拉曼克写道
在恶劣天气肆虐的时候
我在炉火前体会到的
那种幸福是完全动物性的
洞里的老鼠、穴里的兔子、棚里的奶牛
都应该像我一样幸福
幸福就是把我们带回了家这个庇护所
我们在家中表达情感
获得温暖、拥抱,自我独处和休憩

P. 09
08
MASTER'S ROOM
主人房
-
在家具与艺术品的选择上
秉持宁缺勿滥的态度和原则
每一件都必须是真正有用的
亦或是所喜欢的收藏品
除此之外皆可干脆舍弃
空间里没有过度的装饰
才会发现内心本真的大自在
入住体验感从而提升至最佳

P. 10
09
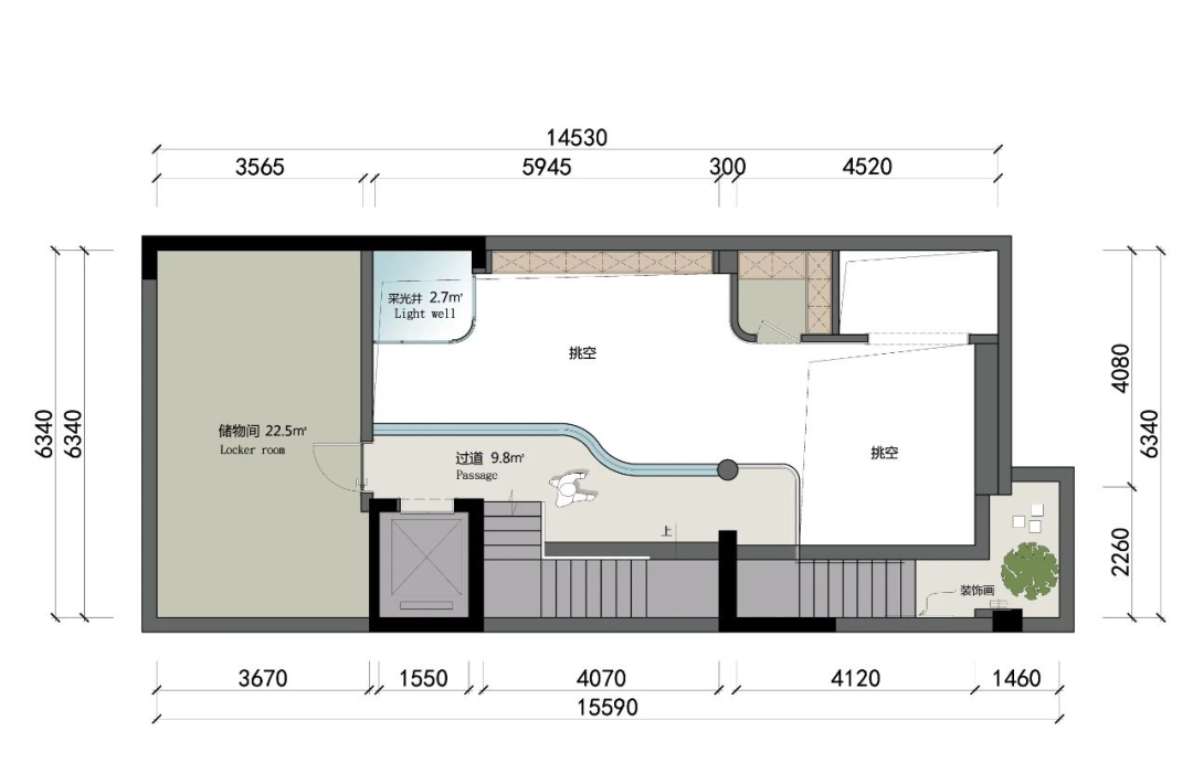
ANALYSIS DIAGRAM
分析图
-
-2F

P. 11
-1F

P. 12
1F

P. 13
2F

P. 14
3F

P. 15
INFO
entry name:山林名墅
design company:企屋设计
Project location:江苏 • 镇江
Project area:450平米
全案托管服务详情
由企屋设计全程负责整体方案设计、硬装施工
主材采购、家具软装采购、整体预算控制、家政保洁等服务。


▲扫描关注微信公众号▲

▲扫描添加微信客服▲
| 新浪微博 |
@企屋设计
| 腾讯账号 |
3191872677
| 商务洽谈 |
0511-88811366
| 抖音账号 |
企屋设计 / keewoe88811366
Add:镇江市旭辉时代华府1栋101室
[ 本帖最后由 企屋设计 于 2020-9-19 14:43 编辑 ]








