
家是最亲近之人的情感连接之所,
也是共享天伦之乐的场域。
三代同堂的居住诉求让设计师按照功能将别墅进行分区,
打造自由开放的空间尺度,
让家庭成员在居所中形成独立又紧密的关系。
同时又能够针对每个家庭成员,构建理想的生活场景,让生活回归诗意。
同时又能够针对每个家庭成员,构建理想的生活场景,让生活回归诗意。
客厅

设计师通过大面积开窗引光入室,并运用大面积莫兰迪色调诠释一层空间的现代气质,冷静的灰白、利落的线条,予人以清新时尚之感。

动与静的需求在此得以和谐共处,营造出一种平衡包容之美。同时结合丰富的光源提高整体明亮度,通过减少视线的阻隔来加强家人之间的互联互动。

舒适惬意的客厅足以窥见一个家的气质,亲友小聚亦或孩子玩乐,承载着一家人的快乐与喜悦。
厨房

餐桌后方即是宽敞明亮的厨房,玻璃推拉门的加入既满足了中国人煎炒烹炸的烹饪需求和动线上的合理,也让日常清洁变得轻松。
主卧

卧室推动着睡前与醒后的每一次短暂相遇和交流。不同的色彩元素在设计师的手中仿佛拥有了生命,沉稳的深咖色+白色天花板与地面渐变色的纹理相映成趣。

金属色的灯带提升了空间的质感,空间艺术氛围感的营造,也是对家文化的升华。
长辈房

米色与亚棕色的搭配,冷暖互补加深了空间的层次,又予人以温馨优雅质的感觉。壁纸的图案让提升了空间的质感。设计师从空间的本质出发,简化不必要的装饰,只为满足其核心的睡眠需求和营造细腻而私密的氛围。

次卧

卫生间和浴室全部采用米色白色,简洁的卫浴,干净的色彩结合极简的线条造型,使用方便,储物空间也大大增加。

书房

书房是主人灵魂的栖息地,深色柜体与与白色天花交融在一起,明亮的采光,简约的书桌配上灵动的装饰。书房的打开方式,是居住者对生活的畅快写意。

“家”,是生活的承载,
是一代又一代亲情的延续之所,
设计赋予它力量,
它能够以最完善的状态给予未来生活无限的包容和可能。
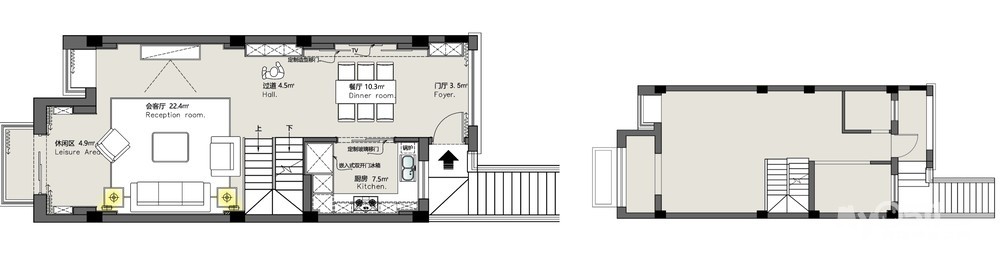
项目户型:
负一层

一层

二层

三层

安装花絮:




拍摄花絮:
全案托管服务详情
由企屋设计全程负责整体方案设计、硬装施工
主材采购、家具软装采购、整体预算控制、家政保洁等服务。
Details of whole case custody service
The enterprise housing design is responsible for the overall scheme design and hard installation construction
Main materials procurement, furniture and soft decoration procurement, overall budget control, housekeeping and other services.
INFO
项目名称 project name : 江山府
设计单位 Designer : 企屋设计
施工单位 Construction unit: : 企屋装饰
软装陈设 Soft furnishings : 企屋陈设
设计主创 Design chief creator:杨涛 胡坚
设计执行 Design executive: 胡坚
效果表现 Renderer: 严飞
摄影单位 Photographic unit: ingallery
[ 本帖最后由 企屋设计 于 2022-11-16 16:07 编辑 ]







