
从城市高密度里的焦虑里剥离出来,
家就成为了生活的珠宝盒,
盛放着时光的故事,装载着自己想要的日子。
安放了一家人的生活,人与建筑,私密与开放,始终相连。
客厅


进入室内,挑空的设计营造出的是一种属于真实生活的舒缓明快。真皮、布艺、丝绒,仅沙发和座椅就拥有了三种材质。几何线条缠绕的主灯,黑色大理石茶几一起透过材质与色彩演绎出含蓄的浪漫。


饱和度的灰与褐作为其主要颜色,浅浅铺陈、缓缓过渡,强化客厅的开阔感,延伸整体空间的疏朗视野。


内敛温润的柜体对应着横竖穿插的层板,错落有致地互相咬合,形成艺术的墙面造型。 艺术的本质是一种“有意味的仪式”,设计师用木质茶桌框定出了一隅静谧。


行走或落座,品茗或发呆,在有生命的空间里感受呼吸,宁静的享受此刻的惬意。
餐厅

餐厅汇集家人团聚的欢融体验,作为一天美味私享的空间,呈现最具烟火气的生活景象,设计师将原来的过道废除,扩大了餐桌的尺寸和整个餐厅的维度。
主卧



让材质的温润,色彩的纯粹与织物的柔软,酝酿居家的品质与幸福感。
次卧


真正的奢华是像孩子一样无所畏惧的奔跑,是对时间、空间的自由支配。次卧依旧沿袭极简的设计,把身心的放松留给灵魂的最深处。
次卧

美富有质感,粉色调的真丝枕套,让原本淡雅的空间洋溢着浪漫的气息,感受来自内心深处的喜悦和柔和。
主卫

主卧的独立卫浴间干湿分离,大理石花纹结合简约清爽干练的设计语言,散发出高级质感。壁挂式马桶、纯白浴缸等极简款式的洁具配合精致的五金,让日常居家整洁有度。
书房

书房内中性的色调、简约的线条,从视觉上伸展生长。坐下来阅读,心无旁骛,有一种被包裹的静谧安全感。在这里可独处冥想,可伏案而作。
负一层


负一层的多功能影音室是整座别墅的灵魂,在“归家即度假”的氛围里渐渐唤醒因忙碌而酣眠的心。


空间布局上设计师延续整体空间的开合感,尽量减少功能分隔,让会客畅谈的时光,从容悠然。


茶室恬适放松,蕴含着东方美学的长案和颇具禅意的落地飘窗,将怀古的浪漫优雅情怀与现代人对生活的需求结合更具生命力。

茶盏、棋盘、绿植一一排开于案头,可以焚香、饮茶,对弈,细说生心中悟道。

我们乐见繁华,但心更需要归处。
绚烂的想象与深沉的情感,都是生命的深泉在涌动,
我们对家的情感,亦是这般的丰盈。
从推开这扇门开始,
在每个平常的日子细读生活滋味,建筑和人在时光渐缓中相融、共生。
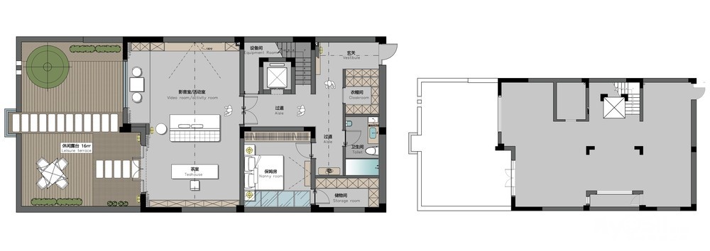
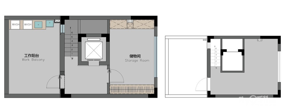
项目户型:
负一层

一层

二层

三层

四层

施工现场:



△原始结构


△ 拆砌阶段


△ 水电阶段


△ 木工阶段
拍摄花絮:







全案托管服务详情
由企屋设计全程负责整体方案设计、硬装施工
主材采购、家具软装采购、整体预算控制、家政保洁等服务。
Details of whole case custody service
The enterprise housing design is responsible for the overall scheme design and hard installation construction
Main materials procurement, furniture and soft decoration procurement, overall budget control, housekeeping and other services.
INFO
设计单位 Designer : 企屋设计
项目名称 project name: 筑和 · 江南岸
施工单位 Construction unit: : 企屋装饰
软装陈设 Soft furnishings: 企屋陈设
设计主创 Design chief creator:杨涛 冷倩蕊
设计执行 Design executive: 姚思洁 鲁博文
效果表现 Renderer : 严飞
[ 本帖最后由 企屋设计 于 2022-11-16 16:08 编辑 ]







