一个人做梦,就只是个梦;一群人怀着同一个梦,便会真实。
——约翰•蓝侬
正如本案
成长
看似简单
背后却有太多的支持和付出
作品
呈现与落地
背后也有太多的打磨和经历
这是梵木成长中非常重要的一步

630㎡香格里拉庄园
——企屋设计团队
设计项目 • 香格里拉庄园
项目性质 ▏全案定制
设计风格 ▏现代时尚
主创设计 ▏杨涛、胡坚
施工单位 ▏企屋设计

一层平面布置图

二层平面布置图

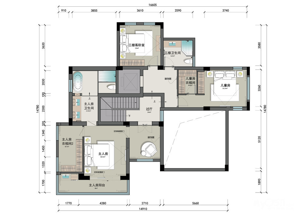
三层平面布置图
门厅


线条是空间风格的架构
简洁线条最能体现出现代风格的精神
要塑造现代风格一定要先将空间线条重新整理
整合空间垂直水平线条
讲求对称与平衡 不做无用装饰
呈现出利落的线条 让视觉不受阻碍在空间延伸
客厅



我们常常很难回答关于风格的问题
比起定义一个居室的风格 我们更愿意去描述
住在那里面的是怎样的一家人有着怎样的爱好、经历、关系


休闲娱乐区


留有足够空间用来家庭活动 温馨的三代同堂

厨房

餐厅
这个过程会很像完成一部小说
一开始 你塑造他的面目、轮廓
组织他的爱好 揣摩他说话的方式、独处的样子
就这么一点点勾勒出他的个性、日常
然后用每一本书、每一部电影、一首恰到好处的音乐
和那些带着偏见的艺术品、去丰满他的血肉脉搏


卧室

这些原始素材的采纳过程
我们称之为生活的加法
之后 我们要有所取舍 锤炼每一个细节
最终提炼出最适合的话语方式
来面对个性化和群体共鸣之间的平衡
也就是设计的减法



书房


影音室

所有的甜蜜都与成长的忧伤有着千丝万缕的联系
大人说没发生过的都是梦
童话里的独角兽说
相信梦就会得到幸运
卫生间



一所好的住宅空间
设计要实现的不止是生活功能上的舒适
更重要的是契合业主的精神需求
业主注重内在精神感受希望在家可以放松做自己
企屋在空间设计中抛开限制式的形式美
更多的是回归到空间与人在氛围上的感受力
楼梯

用这些带着他的精神的物件
去构成一个个生活的片面
最后的最后
当你赋予了空间足够鲜活的情绪、好恶和情感之后
它会自己说出故事来

[ 本帖最后由 企屋设计 于 2023-2-13 15:37 编辑 ]







