
空间从来不是主角,
它所尽力去表达的,在试图描摹人们的行为、
情绪、感知中所流露出的印迹才是空间的灵魂所在,
围绕着追寻美、塑造美而展开。


本案是医疗美容属性的女性空间,注重功能性的同时带有诗意性的将空间展开, 门前用鹅卵石拍摄部分区域与材质的地板形成材质和线条的对冲,同时落地窗边用圆形作为装饰,拉满艺术感氛围。两侧的载满鲜花的花坛延台阶而上,让公区也可以成为店面的延伸,使得进入店内的客人的在第一眼就会邂逅美,追随美。

整体空间我们以浅米调为主,空间中柔中带力的曲线,让原本固态的空间变得灵动,以此折射出在女性身上独有的特性美,营造出特有的安全感与归属感。

洽谈区内,根据契合空间的极简语言,选择相同色系的家具陈设,强调空间的完整性。弧线与弹性材质形成的柔软感,与材料的利落线条构成一组风格强烈的视觉对比体,隐喻女性内在的坚定强悍与细腻柔和的独有魅力。


基于白色的主色调,大面积的玻璃窗将城市景观纳入视野,同时借景引光拉近人与自然的距离。


精简的形式和共享的功能有效消弭了心理上的陌生感,借以绿植的穿插更增强了空间亲和度。


休闲等候区内,金色的线条金属装饰让空间变得更加精致浪漫,而金属色带来轻奢感,更显档次和品味。


洗手台、镜子、壁灯用高低错落成就美的仪式感,光影交错形成一虚一实的形态关系,让时间变得缓慢柔和,静下心来与身体和心灵进行一场对话。

皮肤检测区,皮质和布面元素设计的桌椅圆融舒缓。垂落的吊灯烘托出专注、放松的房间氛围。


顺楼梯而上,便步入了二楼的主诊疗区,头顶上打磨成弧形的灯带,从细节处强化了室内环境的柔美。大片白色的楼梯给人温柔的包裹感,细腻而有格调,温润而优雅,带给人舒适放松的视觉感知。

化妆区,透明亚克力元素设计的桌椅低调明净,与美容镜上的点状光源相互辉映。

精简即是精炼,曲线感的镜子映衬点睛的造型花瓶,享受灵感的荟聚,在每一处角落都埋下细节之美的伏笔,为整个空间注入宁静温和的力量。

美容功能室的墙壁设计富有层次感,让空间视觉更立体,用灯光带作为主光源,柔和的光线烘托温馨氛围,视觉传导触感,加深感官厚度,让人更放松沉浸,大块面的素色将平衡动态观感极致呈现, 以现代方式重构传统秩序美, 柔和光线提炼天花块面轮廓,将惬意氛围表现得深入细腻。



镜子、 桌面 、凳子、浴缸,无处不在的弧形元素贯穿始终,很好的柔化了空间氛围。除了皮肤管理之外,各种曲线的强烈存在感更是将女性柔美、顺滑质感等关键点作为设计的灵感,意在让整个空间给顾客一种梦幻、流畅、顺滑的体验感。

光与景是来自大自然的最宝贵的设计底色,是美学与功能的融合,更是感性与理性的平衡。

光之于空间,犹如空气之于生命。楼顶的天窗引光入室,还能为纵深空间带来光影更迭,产生特殊的节奏和韵律感。
生活不止有职场与家庭,更有自我。
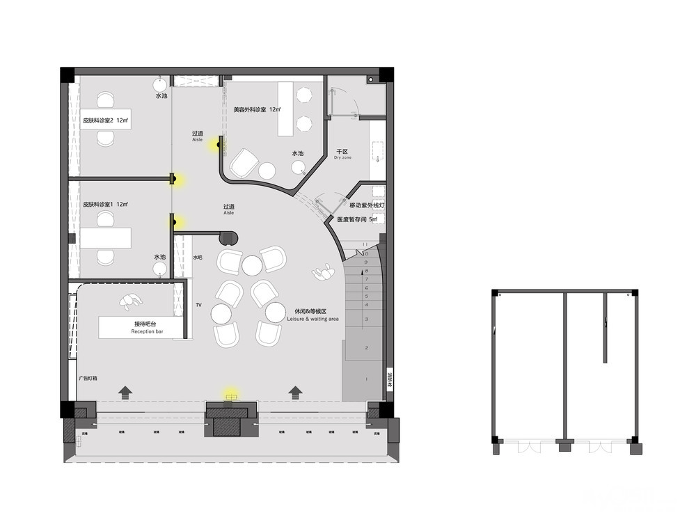
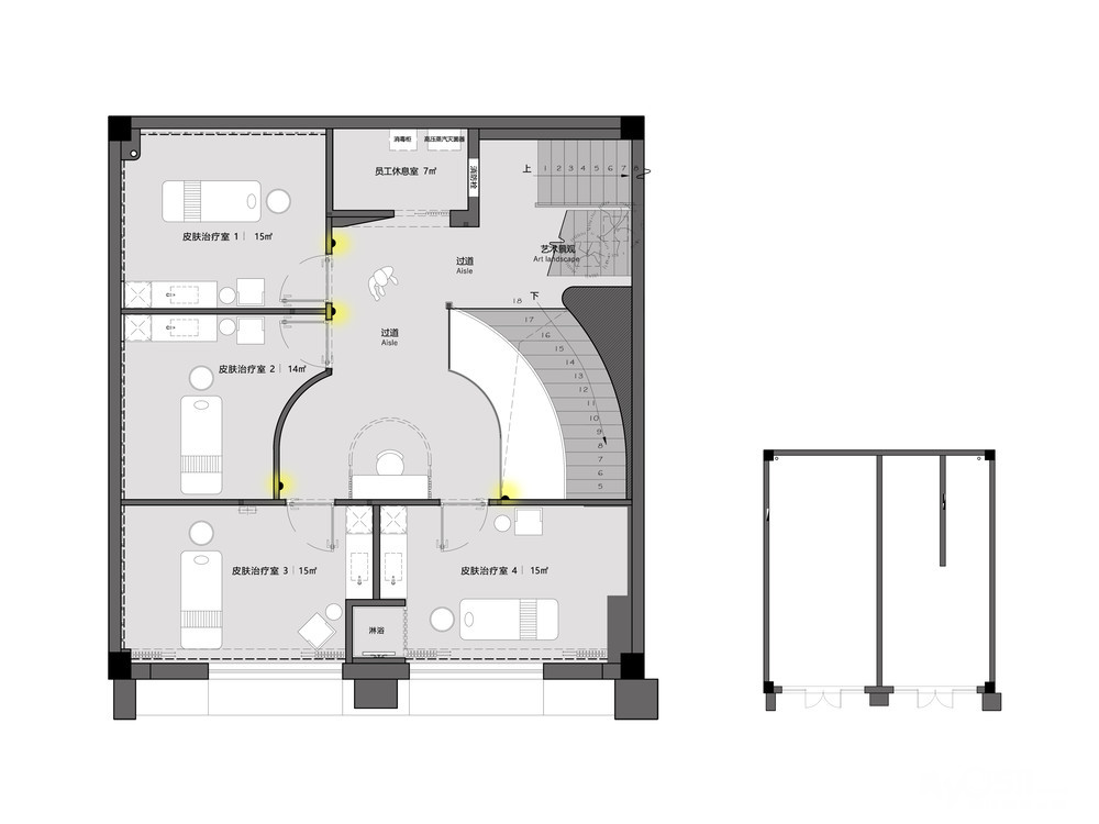
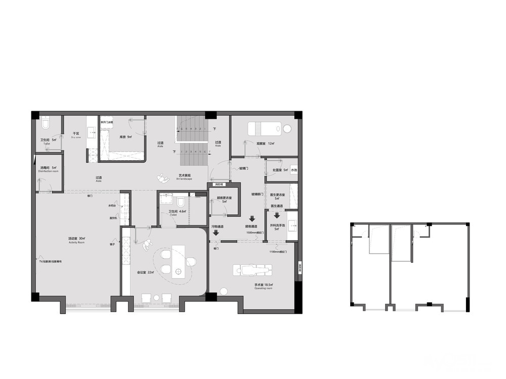
项目户型:
一层

二层

三层

施工过程:



△ 施工现场





△ 拍摄花絮
全案托管服务详情 由企屋设计全程负责整体方案设计、硬装施工 主材采购、家具软装采购、整体预算控制、家政保洁等服务。 Details of whole case custody service The enterprise housing design is responsible for the overall scheme design and hard installation construction INFO 设计单位 Designer : 企屋设计 项目名称 project name: 艺启美 · 医疗美容 施工单位 Construction unit: : 企屋装饰 软装陈设 Soft furnishings: 企屋陈设 设计主创 Design chief creator:杨涛 冷倩蕊 设计执行 Design executive: 姚思洁 鲁博文 效果表现 Rendere: 严飞 高崇伟







