
生活的真正轮廓。本案以“家的平衡”为原点,关注空间内不同家庭成员的生活需求,于有限的空间内构建温情、柔和的氛围。强化空间的连接感与人性化,凸显不一样的理性与感性。
客厅


客厅采用大面积留白,大理石装饰墙则是视觉焦点。落地窗将“拾光留影”的框架搭建起来,令光影以温柔的姿态映射于客厅内。



灰色的地板镌刻的是属于大自然的纹理,茶几上的蜡烛形灯具,为空间增添了几分旖旎的情绪。


灯光、自然、光影、线条的巧思运用,暗藏在空间的故事中。石材、布艺、金属等材质的综合运用,令场景更加鲜活。

客厅方正宽敞的布局既可众客以聚,亦可围合小叙。 开放式动线映射出纷呈的轮廓,使其更符合大平层的空间视野。


客厅与餐厅的玄关处,是一幅黑白元素的装饰画成为两个生活空间的缓冲和过度。黑与白,感性和理性,当世间万物的两个极端发生和谐的碰撞,空间的一致性反而得到了更完美的实现。

方正的空间感完美划分了各自的区域特色,白色调的背景墙可以自由链接了厨房和餐厅的关系,同色系圆桌圆润的曲线,增强了空间的稳定感,,让空间更显亲近与温暖。
餐厅


线条的单一性、面的组合性、块的独立性三者结合, 让空间排列更加柔和、协调。黑与白,本是自然的昼与夜,光影交织所传递出的自然之美,同样适用于空间本身。


开放式厨房在冷调的背景色之上引入自然光源,利落的线条与柔和的光线相结合,烘托家具的轻奢调性。日常生活的合理需求与艺术氛围的典雅高级,在环境中得到极致的表达。


岛台可兼做餐桌,能够更好地利用空间,一家人在下厨时可以互动交流,可以在这里喝茶、看书、聊天···厨房的功能已经不再是单纯的烹饪。


和谐的色彩搭配,和极富艺术感的饰品点缀,于极简中现丰盈,于个性处添优雅。

空间巧妙布局之下划分出功能区,人与人之间的情感关系,都在餐间凝聚与流动,空间的理性与生活的感性在烟火生活下相交相融。
主卧

主卧整体空间主色调,黑、白、灰、木,调和出一副惬意、慵懒的文艺生活画卷回归安静又充满质感的睡眠空间。


浓淡相宜的空间配色,褪去一天的疲惫和压力,在每个晨光的熹微里,拉开白色纱幔,让和煦暖阳轻吻惺忪的睡眼。

女孩房

延续主卧典雅浅淡的基调,摒弃了繁冗复杂的装饰,粉色系的卧室彰显了女孩房甜美的气质,自由而美好,是寄予孩子最纯粹的信仰。

在温暖柔和的主色调里,更能让孩子感受到家的温馨与爱。
男孩房


男孩的房间内,大面积的落地窗引入自然的光线,极简的几何线条营造了通透的效果。

功能布置上,对孩子生活方式可能性进行“留白”。
主卫

卫生间以暗黑系色彩赋予空间高级质感,硬朗简洁的线条,搭配简约的陈设,石材与镜面的对撞,在明暗中形成有效律动,满足“功能”与“审美”的平衡。
都市的喧嚣中,一盏灯光为你而亮,
外界的干扰里,一隅天地为你而在。
让感性和理性共存,
并与极致的美学积淀逐一贴合,生活里的至情至味,悠长而辽远。
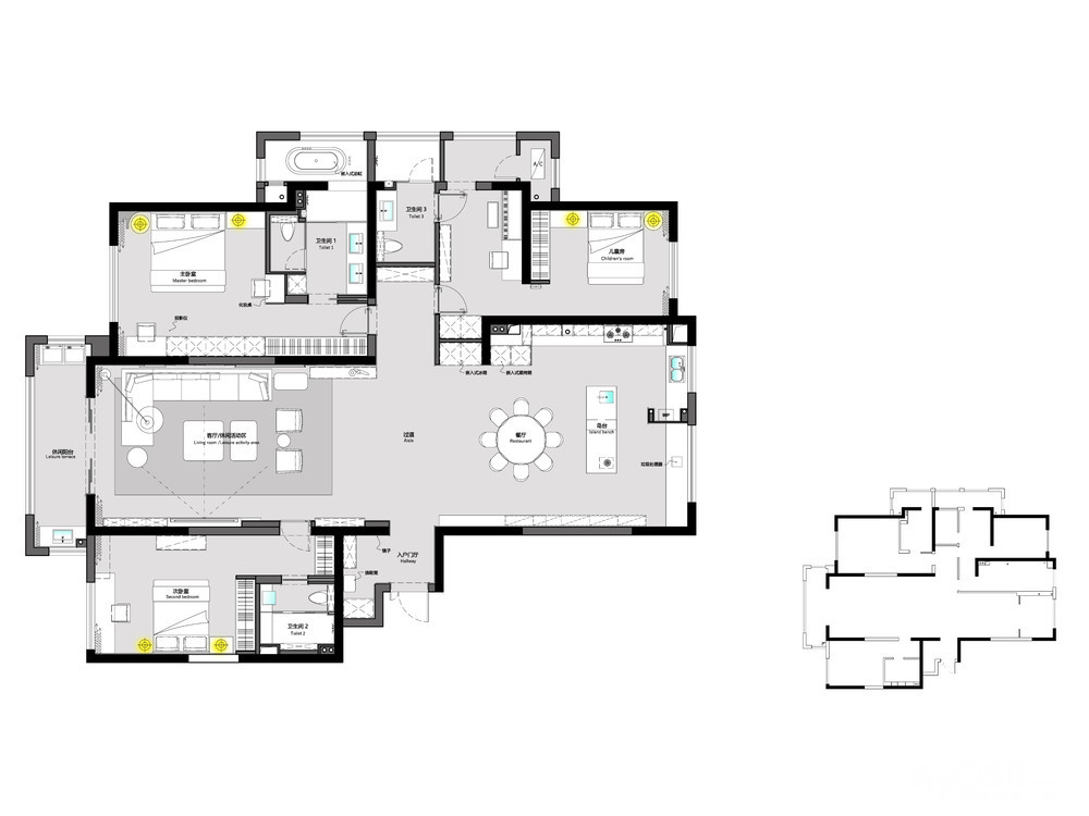
项目户型:

拍摄花絮:




全案托管服务详情
由企屋设计全程负责整体方案设计、硬装施工
主材采购、家具软装采购、整体预算控制、家政保洁等服务。
Details of whole case custody service
The enterprise housing design is responsible for the overall scheme design and hard installation construction
Main materials procurement, furniture and soft decoration procurement, overall budget control, housekeeping and other services.
INFO
设计单位 Designer : 企屋设计
项目名称 project name: 东方诚园
施工单位 Construction unit: : 企屋装饰
软装陈设 Soft furnishings: 企屋陈设
设计主创 Design chief creator:杨涛 冷倩蕊
设计执行 Design executive: 姚思洁 鲁博文
效果表现 Rendere: 严飞 高崇伟
[ 本帖最后由 企屋设计 于 2023-4-20 14:33 编辑 ]







