
空间所带来的爱意源自生活,亦源自浓厚的设计。家的样子,应该要成全自己理想中的生活。以设计为起点,对主人生活习惯与生命状态的进行细致观察,将重点放在突出起居空间的社交属性与场域精神上,用干净利落的线条艺术为丰富的延伸埋下伏笔,理想在生活中生成具象。
序言:
都市人的理
想住宅大多临山近水有小院,然城市住宅能拥有的窗外景观不比山林、河海,大多乏善可陈,本案位于一楼,结合自有小院为三口之家创造出一个属于他们的宁静居所,原为精装房,前期和业主充分沟通,将原装修全部拆除。
结合业主需求,设计师将原厨房打开,功能性外移,设置餐厅及品茗区,空间更为通透,紧密。
客厅


客厅是家的核心,静谧的灰与温润的木,光线穿梭在陈设之间,赋予方正的空间内舒缓的律动,留存下有关于自然的印记。一器一物皆以安静的存在诠释着空间本身应有的调性与底蕴。



大理石的静谧深邃,白色与深色的奏鸣,赋予了居所垂直向度的层层透见,通过大面积开窗引光入室将自然通透的优雅美学传递给感受当下的语境之中。


一把布艺沙发,几处光源点缀,细化生活场景,跃动视觉层次,促使布局更透气、更自由,让物、境、情更具深刻的联结感。
餐厅


餐厅通过黑色与米色进行搭配,如褪去繁华后回归本真,映照舒适而平和的生活状态。坐下来好好吃饭,温馨的气息和家人脸上温暖的笑容,随时在为生活加糖。

厨房


一扇推拉门,加大了居所使用的可能性,从厨房到餐厅,动线流畅完整。碗筷碰撞,温情和着佳肴的浓香,就是这平凡又珍贵的日常。
品茗区

推门即景,开放式的茶室引入眼帘,绿植和画作为之注入鲜活的气息,游曳的浪漫循序渐进,素雅的空间弥漫着丰富的质感
。

清雅的氛围徐徐展开,盎然的生机喷薄欲出,在错落有致的茶盏中,在清雅素朴的茶桌上,在悠然自得的日子中。场景已经构造完毕,至于之后的故事,就请放心交给时间。
主卧


卧室则注重以中式风格引出轻奢质感,墙壁上中国画赋予光阴以美好。极具艺术美感的床头灯盈盈垂落,温暖的光芒守护怡人的梦乡。

无论是日间穿透窗帘自然的光线,还是夜间氛围柔和的照明情景,在这里,氛围是宁静舒适的,布局是开阔通透的,感受到生活中的点滴幸福和美好,获得内心平静的舒适。
儿子房

光影变化和不同软装材质的切换,将艺术与浪漫完美融合。以孩子身体的舒适作为设计的衡量尺度。柔软、放松、细腻、亲肤。


理想的居所,是一处独特的情感寄托,它串联起日常的鲜活片段,容纳多样的空间情节,去影响人们情绪的走向。回归真实的生活,成为既是能够打理好自己现有一切的园丁,亦是足以从容面对未来人生的勇士,关于生活的理想,不过如是。
拍摄花絮:




项目信息:
■ 设计单位 | 企屋设计
■ 项目名称 | 碧桂园滨湖湾 · 誉园
■ 项目面积 | 200㎡
■ 软装陈设 | 企屋陈设
■ 项目主创 | 杨涛 胡坚
■ 项目执行 | 赵成成 陈兆红
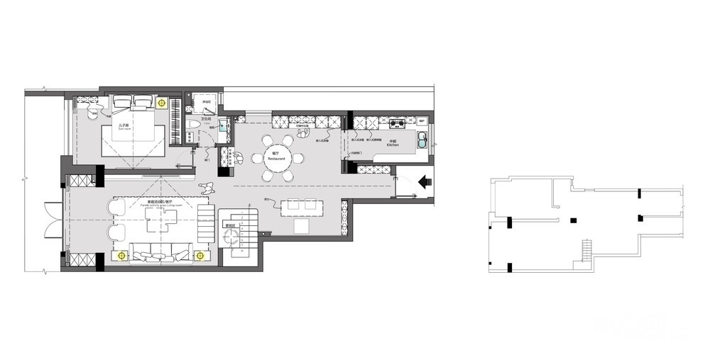
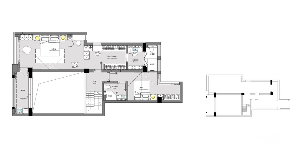
项目户型:



房屋原始
全案托管服务详情
由企屋设计全程负责整体方案设计、硬装施工
主材采购、家具软装采购、整体预算控制、家政保洁等服务。
Details of whole case custody service
The enterprise housing design is responsible for the overall scheme design and hard installation construction
Main materials procurement, furniture and soft decoration procurement, overall budget control, housekeeping and other services.
[ 本帖最后由 企屋设计 于 2024-4-6 15:05 编辑 ]







