
■案例名:静.白
■面 积:143
■风 格:现代简约
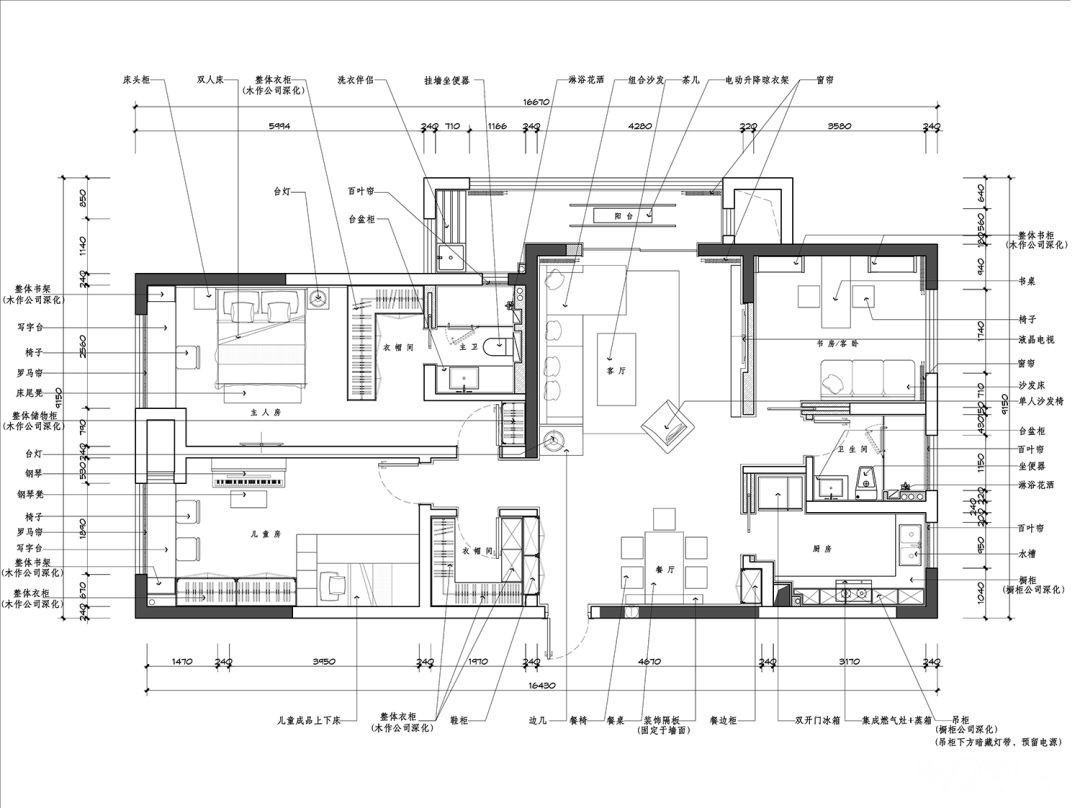
平面图

生活是一个大容器,装的下喜悦,也装的下悲伤。住宅空间是生活容器的载体,用一切可以表现的外在形式,去书写自己的情绪,去表达家庭的生活方式。
客厅


至静至白的空间,设计师运用原木和白色高光护墙板等手法去表现。灰色的布艺沙发,看似不经意,却恰到好处的表现了整个动态空间的温柔时光。
餐厅


餐厅与客厅相连,延续原木为主题,简约的设计大方得体。整个空间没有多余的装饰,以实用的白色橱柜设计让空间变得整洁,有序。
主卧


本案例中,男女主都是从事外贸行业,从事外贸的都知道,很多贸易往来是有时差的,所以本案例中,设计师将书桌与卧室连接,既节省了空间,也满足了业主的需求。
皮质床与颇具设计感的床头灯相互呼应,让整个睡眠空间变得精致氛围十足。
儿童房

本期的儿童房可以说是很书生气啦,一看就能知道孩子的年龄。为了给孩子一个很好的学习空间,整个儿童房将书桌与柜子相连接,增加了储物的空间,让书桌靠近窗台,给予房间充足的光线。
厨房

好的设计师服务于生活的,本期案例充分考虑到业主的需求,不花哨,不冗余。简约直白的表达了空间的实用性。

服务网点:
【镇江】
润州区:旭辉时代大厦1505室
TEL: 0511-85603303
微信咨询:18652823579
官方网站:【此处为站外链接,请谨慎打开】
[ 本帖最后由 鸿鹄设计镇江站 于 18-6-23 13:46 编辑 ]







