不追求刻意,不强化风格,不着墨矫饰,家与业主的居住日常相融一体,回归本真。简约的线条,大胆的黑色木饰面,丰富空间的内容。
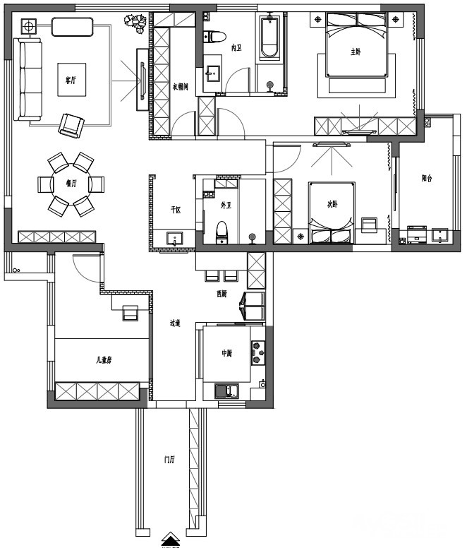
平面图

面积 | 140㎡
风格 | 现代简约
客厅




设计师以奶茶色这样低饱和度的色系,打造出简雅柔和的空间韵调,为日后的生活场景留足想象与施展的余地。大胆的使用黑色作为电视背景墙,让空间的层次更加丰富,装饰小品不多且简净,几本闲书,叹茶翻书,便足以架构起居住者的生活日常。
餐厅




餐厅延续会客厅空间的基调,以简单的形制礼遇生活之美。大理石圆形餐桌,简单且开阔。睿智的黑色背景墙在空间中焕发着张力,突出设计臻选的态度与品质的精尚。
主卧

主卧无主灯设计,而是将灯光收纳于吊顶内,使室内显得更为柔和安适。设计将真正的尊享藏于每个细节,精细打磨的墙面与木制地板、细腻柔软的暖棕色床品,通过材质的光感隐透简净高雅的质感美学。
儿童房

始终坚持安静纯粹的方式做私宅设计,结合居住的舒适体验性,在材料、功能、纹理及色彩上加以细致地处理,拉近设计与生活的距离,让居者与空间一同安然相依,欣然生长。
任何装修设计问题,可以咨询他们
▼
管家小熊◤18652823579◢(可加微信)
管家丽丽◤18014589727◢(可加微信)

装修设计/软装配饰一站式整体服务
【镇江店】
镇江市青年广场旭辉时代大厦写字楼1505
[ 本帖最后由 鸿鹄设计镇江站 于 2019-3-24 14:54 编辑 ]







