【设计师】: 葛晨露(首席设计师)

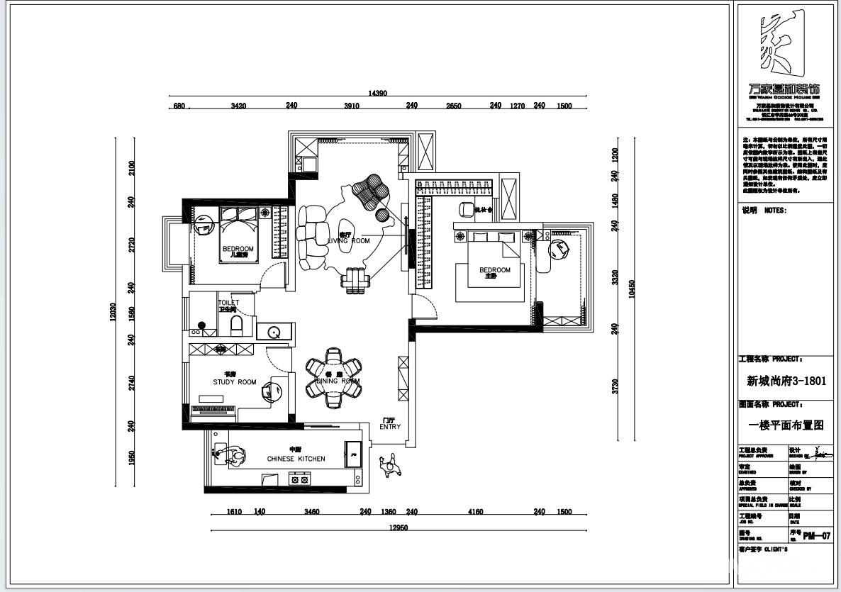
平面布置图

效果图预览
有法式优雅,有现代舒适,通过材质对话与光影叙事,
打造兼具浪漫质感与实用功能的长期主义居所。





保留法式风格的核心符号——拱形门洞/墙面造型与精致石膏线,
赋予空间优雅的纵深感与仪式感。


客餐厨区域采用开放式设计,打破墙体阻隔,
实现视线与动线的无缝衔接。




在追求视觉美感的同时,兼顾收纳与日常使用的便利性,
让家成为既能安放灵魂、又能从容生活的舒适场域。
手机扫码看全景效果图

[ 本帖最后由 万家基和客服 于 2026-3-16 15:17 编辑 ]







