【设计风格】: 奶油风
【合同类型】: 全包
【设计师】: 贺慧勇(高级设计师)

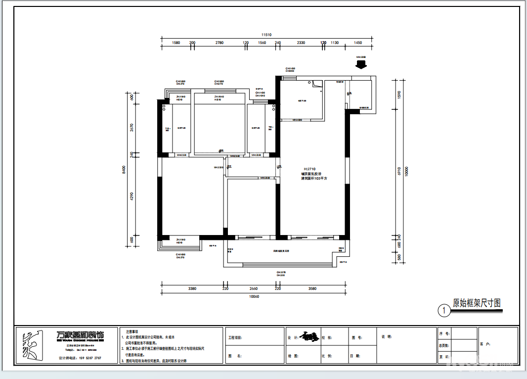
原始结构图

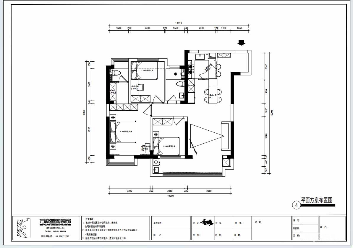
平面布置图

效果图预览

全屋以奶白色、浅米杏、温润原木色为主色调,
摒弃浓烈撞色与厚重深色,
统一柔和的浅暖奶油色系,弱化空间视觉压迫感,
让光线在空间里柔和漫反射

整体氛围干净、温暖、不刺眼,营造出像云朵一样柔软、
能瞬间放松身心的居家底色。


空间大量预留留白,软装陈设精简克制,不堆砌多余装饰,
保证开阔通透的空间感,视觉干净清爽,
从根源上缓解杂乱带来的焦虑感。


中西厨分离 + 中央岛台,洄游动线流畅开阔,
做饭、备餐、用餐、互动互不拥挤;
打通空间边界,做饭时也能和家人互动,
彻底告别做饭的孤立感,强化家人之间的情感联结


兼顾颜值、实用性、舒适度,
适配日常休闲、宅家放松、轻社交的居家场景,
打造一个治愈、温馨、耐看、越住越舒服的温柔居家空间
[ 本帖最后由 万家基和客服 于 2026-4-21 09:23 编辑 ]







