
- 来自 江苏省
- 精华 0
- 注册 2014-11-7
- 来自 江苏省
- 精华 0
- 注册 2014-11-7
第二站到万家基和找李大师进一步商讨设计方案。今天老公感冒严重,喉咙亚得不能说话,但考虑到已约好设计师,去年八月底平面方案初定后一直没进展,一方面我转忙老家房,另一方面李大师活太多顾不上我家。现再次启动,也想早点让设计师出效果图,只能让老公带病上阵,谁让家的美丽和谐他负责呢。
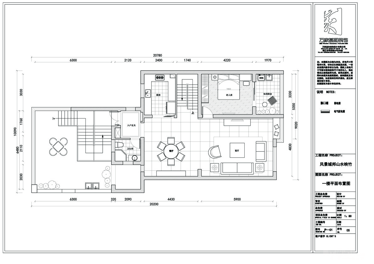
讨论非常有成效,一方面平面图的进一步修改多了个小平台,满足老公一起床就能享受阳光雨露的要求;另一方面通过看设计师帮我们准备的图库,对风格的定位有了统一思想,我总结为现代简中。下一步就彻底交给李大师操刀了。
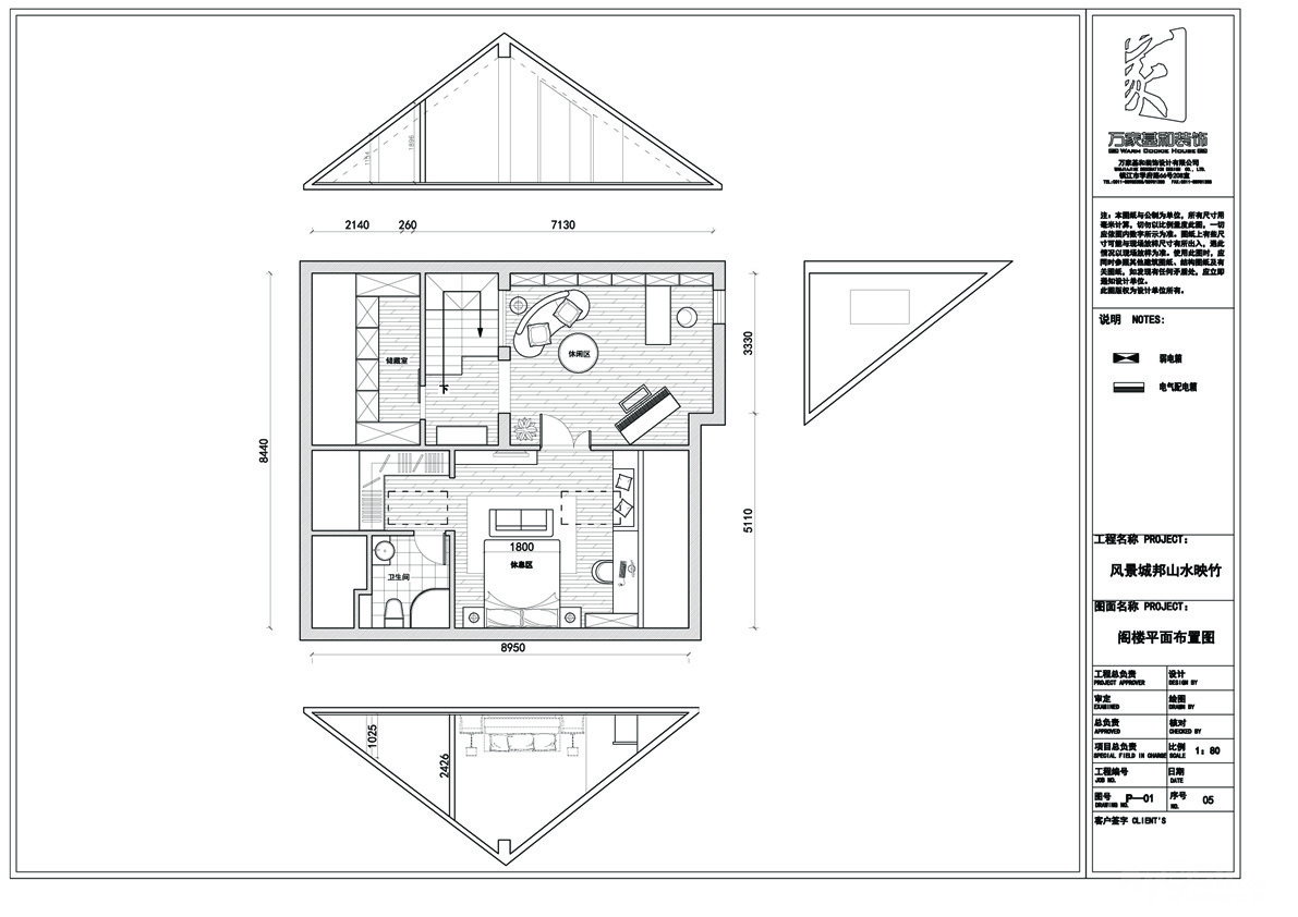
临走,李大师建议敲墙砌墙的土建活可根据平面方案先动起来,这样进度快些。可以,土建我先来弄,约好下周到现场再次核对平面方案。有要开工的感脚呀。
讨论非常有成效,一方面平面图的进一步修改多了个小平台,满足老公一起床就能享受阳光雨露的要求;另一方面通过看设计师帮我们准备的图库,对风格的定位有了统一思想,我总结为现代简中。下一步就彻底交给李大师操刀了。
临走,李大师建议敲墙砌墙的土建活可根据平面方案先动起来,这样进度快些。可以,土建我先来弄,约好下周到现场再次核对平面方案。有要开工的感脚呀。
















看不到图,提不了意见



