收藏本站
客户端
扫码下载客户端
官方微信
打开微信扫一扫
登录
|
注册
|
标题
标题
用户
全站首页
|
论坛导航
|
网络问政
|
招聘求职
|
买房租房
|
装修频道
|
生活服务
|
教育
|
相亲
|
亲子
|
美食
|
婚嫁
|
手机客户端
家有学子
|
母婴乐园
快捷导航
精彩推荐:
MY0511客户端下载
中信银行镇江分行
公益体彩 乐善人生
鹏龙鸿蒙
天然石材·人造石
»
梦溪论坛
»
家庭装修
» 爱纠结的天秤座二宝妈忙装修--记录人生中第一次装潢的过程(硬装结束,效果很满意)
家庭装修
>
[装修日记]
爱纠结的天秤座二宝妈忙装修--记录人生中第一次装潢的过程(硬装结束,效果很满意)
查看: 51118 回复: 165
快速回复
返回家庭装修
166
2/4
<
1
2
3
4
>
[装修日记]
爱纠结的天秤座二宝妈忙装修--记录人生中第一次装潢的过程(硬装结束,效果很满意)
查看: 51118 回复: 165
上一主题
|
下一主题
fcajcl
来自 江苏省
精华 0
注册 2008-6-18
行业 其它
自己的帖子,自己翻页自从开始装潢,天天看京东,看苏宁。
刚刚下单了一套法恩莎的东西,放在主卧的卫生间。
到手2999,是不是很划算呢
[
本帖最后由 fcajcl 于 17-5-26 11:17 编辑
]
2017-5-26 11:15
51楼
[联宇电脑] 电脑组装\维修\升级\企业单位电脑维护!
只看该作者
分享本楼
燕泥地热地板
来自 江苏省
精华 0
注册 2017-4-12
QUOTE:
原帖由
fcajcl
于 17-5-22 16:21 发表
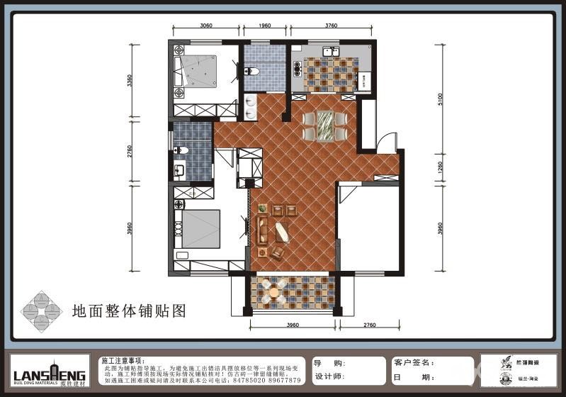
[attach]22282921[/attach]客厅的瓷砖
[attach]22282920[/attach]
房间用地板
这个两款都是我心仪的颜色。希望铺上去效果会好啊。
谢谢楼上各位,帖子还太瘦,我会随时汇报情况的。
恭喜开贴,这几款的铺装效果绝对杠杠滴,让你满意!
2017-5-26 13:01
52楼
找工作,就上MY0511!
只看该作者
分享本楼
暖洋洋暖通
专版版主
来自 江苏省
精华 0
注册 2014-11-4
行业 房产建筑
宝妈应该给二宝装个地暖才是
2017-5-26 13:13
53楼
[联宇电脑] 电脑组装\维修\升级\企业单位电脑维护!
只看该作者
分享本楼
fcajcl
来自 江苏省
精华 0
注册 2008-6-18
行业 其它
QUOTE:
原帖由
暖洋洋暖通
于 17-5-26 13:13 发表
宝妈应该给二宝装个地暖才是
[attach]22302908[/attach]
[attach]22302909[/attach]
穷,,,,下次装潢再说吧
谢谢你
2017-5-26 14:09
54楼
买房、卖房、租房上镇江房产网!
只看该作者
分享本楼
石头铺子
来自 江苏省
精华 0
注册 2017-2-22
恭祝开工大吉!
---发自vivo---
2017-5-26 14:26
55楼
[联宇电脑] 电脑组装\维修\升级\企业单位电脑维护!
只看该作者
分享本楼
镇江欧意橱柜
来自 江苏省
精华 0
注册 2016-11-7
楼主加油,快乐装修!
2017-5-26 14:28
56楼
0511家装频道:本地家居服务平台,数万业主共同选择
只看该作者
分享本楼
fcajcl
来自 江苏省
精华 0
注册 2008-6-18
行业 其它
QUOTE:
原帖由
燕泥地热地板
于 17-5-26 13:01 发表
恭喜开贴,这几款的铺装效果绝对杠杠滴,让你满意!
老板娘,你家踢脚线给我再优惠点撒
2017-5-27 10:02
57楼
MY0511相亲,一分钟注册,享一辈子幸福!
只看该作者
分享本楼
fcajcl
来自 江苏省
精华 0
注册 2008-6-18
行业 其它
我刚刚发现。上首页啦。。。我晕。。好激动啊
[
本帖最后由 fcajcl 于 17-5-27 10:45 编辑
]
2017-5-27 10:43
58楼
[联宇电脑] 电脑组装\维修\升级\企业单位电脑维护!
只看该作者
分享本楼
fcajcl
来自 江苏省
精华 0
注册 2008-6-18
行业 其它
哈哈,好开心,金屋顶的周总发现帖子上首页,立马给我发了个大红包。。红包可以有,但是我更期待金屋顶保证好施工的质量,给我一个完美的新家
[
本帖最后由 fcajcl 于 17-5-27 10:53 编辑
]
2017-5-27 10:52
59楼
买房、卖房、租房上镇江房产网!
只看该作者
分享本楼
lucyljj
来自 江苏省
精华
1
注册 2005-9-6
很美的装修图,顶一个,装好了来你家参观哦,知道我是谁吗?
2017-5-27 11:38
60楼
[联宇电脑] 电脑组装\维修\升级\企业单位电脑维护!
只看该作者
分享本楼
pm8899830
来自 江苏省
精华 0
注册 2008-5-8
行业 政府行政
老友的帖子必须顶啊,祝开工大吉哈!早日入住自己心爱的小窝。。
2017-5-27 12:44
61楼
MY0511相亲,一分钟注册,享一辈子幸福!
只看该作者
分享本楼
fcajcl
来自 江苏省
精华 0
注册 2008-6-18
行业 其它
QUOTE:
原帖由
lucyljj
于 17-5-27 11:38 发表
很美的装修图,顶一个,装好了来你家参观哦,知道我是谁吗?
欢迎来做客,但是我真没看出来你是哪个
2017-5-27 14:13
62楼
0511家装频道:本地家居服务平台,数万业主共同选择
只看该作者
分享本楼
跳跳虫
来自 江苏省
精华 0
注册 2006-12-6
行业 其它
不错
2017-5-27 15:26
63楼
[联宇电脑] 电脑组装\维修\升级\企业单位电脑维护!
只看该作者
分享本楼
fcajcl
来自 江苏省
精华 0
注册 2008-6-18
行业 其它
5.27 自从装潢,我每天都会去新房子看一下。昨天去的时候,已经接近七点,两个小师傅还在忙。在打扫卫生。我很喜欢阳台西边看出去空旷开阔的感觉,也是我为什么挑西边户的原因。东边有比我们高的楼挡住了视野。嘿嘿
[
本帖最后由 fcajcl 于 17-5-27 15:57 编辑
]
2017-5-27 15:55
64楼
0511家装频道:本地家居服务平台,数万业主共同选择
只看该作者
分享本楼
fcajcl
来自 江苏省
精华 0
注册 2008-6-18
行业 其它
QUOTE:
原帖由
pm8899830
于 17-5-27 12:44 发表
老友的帖子必须顶啊,祝开工大吉哈!早日入住自己心爱的小窝。。
我知道你是哪个,哈哈
2017-5-27 15:59
65楼
MY0511相亲,一分钟注册,享一辈子幸福!
只看该作者
分享本楼
neilly猫
来自 江苏省
精华 0
注册 2012-6-25
行业 其它
你和小潘都开贴啦,给你们都顶一顶
2017-5-27 16:23
66楼
0511家装频道:本地家居服务平台,数万业主共同选择
只看该作者
分享本楼
fcajcl
来自 江苏省
精华 0
注册 2008-6-18
行业 其它
QUOTE:
原帖由
neilly猫
于 17-5-27 16:23 发表
你和小潘都开贴啦,给你们都顶一顶
哪个小潘啊????
2017-5-27 16:33
67楼
买房、卖房、租房上镇江房产网!
只看该作者
分享本楼
Kuka123
来自 江苏省
精华 0
注册 2017-5-13
行业 房产建筑
哈哈哈哈 那我大概是选择恐惧症患者的天蝎座 哈哈哈 喜欢楼主 期待美图
2017-5-27 16:44
68楼
[联宇电脑] 电脑组装\维修\升级\企业单位电脑维护!
只看该作者
分享本楼
宜兴红茶
来自 0
精华 0
注册 2017-3-10
QUOTE:
原帖由
fcajcl
于 17-5-22 10:54 发表
【小区名称】:福临广场
[size= ...
开工大吉
2017-5-27 17:31
69楼
[联宇电脑] 电脑组装\维修\升级\企业单位电脑维护!
只看该作者
分享本楼
andy891211
来自 江苏省
精华 0
注册 2011-7-29
行业 IT 通信
如果地面开槽走线效果更棒
2017-5-28 10:57
70楼
MY0511相亲,一分钟注册,享一辈子幸福!
只看该作者
分享本楼
zjlkcp
来自 江苏省
精华 0
注册 2014-7-2
行业 房产建筑
恭喜楼主开贴,橱柜衣柜可以开始看起来啦
,我们马上做周年庆了
2017-5-28 17:33
71楼
0511家装频道:本地家居服务平台,数万业主共同选择
只看该作者
分享本楼
delarge
来自 江苏省
精华
4
注册 2008-7-25
行业 房产建筑
橱柜那边那么多水管分别是什么啊?
2017-5-28 23:48
72楼
买房、卖房、租房上镇江房产网!
只看该作者
分享本楼
beddy
来自 江苏省
精华 0
注册 2016-8-31
恭喜开工,需要木工联系杨师傅,13813559941
2017-5-31 13:45
73楼
买房、卖房、租房上镇江房产网!
只看该作者
分享本楼
fcajcl
来自 江苏省
精华 0
注册 2008-6-18
行业 其它
端午三天假期,每天都很忙。定了瓷砖,定了移门,还测了水压。
当时要求金屋顶给我升级到6分管,不要公元,要伟星。
伟星的服务还挺不错的,因为我家装了前置净水,测水压的师傅,先帮我把净水器拆了下来。再帮我测的水压。20分钟,水压只掉了0.3公斤,符合要求。还给我质保卡,可以质保50年。
[
本帖最后由 fcajcl 于 17-5-31 14:44 编辑
]
2017-5-31 14:40
74楼
找工作,就上MY0511!
只看该作者
分享本楼
fcajcl
来自 江苏省
精华 0
注册 2008-6-18
行业 其它
装大的网红,德莉玛移门,也是我心心念念的一个产品。5.28的工厂店活动也是很有吸引力,看到了网红张总和陈总。下单了上个月就看中的对开门移门。还送了我浴巾和吹风机,老公带着二子也没闲着,星巴克的咖啡糕点也很美味。
[
本帖最后由 fcajcl 于 17-5-31 14:49 编辑
]
2017-5-31 14:47
75楼
买房、卖房、租房上镇江房产网!
只看该作者
分享本楼
fcajcl
来自 江苏省
精华 0
注册 2008-6-18
行业 其它
QUOTE:
原帖由
Kuka123
于 17-5-27 16:44 发表
哈哈哈哈 那我大概是选择恐惧症患者的天蝎座 哈哈哈 喜欢楼主 期待美图
真的特别怕做选择。这次定瓷砖的时候我才是要疯了。那么多砖,看着每个都喜欢。最后定了哪个我自己都记不得了
2017-5-31 14:54
76楼
MY0511相亲,一分钟注册,享一辈子幸福!
只看该作者
分享本楼
fcajcl
来自 江苏省
精华 0
注册 2008-6-18
行业 其它
QUOTE:
原帖由
zjlkcp
于 17-5-28 17:33 发表
恭喜楼主开贴,橱柜衣柜可以开始看起来啦
,我们马上做周年庆了
橱柜让木工打柜体,我定制柜门。暂时还没想好用什么的、你家什么活动啊?
2017-5-31 14:55
77楼
找工作,就上MY0511!
只看该作者
分享本楼
fcajcl
来自 江苏省
精华 0
注册 2008-6-18
行业 其它
QUOTE:
原帖由
delarge
于 17-5-28 23:48 发表
橱柜那边那么多水管分别是什么啊?
有自来水管,有太阳能管,还有燃气管,还有下水管,反正就是好多管道啦。。
2017-5-31 14:56
78楼
MY0511相亲,一分钟注册,享一辈子幸福!
只看该作者
分享本楼
fcajcl
来自 江苏省
精华 0
注册 2008-6-18
行业 其它
QUOTE:
原帖由
andy891211
于 17-5-28 10:57 发表
如果地面开槽走线效果更棒
这个问题我特意问过了金屋顶的周总。我也感觉开槽好看。周总给我的回复是,他家是弱电开槽,强电走地,说这样比较实用,说如果两个都开槽,交叉的地方要架桥,也是一样的。还不如分开来,一个开槽,一个不开槽。说实话,我也不太懂,这样施工,有问题吗?还请指教。
2017-5-31 14:59
79楼
[联宇电脑] 电脑组装\维修\升级\企业单位电脑维护!
只看该作者
分享本楼
fcajcl
来自 江苏省
精华 0
注册 2008-6-18
行业 其它
很有幸,在装大认识了个装潢达人,在认真拜读她的帖子之后,我真的深刻体会到了。选瓷砖,第一就是你要喜欢这个花色,后来再考虑牌子,价格。这次选砖,我充分的体会到了这个真理。这个几款砖都是我好喜欢好喜欢的啊,
[
本帖最后由 fcajcl 于 17-5-31 15:34 编辑
]
2017-5-31 15:32
80楼
0511家装频道:本地家居服务平台,数万业主共同选择
只看该作者
分享本楼
delarge
来自 江苏省
精华
4
注册 2008-7-25
行业 房产建筑
确实是第一眼看中的往往就是自己最喜欢的
2017-5-31 23:12
81楼
找工作,就上MY0511!
只看该作者
分享本楼
fcajcl
来自 江苏省
精华 0
注册 2008-6-18
行业 其它
水电结束有两天了。前天是安排了水管测压,昨天找了个熟悉水电的朋友来帮我验收水电。
朋友进门看了一圈我家的水电布置,给出了很高的评价。他说这个房子,至少是有三个水电师傅,花了整整四天时间做出来的。工艺要求很高,做的非常好,用镇江话说做的非常的“板直”!说我选了个很靠谱的装潢公司,没有跟我玩花样,实打实做的很好。
在此,谢谢金屋顶,也感谢周总和陈亮,一次次跑我家工地,跟工人师傅们交代注意事项。端午三天假期,陈亮忙的都没有休息,谢谢你们了
[
本帖最后由 fcajcl 于 17-6-1 09:40 编辑
]
2017-6-1 09:39
82楼
0511家装频道:本地家居服务平台,数万业主共同选择
只看该作者
分享本楼
tchf
来自 江苏省
精华 0
注册 2015-9-16
我也是土巴兔登记的,也是推荐了三家,但不是你这三家。。。
---发自梦溪论坛手机客户端---
2017-6-1 16:36
83楼
MY0511相亲,一分钟注册,享一辈子幸福!
只看该作者
分享本楼
法诗雅名门
来自 0
精华 0
注册 2015-12-6
2017-6-1 16:44
84楼
[联宇电脑] 电脑组装\维修\升级\企业单位电脑维护!
只看该作者
分享本楼
fcajcl
来自 江苏省
精华 0
注册 2008-6-18
行业 其它
QUOTE:
原帖由
tchf
于 17-6-1 16:36 发表
我也是土巴兔登记的,也是推荐了三家,但不是你这三家。。。
我在新区,你在哪边,最后就选了个在新区的公司。
2017-6-1 16:56
85楼
[联宇电脑] 电脑组装\维修\升级\企业单位电脑维护!
只看该作者
分享本楼
fcajcl
来自 江苏省
精华 0
注册 2008-6-18
行业 其它
6月1号、、、、水泥黄沙进场啦
下班去新房子看了一下,水泥黄沙已经拖进来了。家里被堆的满满的了。周总说这两天就开始砌墙了。今天还跟封阳台的师傅说了一下,他今天也去装框子了。
[
本帖最后由 fcajcl 于 17-6-2 10:40 编辑
]
2017-6-2 10:38
86楼
找工作,就上MY0511!
只看该作者
分享本楼
fcajcl
来自 江苏省
精华 0
注册 2008-6-18
行业 其它
6月2号。。单位附近有个龙鑫建材,我每天中午都会进去逛,里面虽然不大,但是该有的东西都有了。卖瓷砖的也有好多个商家,有个威尔斯瓷砖的小伙子,跟他聊的很好,人也很实在。他是福建人,刚刚到镇江没两个月,这个店面也是盘下来没多久。我第一次踏入这个威尔斯瓷砖,他在铺砖,美缝,都是他一个人搞定。然后我问他关于瓷砖的所有事情,他都很热情的回答,还说的非常的清楚,很专业,很认真做事的一个小伙子,最后我决定所有的砖都在他家定。
他家的砖,可以免费的出效果图,开业期间也有优惠,大家可以去看看。(最关键的是,价格非常合适哦,
)
[
本帖最后由 fcajcl 于 17-6-2 10:54 编辑
]
2017-6-2 10:45
87楼
MY0511相亲,一分钟注册,享一辈子幸福!
只看该作者
分享本楼
fcajcl
来自 江苏省
精华 0
注册 2008-6-18
行业 其它
周末的时间都用来陪孩子了。根本没时间上网。周六去看了一下,吓我一跳,好热闹啊,砌墙有五个师傅,封阳台有三个师傅。一共有八个人在我家里忙活。
昨天家里墙已经砌好了。下面等着贴砖啦。
[
本帖最后由 fcajcl 于 17-6-5 09:46 编辑
]
2017-6-5 09:20
88楼
0511家装频道:本地家居服务平台,数万业主共同选择
只看该作者
分享本楼
fcajcl
来自 江苏省
精华 0
注册 2008-6-18
行业 其它
6月7号。。。墙已经砌好了。进门之后,感觉没有以前那么大了。还遇到下雨,这两天没什么动静,今天一早送瓷砖过来,等墙再晾几天。就可以贴砖了,威尔斯还送了切砖的齿轮和填缝剂。
[
本帖最后由 fcajcl 于 17-6-7 10:58 编辑
]
2017-6-7 10:54
89楼
0511家装频道:本地家居服务平台,数万业主共同选择
只看该作者
分享本楼
fcajcl
来自 江苏省
精华 0
注册 2008-6-18
行业 其它
我一直想的是,装潢好了之后应该遇到了大伏天,可以让甲醛好好挥发一下。
但是最近听说今年的梅雨季节会比往年要长,我在想啊,这个会影响房子的装潢吗
2017-6-7 11:02
90楼
找工作,就上MY0511!
只看该作者
分享本楼
fcajcl
来自 江苏省
精华 0
注册 2008-6-18
行业 其它
在论坛上看到一段话,突然发现,我居然都做到了。。。
1.首付能少付尽量少付,贷款能多贷尽量多贷。因为房贷是中国金融市场上能找到的利率最低的贷款品种,更重要的是,在房价上涨压力持续高烧不退的情况下,国家必然会持续进行差别化的限贷政策,所以第一次贷款买房一定是最划算的。
2.选择等额本息还款法,而不是等额本金还款法。等额本息比等额本金还的总利息要多,但还款压力小。
3.贷款时间能贷多长就贷多长,最好贷足30年。如果你选择30年还清贷款,现在30岁开始还贷,中途无需提前还贷,到你60岁还清贷款,已接近退休年龄,随着你收入的不断提高,这30年中的还贷压力会逐渐减少,你眼下觉得压力山大,以后就会觉得小菜一碟。
2017-6-7 14:17
91楼
[联宇电脑] 电脑组装\维修\升级\企业单位电脑维护!
只看该作者
分享本楼
zjlkcp
来自 江苏省
精华 0
注册 2014-7-2
行业 房产建筑
QUOTE:
原帖由
fcajcl
于 17-5-31 14:55 发表
橱柜让木工打柜体,我定制柜门。暂时还没想好用什么的、你家什么活动啊?
入驻红星美凯龙3周年店庆,我们准备要拿出多款超高性价比的(原木面板+颗粒/多层柜体套餐做活动哟)你不妨先来店里看看!当然如果木工打柜的话建议找专业的做橱柜衣柜的给你出图纸让木工师傅照着打会好很多!
2017-6-7 14:55
92楼
找工作,就上MY0511!
只看该作者
分享本楼
fcajcl
来自 江苏省
精华 0
注册 2008-6-18
行业 其它
最近两天在看美缝。。。淘粉吧上发现一家有活动,69元的美缝剂,领了超级券之后,只要9块钱还包邮,果断下手啊。但是一个账号只能买一次。就发动了旁边的人,帮我买了几个。打算到货之后先练练。
[
本帖最后由 fcajcl 于 17-6-8 09:56 编辑
]
2017-6-8 09:55
93楼
[联宇电脑] 电脑组装\维修\升级\企业单位电脑维护!
只看该作者
分享本楼
fcajcl
来自 江苏省
精华 0
注册 2008-6-18
行业 其它
超级划算有没有啊
[
本帖最后由 fcajcl 于 17-6-8 09:57 编辑
]
2017-6-8 09:56
94楼
0511家装频道:本地家居服务平台,数万业主共同选择
只看该作者
分享本楼
delarge
来自 江苏省
精华
4
注册 2008-7-25
行业 房产建筑
9块9你买不了上当,9块9你买不了吃亏
2017-6-8 22:02
95楼
MY0511相亲,一分钟注册,享一辈子幸福!
只看该作者
分享本楼
fcajcl
来自 江苏省
精华 0
注册 2008-6-18
行业 其它
QUOTE:
原帖由
delarge
于 17-6-8 22:02 发表
9块9你买不了上当,9块9你买不了吃亏
想再买呢,活动没有了。要原件了
2017-6-9 10:31
96楼
[联宇电脑] 电脑组装\维修\升级\企业单位电脑维护!
只看该作者
分享本楼
fcajcl
来自 江苏省
精华 0
注册 2008-6-18
行业 其它
这两天家里都在等贴砖的师傅的工期,明天应该可以开始贴砖了。想想还挺激动的呢。哈哈
2017-6-9 15:08
97楼
[联宇电脑] 电脑组装\维修\升级\企业单位电脑维护!
只看该作者
分享本楼
fcajcl
来自 江苏省
精华 0
注册 2008-6-18
行业 其它
贴砖开始啦
10号的大雨,超大超大,但是瓷砖师傅并没有因为大雨就没来,早上7点,师傅准时来贴砖啦!!几天没来更新,帖子都去了第三页了。真是竞争好大啊。哈哈
[
本帖最后由 fcajcl 于 17-6-12 15:26 编辑
]
2017-6-12 15:23
98楼
买房、卖房、租房上镇江房产网!
只看该作者
分享本楼
fcajcl
来自 江苏省
精华 0
注册 2008-6-18
行业 其它
我就喜欢这样花花的砖。。再搭配上颜色很深的橱柜,应该很好看的吧
2017-6-12 15:27
99楼
MY0511相亲,一分钟注册,享一辈子幸福!
只看该作者
分享本楼
fcajcl
来自 江苏省
精华 0
注册 2008-6-18
行业 其它
这个瓷砖的倒角,可以看出师傅的工艺很好吧?哈哈,不枉费我等了他一个多星期啊。期待最后的完工
2017-6-12 15:28
100楼
买房、卖房、租房上镇江房产网!
只看该作者
分享本楼
返回家庭装修
166
2/4
<
1
2
3
4
>
快速回复主题
游客
您目前还是游客,请
登录
或
注册
您目前是游客,本帖已被系统设置了自动关闭,不可回复!
文明交流,理性发言
0/5000字
<
>
请在打开的新窗口中支付完成打赏
我已完成支付打赏
支付失败重新支付
其他金额
打赏金额:
元
确定
支付打赏
提 现
打赏人
打赏金额(元)
打赏时间
伊慕装饰
1.00
2017-5-22 12:44
双羽木门专卖
1.00
2017-5-23 11:24
老友记装饰客服
1.00
2017-5-28 15:44
法诗雅名门
1.00
2017-6-1 16:41
Powered by
Discuz! X 2
0.067718 s
清除 Cookies
-
镇江网友之家
-
手机版
论坛导航
关闭
吃喝玩乐
饮食男女
镇江钓友之家
菜菜鸟户外
镇江单车俱乐部
镜头里的镇江
畅游天下
猫狗总动员
视觉Coffeeshop摄影部落
花鸟鱼虫
婚姻.亲子.家庭
家有学子
谈婚论嫁
女性天地
母婴乐园
婚姻生活
梦溪佳缘
装修
家庭装修
装修招标
镇江室内设计师交流
装修商家直通车
你好,镇江!
百姓话题
我要买房
0511爱心家园
市场监管•12315热线
分类信息
生活服务
闲置转让
镇江二手房/镇江租房
镇江招聘求职
教育培训
镇江二手车
商铺厂房写字楼租售
宠物市场
运动健身
卡券交易
电脑维修升级
杂货铺
其他分类信息区
兴趣爱好
HiFi音响江城沙龙
镇江市美术家协会
我爱模型
车友俱乐部
车迷之家
汽车驾培中心
运动俱乐部
镇江市冬泳、铁人三项协会
聚焦足球
镇江羽毛球
镇江乒乓球协会
镇江网球协会
镇江市自行车运动协会
热爱篮球
动力机车
合作栏目
维权热线
天翼时代
色觉影像摄影工作室
站务区
疑问与建议
网络问政
市政府工作部门
垂直管理部门
党群工作部门
其他重点单位
辖市(区)