收藏本站
客户端
扫码下载客户端
官方微信
打开微信扫一扫
登录
|
注册
|
标题
标题
用户
全站首页
|
论坛导航
|
网络问政
|
招聘求职
|
买房租房
|
装修频道
|
生活服务
|
教育
|
相亲
|
亲子
|
美食
|
婚嫁
|
手机客户端
家有学子
|
母婴乐园
快捷导航
精彩推荐:
MY0511客户端下载
中信银行镇江分行
公益体彩 乐善人生
鹏龙鸿蒙
天然石材·人造石
»
梦溪论坛
»
家庭装修
» 瑞滨新苑回迁房的春天-85平米小窝,现代简约-木门安装完毕,今天装地板喽
家庭装修
>
[装修日记]
瑞滨新苑回迁房的春天-85平米小窝,现代简约-木门安装完毕,今天装地板喽
查看: 117792 回复: 389
快速回复
返回家庭装修
390
2/8
<
1
2
3
4
5
6
7
8
>
[装修日记]
瑞滨新苑回迁房的春天-85平米小窝,现代简约-木门安装完毕,今天装地板喽
查看: 117792 回复: 389
上一主题
|
下一主题
打车回家
来自 江苏省
精华 0
注册 2009-2-15
行业 娱乐餐饮
不过,我就是局部小改动,大体不变
别紧张
2017-9-18 13:47
51楼
0511家装频道:本地家居服务平台,数万业主共同选择
只看该作者
分享本楼
打车回家
来自 江苏省
精华 0
注册 2009-2-15
行业 娱乐餐饮
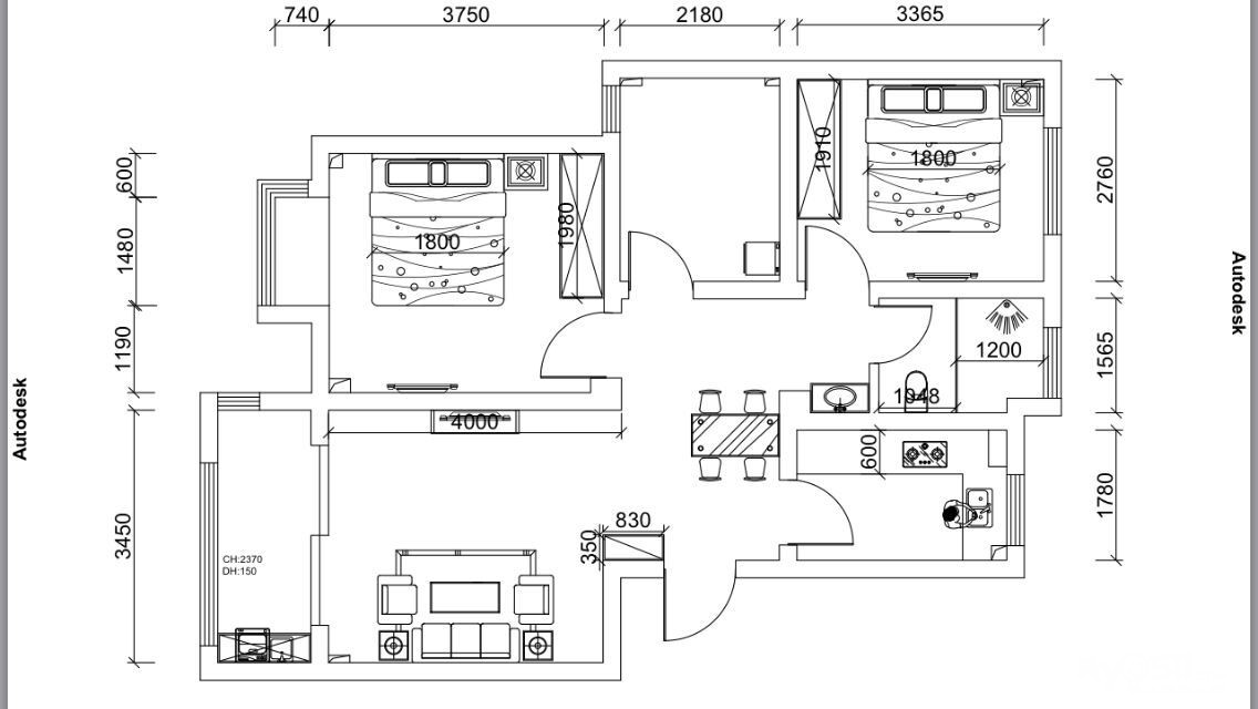
发个家里的户型图给大家看看,老人住的房子,没多大改造的地方
[
本帖最后由 打车回家 于 17-9-18 13:56 编辑
]
2017-9-18 13:55
52楼
买房、卖房、租房上镇江房产网!
只看该作者
分享本楼
打车回家
来自 江苏省
精华 0
注册 2009-2-15
行业 娱乐餐饮
中间的书房,原来准备打个榻榻米和一张电脑桌的,但是考虑到房子不准备常住,没必要摆太多家具,所以,选择“留白”,以后如果有需要了,再说吧。
现在就准备把冰箱先房子书房里面,客厅也留了冰箱的插头
2017-9-18 13:59
53楼
0511家装频道:本地家居服务平台,数万业主共同选择
只看该作者
分享本楼
打车回家
来自 江苏省
精华 0
注册 2009-2-15
行业 娱乐餐饮
因为书房面积较小,之前为如果合理安排家具位置煞费苦心,在网上找了好多图片,装修公司也配合的发了好多图片给我。
目前我是用不上了,改天发上来给其他网友看看,大家借鉴学习一下吧
2017-9-18 14:01
54楼
买房、卖房、租房上镇江房产网!
只看该作者
分享本楼
nnyy
来自 江苏省
精华 0
注册 2006-12-9
行业 商业贸易
顶顶。
2017-9-18 16:49
55楼
MY0511相亲,一分钟注册,享一辈子幸福!
只看该作者
分享本楼
zg60
来自 江苏省
精华 0
注册 2005-9-28
QUOTE:
原帖由
浪里寻花
于 17-7-18 21:41 发表
“那种感觉就像上了手术台了,打了麻药来了,医生让我签字,增加手术费一样的感觉”哈哈----你太会比喻了
2017-9-18 17:03
56楼
0511家装频道:本地家居服务平台,数万业主共同选择
只看该作者
分享本楼
忻越
来自 江苏省
精华
6
注册 2014-12-28
---发自iPhone 6 Plus---
2017-9-18 21:08
57楼
[联宇电脑] 电脑组装\维修\升级\企业单位电脑维护!
只看该作者
分享本楼
打车回家
来自 江苏省
精华 0
注册 2009-2-15
行业 娱乐餐饮
网上找到的,适合书房或小房间的布局设计
午饭后,单位无事,偷空发几张收集的图片给大家参考、欣赏一下
[
本帖最后由 打车回家 于 17-9-19 12:13 编辑
]
2017-9-19 12:11
58楼
买房、卖房、租房上镇江房产网!
只看该作者
分享本楼
打车回家
来自 江苏省
精华 0
注册 2009-2-15
行业 娱乐餐饮
最喜欢这个,很符合我家的要求
下面再上些干湿分离,干区的图片
[
本帖最后由 打车回家 于 17-9-19 12:17 编辑
]
2017-9-19 12:15
59楼
买房、卖房、租房上镇江房产网!
只看该作者
分享本楼
打车回家
来自 江苏省
精华 0
注册 2009-2-15
行业 娱乐餐饮
[attach]22849636[/attach]
再来些厨房的
[
本帖最后由 打车回家 于 17-9-19 12:19 编辑
]
2017-9-19 12:18
60楼
[联宇电脑] 电脑组装\维修\升级\企业单位电脑维护!
只看该作者
分享本楼
打车回家
来自 江苏省
精华 0
注册 2009-2-15
行业 娱乐餐饮
看了很多,就喜欢这个调调的
最后来张朵漫世家提供的淋浴房的图片,我很喜欢这个玻璃隔板,可以省略三角篮了,超实用
[
本帖最后由 打车回家 于 17-9-19 12:30 编辑
]
2017-9-19 12:20
61楼
买房、卖房、租房上镇江房产网!
只看该作者
分享本楼
打车回家
来自 江苏省
精华 0
注册 2009-2-15
行业 娱乐餐饮
设计师把720度全景设计发给我了,瓷砖是我喜欢的颜色,设计也是按照我的要求做的,可以上下、前后、左右,720度的移动看效果图
,感觉挺不错的,客厅、餐厅、3个房间和厨房、卫生间都有,简直完美。哪儿都可以看到装修好的效果,而且再也不用只看电视背景墙和餐桌两个图纸了。老表介绍的装修公司果然
,靠谱
现在研究一下怎么弄成网址发到帖子里给大家看看
2017-9-19 12:36
62楼
0511家装频道:本地家居服务平台,数万业主共同选择
只看该作者
分享本楼
打车回家
来自 江苏省
精华 0
注册 2009-2-15
行业 娱乐餐饮
装修公司的作用是什么?
就是花同样的钱,交给装修公司做,能做出比我们自己装要好的效果。
2017-9-19 12:37
63楼
找工作,就上MY0511!
只看该作者
分享本楼
打车回家
来自 江苏省
精华 0
注册 2009-2-15
行业 娱乐餐饮
刚刚同事说,瓦工进门好像就需要买地漏了
地漏买什么牌子的好呢?不要太贵,实用就行
2017-9-20 12:51
64楼
MY0511相亲,一分钟注册,享一辈子幸福!
只看该作者
分享本楼
打车回家
来自 江苏省
精华 0
注册 2009-2-15
行业 娱乐餐饮
刚刚收到金象木门的短信,抱歉啊,我家木门已经定好了,你来迟了
2017-9-20 13:44
65楼
找工作,就上MY0511!
只看该作者
分享本楼
打车回家
来自 江苏省
精华 0
注册 2009-2-15
行业 娱乐餐饮
虽然开工日期在下周一,不过经过长期在0511上的潜水学习+即将装修的兴奋心情,家里有些材料已经提前看了,定了。
不过,地板,吊顶,地漏,水槽,马桶,墙纸,移门等未定,因为还没看呢
2017-9-20 13:47
66楼
买房、卖房、租房上镇江房产网!
只看该作者
分享本楼
打车回家
来自 江苏省
精华 0
注册 2009-2-15
行业 娱乐餐饮
上次在聚划算看了欧琳的碗篮,今天聚划算又看到了悍高的碗篮,好心动,手痒难耐
可是家里木工尚未进门,不知道该买多大,只能一直按耐不动
不知道等需要的时候,还有没有活动了
[
本帖最后由 打车回家 于 17-9-20 14:42 编辑
]
2017-9-20 13:49
67楼
[联宇电脑] 电脑组装\维修\升级\企业单位电脑维护!
只看该作者
分享本楼
打车回家
来自 江苏省
精华 0
注册 2009-2-15
行业 娱乐餐饮
装修日记,其实就是给自己记录自己装修历程,心理过程,发发牢骚的
无所谓大家回不回复
当然,大家能回复最好,给支招的,就更棒了
2017-9-20 13:51
68楼
[联宇电脑] 电脑组装\维修\升级\企业单位电脑维护!
只看该作者
分享本楼
打车回家
来自 江苏省
精华 0
注册 2009-2-15
行业 娱乐餐饮
又看到潜水艇的地漏有团购了,有人说这个地漏只有水量多的时候才好用,水少,压力不够的时候,一点点水根本就下不去。
也不知道真的假的,哪位用过的大神能过来评价一下,给个建议呢
2017-9-20 15:12
69楼
[联宇电脑] 电脑组装\维修\升级\企业单位电脑维护!
只看该作者
分享本楼
delarge
来自 江苏省
精华
4
注册 2008-7-25
行业 房产建筑
貌似周围还没人说潜水艇地漏不好的
2017-9-20 22:41
70楼
MY0511相亲,一分钟注册,享一辈子幸福!
只看该作者
分享本楼
ZYFZYF
来自 江苏省
精华 0
注册 2006-3-13
行业 其它
潜水艇 徐了贵没别的问题。好贵好贵 好的就贵
2017-9-21 07:57
71楼
买房、卖房、租房上镇江房产网!
只看该作者
分享本楼
打车回家
来自 江苏省
精华 0
注册 2009-2-15
行业 娱乐餐饮
QUOTE:
原帖由
ZYFZYF
于 17-9-21 07:57 发表
潜水艇 徐了贵没别的问题。好贵好贵 好的就贵
哈哈,记得某部电影里有句经典台词“不选最好,只选最贵”
2017-9-21 10:03
72楼
[联宇电脑] 电脑组装\维修\升级\企业单位电脑维护!
只看该作者
分享本楼
打车回家
来自 江苏省
精华 0
注册 2009-2-15
行业 娱乐餐饮
我还是选个最实惠的吧
2017-9-21 10:05
73楼
找工作,就上MY0511!
只看该作者
分享本楼
打车回家
来自 江苏省
精华 0
注册 2009-2-15
行业 娱乐餐饮
准备了那么久,今天终于开工了
选在早上的9:18,寓意“就要发”
摆上准备好的六样“供品”,讨个好的口彩,好兆头:1、6瓶百事可乐-百事可乐,万事OK;2、2条糕-步步高升;3、2包红双喜香烟-双喜临门;4、6个蜜桔-交好运;5、4个苹果摆放客厅四角-四平八稳;6、2个火龙果-日子红红火火
2017-9-25 15:29
74楼
0511家装频道:本地家居服务平台,数万业主共同选择
只看该作者
分享本楼
打车回家
来自 江苏省
精华 0
注册 2009-2-15
行业 娱乐餐饮
9:18,准时点鞭炮-----------开工大吉
2017-9-25 15:30
75楼
[联宇电脑] 电脑组装\维修\升级\企业单位电脑维护!
只看该作者
分享本楼
打车回家
来自 江苏省
精华 0
注册 2009-2-15
行业 娱乐餐饮
今天光线暗,手机没拍好,就不上开工照了
2017-9-25 15:39
76楼
买房、卖房、租房上镇江房产网!
只看该作者
分享本楼
打车回家
来自 江苏省
精华 0
注册 2009-2-15
行业 娱乐餐饮
今天装修公司还是比较负责任的,来了好几个工作人员帮着张罗,开工结束,画线路图,还一一跟我父母说明,还问我们还有什么地方觉得需要更改的吗?
真的很认真,也尊重我们的意见,赞一个
不过听装修公司的人说,也有些客户挺奇葩的,毕竟林子大了什么鸟都有吗
听说有个路***小区的业主,要求一个房间装17个插座,挺不可思议的。
“天呐,你们家是马蜂窝吗”
这么多插座,他家房间里面放多少电器啊!真不可思议
[
本帖最后由 打车回家 于 17-9-25 15:46 编辑
]
2017-9-25 15:46
77楼
找工作,就上MY0511!
只看该作者
分享本楼
delarge
来自 江苏省
精华
4
注册 2008-7-25
行业 房产建筑
恭喜开工
2017-9-26 01:46
78楼
买房、卖房、租房上镇江房产网!
只看该作者
分享本楼
打车回家
来自 江苏省
精华 0
注册 2009-2-15
行业 娱乐餐饮
QUOTE:
原帖由
delarge
于 17-9-26 01:46 发表
恭喜开工
谢谢
2017-9-26 12:55
79楼
0511家装频道:本地家居服务平台,数万业主共同选择
只看该作者
分享本楼
打车回家
来自 江苏省
精华 0
注册 2009-2-15
行业 娱乐餐饮
[co ... [/quote]
让他赔啊,你们不是有合同吗?上面哪些有,哪些没有不是都写得清清楚楚的吗
[
本帖最后由 my0511菲雪 于 17-10-26 13:29 编辑
]
2017-9-26 12:56
80楼
MY0511相亲,一分钟注册,享一辈子幸福!
只看该作者
分享本楼
打车回家
来自 江苏省
精华 0
注册 2009-2-15
行业 娱乐餐饮
这两天的天气真是让人一言难尽
2017-9-27 12:23
81楼
找工作,就上MY0511!
只看该作者
分享本楼
打车回家
来自 江苏省
精华 0
注册 2009-2-15
行业 娱乐餐饮
好久没来,都沉下去了,自己的帖子,自己救
2017-10-9 12:11
82楼
0511家装频道:本地家居服务平台,数万业主共同选择
只看该作者
分享本楼
打车回家
来自 江苏省
精华 0
注册 2009-2-15
行业 娱乐餐饮
开工大吉
补张开工照
天气不好,手机一般,大家将就看看
[
本帖最后由 打车回家 于 17-10-9 12:15 编辑
]
2017-10-9 12:14
83楼
找工作,就上MY0511!
只看该作者
分享本楼
打车回家
来自 江苏省
精华 0
注册 2009-2-15
行业 娱乐餐饮
车库水电图
车库自来水改接管道
国庆节期间水电做好了,师傅手艺不错,我6号中午直接过去拍的,师傅不知道
废话不说,直接上图
这两张是车库里面的水电图
[
本帖最后由 打车回家 于 17-10-9 12:20 编辑
]
2017-10-9 12:18
84楼
找工作,就上MY0511!
只看该作者
分享本楼
打车回家
来自 江苏省
精华 0
注册 2009-2-15
行业 娱乐餐饮
厨房水电图,水槽下方有两个阀(燃气热水器和太阳能的)
[
本帖最后由 打车回家 于 17-10-9 12:32 编辑
]
2017-10-9 12:29
85楼
0511家装频道:本地家居服务平台,数万业主共同选择
只看该作者
分享本楼
打车回家
来自 江苏省
精华 0
注册 2009-2-15
行业 娱乐餐饮
阳台下水改造
[
本帖最后由 打车回家 于 17-10-9 12:33 编辑
]
2017-10-9 12:32
86楼
MY0511相亲,一分钟注册,享一辈子幸福!
只看该作者
分享本楼
打车回家
来自 江苏省
精华 0
注册 2009-2-15
行业 娱乐餐饮
改造之后,淋浴区大了好多
卫生间做了干湿分离,原来马桶蹲坑的位置做了改造
上图
[
本帖最后由 打车回家 于 17-10-9 12:35 编辑
]
2017-10-9 12:34
87楼
[联宇电脑] 电脑组装\维修\升级\企业单位电脑维护!
只看该作者
分享本楼
打车回家
来自 江苏省
精华 0
注册 2009-2-15
行业 娱乐餐饮
房间里面也有改的地方,上两张看看吧,好多图都删了
我们家房间里面顶灯都是三控的,就是一进门一个开关,床两边都可以开关。这样就算家人睡觉了,我也可以不用下床跑去门口,或者翻到他那边去关了-------方便
[
本帖最后由 打车回家 于 17-10-9 12:49 编辑
]
2017-10-9 12:36
88楼
0511家装频道:本地家居服务平台,数万业主共同选择
只看该作者
分享本楼
打车回家
来自 江苏省
精华 0
注册 2009-2-15
行业 娱乐餐饮
看的这个样品,就定的这款
橱柜把手也是同款
门板颜色比我家设计图稍深,耐脏
国庆假期就定了一个橱柜,6号上午去金桥那边等人,顺便就逛了一下精品厅,看中了有格橱柜的一款橱柜,进去看了看,觉得价位适合,就直接定了。有两种颗粒板和实木多层的,价格相差不大,就定实木多层的吧
不说了,上图
颜色选的就是这个颜色,比之前朵漫世家给我出的装修720图里面橱柜颜色略深,不过这个颜色更适合老人,而且耐脏
[
本帖最后由 打车回家 于 17-10-9 12:45 编辑
]
2017-10-9 12:40
89楼
MY0511相亲,一分钟注册,享一辈子幸福!
只看该作者
分享本楼
打车回家
来自 江苏省
精华 0
注册 2009-2-15
行业 娱乐餐饮
装修公司还没通知我什么时候测试水压呢
坐等................
今天长假第一天上班,好多事情需要处理,搞了半天的卫生,11点到现在做账,做的头昏脑涨
一会儿出去走走
2017-10-9 13:22
90楼
[联宇电脑] 电脑组装\维修\升级\企业单位电脑维护!
只看该作者
分享本楼
打车回家
来自 江苏省
精华 0
注册 2009-2-15
行业 娱乐餐饮
说实话,真是计划赶不上变化
之前橱柜想着省钱,自己打,自己打。后来想想,相差不大,专业的和不专业的,做出来的东西还是有些区别的。家里人也商量了一下,大家都支持定做。
一旦决定下来,就快了。看中了直接定
哪考虑那么多啊
2017-10-9 13:30
91楼
[联宇电脑] 电脑组装\维修\升级\企业单位电脑维护!
只看该作者
分享本楼
打车回家
来自 江苏省
精华 0
注册 2009-2-15
行业 娱乐餐饮
今天孩子们出去军训了,老师刚刚在群里发了几张军训照片,发上来玩玩
[
本帖最后由 打车回家 于 17-10-9 13:38 编辑
]
2017-10-9 13:33
92楼
买房、卖房、租房上镇江房产网!
只看该作者
分享本楼
打车回家
来自 江苏省
精华 0
注册 2009-2-15
行业 娱乐餐饮
现在的孩子们哦,比我们那时候条件好太多了
我们以前军训都是在学校里面练,现在都是去世业洲了
2017-10-9 13:39
93楼
[联宇电脑] 电脑组装\维修\升级\企业单位电脑维护!
只看该作者
分享本楼
灰衣女孩
来自 江苏省
精华 0
注册 2006-7-31
行业 轻工化工
现在条件好了,孩子们也与时俱进了
2017-10-9 14:15
94楼
MY0511相亲,一分钟注册,享一辈子幸福!
只看该作者
分享本楼
delarge
来自 江苏省
精华
4
注册 2008-7-25
行业 房产建筑
我是丹阳的,我们以前高中军训都是到陵口镇的一个专门学校去军训的,全封闭式的,吃饭都是站着吃,没有板凳,洗澡也是排队进去,好像就十几分钟时间
2017-10-10 00:16
95楼
MY0511相亲,一分钟注册,享一辈子幸福!
只看该作者
分享本楼
打车回家
来自 江苏省
精华 0
注册 2009-2-15
行业 娱乐餐饮
QUOTE:
原帖由
delarge
于 17-10-10 00:16 发表
我是丹阳的,我们以前高中军训都是到陵口镇的一个专门学校去军训的,全封闭式的,吃饭都是站着吃,没有板凳,洗澡也是排队进去,好像就十几分钟时间
2017-10-10 10:31
96楼
MY0511相亲,一分钟注册,享一辈子幸福!
只看该作者
分享本楼
打车回家
来自 江苏省
精华 0
注册 2009-2-15
行业 娱乐餐饮
最近下雨,发现车库墙角印水,通知物业安排人来修理。
家里现在瓦工快要进门了,现在只能等物业弄好了,才能开工
2017-10-11 12:51
97楼
[联宇电脑] 电脑组装\维修\升级\企业单位电脑维护!
只看该作者
分享本楼
打车回家
来自 江苏省
精华 0
注册 2009-2-15
行业 娱乐餐饮
车库里面准备做防水,贴瓷砖,打吊柜,而且还安排了冰柜的位置,防水一定要做做好的,要不然以后真麻烦
2017-10-11 12:52
98楼
找工作,就上MY0511!
只看该作者
分享本楼
delarge
来自 江苏省
精华
4
注册 2008-7-25
行业 房产建筑
车库里面放冰柜?
2017-10-11 22:41
99楼
MY0511相亲,一分钟注册,享一辈子幸福!
只看该作者
分享本楼
打车回家
来自 江苏省
精华 0
注册 2009-2-15
行业 娱乐餐饮
QUOTE:
原帖由
delarge
于 17-10-11 22:41 发表
车库里面放冰柜?
是啊!因为房子不大,所以家里准备放一个普通的上下门的冰箱,冬天过年东西多,车库里面准备一个冰柜,可以储存好多呢
2017-10-12 10:00
100楼
[联宇电脑] 电脑组装\维修\升级\企业单位电脑维护!
只看该作者
分享本楼
返回家庭装修
390
2/8
<
1
2
3
4
5
6
7
8
>
快速回复主题
游客
您目前还是游客,请
登录
或
注册
您目前是游客,本帖已被系统设置了自动关闭,不可回复!
文明交流,理性发言
0/5000字
<
>
请在打开的新窗口中支付完成打赏
我已完成支付打赏
支付失败重新支付
其他金额
打赏金额:
元
确定
支付打赏
提 现
打赏人
打赏金额(元)
打赏时间
老友记装饰客服
1.00
2017-7-20 09:05
双羽木门专卖
1.00
2017-7-20 18:16
Powered by
Discuz! X 2
0.093267 s
清除 Cookies
-
镇江网友之家
-
手机版
论坛导航
关闭
吃喝玩乐
饮食男女
镇江钓友之家
菜菜鸟户外
镇江单车俱乐部
镜头里的镇江
畅游天下
猫狗总动员
视觉Coffeeshop摄影部落
花鸟鱼虫
婚姻.亲子.家庭
家有学子
谈婚论嫁
女性天地
母婴乐园
婚姻生活
梦溪佳缘
装修
家庭装修
装修招标
镇江室内设计师交流
装修商家直通车
你好,镇江!
百姓话题
我要买房
0511爱心家园
市场监管•12315热线
分类信息
生活服务
闲置转让
镇江二手房/镇江租房
镇江招聘求职
教育培训
镇江二手车
商铺厂房写字楼租售
宠物市场
运动健身
卡券交易
电脑维修升级
杂货铺
其他分类信息区
兴趣爱好
HiFi音响江城沙龙
镇江市美术家协会
我爱模型
车友俱乐部
车迷之家
汽车驾培中心
运动俱乐部
镇江市冬泳、铁人三项协会
聚焦足球
镇江羽毛球
镇江乒乓球协会
镇江网球协会
镇江市自行车运动协会
热爱篮球
动力机车
合作栏目
维权热线
天翼时代
色觉影像摄影工作室
站务区
疑问与建议
网络问政
市政府工作部门
垂直管理部门
党群工作部门
其他重点单位
辖市(区)