收藏本站
客户端
扫码下载客户端
官方微信
打开微信扫一扫
登录
|
注册
|
标题
标题
用户
全站首页
|
论坛导航
|
网络问政
|
招聘求职
|
买房租房
|
装修频道
|
生活服务
|
教育
|
相亲
|
亲子
|
美食
|
婚嫁
|
手机客户端
家有学子
|
母婴乐园
快捷导航
精彩推荐:
MY0511客户端下载
中信银行镇江分行
公益体彩 乐善人生
鹏龙鸿蒙
天然石材·人造石
»
梦溪论坛
»
家庭装修
» 家装毕业照幸福拍拍秀第九十一集:《花香流韵》
家庭装修
>
[官方活动]
家装毕业照幸福拍拍秀第九十一集:《花香流韵》
查看: 45956 回复: 22
快速回复
返回家庭装修
[官方活动]
家装毕业照幸福拍拍秀第九十一集:《花香流韵》
查看: 45956 回复: 22
上一主题
|
下一主题
my0511菲雪
版主
来自 江苏省
精华
6
注册 2013-5-21
行业 IT 通信
家装毕业照幸福拍拍秀第九十一集:《花香流韵》
【家装毕业照幸福拍拍秀】旨在与网友们共同分享你的毕业完工照,我们的口号是:你的幸福空间,我们帮你拍照留念!还希望大家多多支持哦
~~
第九十一集,我们来到网友余蓝的家里
《
花香流韵
》
摄影编辑:my0511小Z
【小区名称】:
江山名洲
【套内面积】:99平(另赠送8平方)
【房 型】:两室半一厅一厨一卫
【装修风格】:混搭
【包工方式】:半包
【装修总费用】:全包价17.5W,目前包含软装家电家具等一起30W左右
[
本帖最后由 my0511菲雪 于 17-11-21 17:20 编辑
]
已有
0
人打赏
2017-11-16 14:56
1楼
找工作,就上MY0511!
只看该作者
分享本楼
my0511菲雪
版主
来自 江苏省
精华
6
注册 2013-5-21
行业 IT 通信
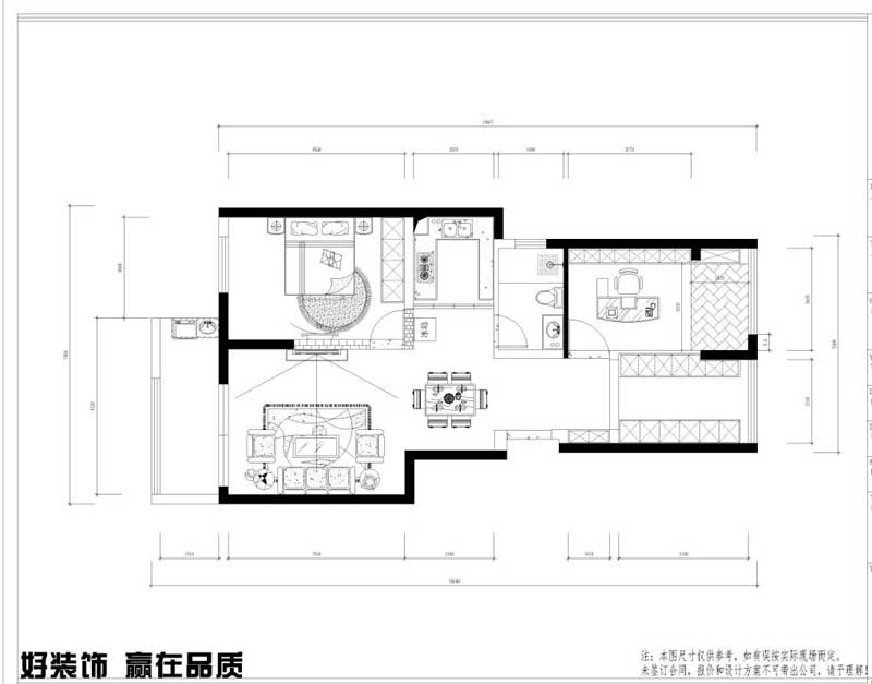
户型图
写在前面的话:
现在资讯非常发达,各种文化和审美都在冲击着我们,
女主喜欢杂揉一点的风格,没有做太纯粹的东西。
没有纯粹的世界,也没有纯粹的人。
简单说呢,因为每个人的接受程度都不一样,在意的点也不一样,
甲之砒霜,乙之蜜糖,好坏取舍,君自度量。
[
本帖最后由 my0511菲雪 于 17-11-21 16:12 编辑
]
2017-11-16 14:57
2楼
[联宇电脑] 电脑组装\维修\升级\企业单位电脑维护!
只看该作者
分享本楼
my0511菲雪
版主
来自 江苏省
精华
6
注册 2013-5-21
行业 IT 通信
客厅餐厅
客厅背景墙以现代流线型艺术装置作为装饰,基本以素色为主,
四方形吊顶区分客厅与餐厅的区域,简答的墙纸背景墙搭配实木边框,
而有一边则是巧妙的运用了隐形门,作为即是背景墙又是房门的设计。
皮质的沙发加上古色古香的抱枕,一幅出自书法协会书法家之手的美图,
展现出现代风格与东方审美的交融。
沙发旁边落地灯与边桌为一体,昏黄的灯光朦胧的中式感觉,
客厅的软装部分以简约中式风格为主,彰显一种生活的包容性。
创意现代的茶几,颇有人文情怀的餐桌餐椅,再配上中国意象的抽象画,各式木雕制品,
在软装师的精妙搭配下,稳稳地在现代主义的空间里表现出最东方的味道,
元素之间和谐统一,不浮不躁,安之若素。
不难发现,整体空间从材质、色彩和细节来成就品质。在石材、木材、布艺等主材料使用中,
空间整体上保持一种舒适、流畅的感觉。
在沉稳素雅的调调中加入青黄色的点缀,打破空间的沉闷,
并把这种青黄色的点缀贯穿始终,
让雅致的空间得到了升华。
整个客餐厅空间用色统一且中性色彩特别强调,简单素雅。
整体设计上采用中式现代风格相结合的手法,硬装部分以现代为主穿插些许中式的造型元素,
通过柔和的色彩把他们和谐地糅合在一起。
餐桌旁悬挂的现代艺术画作,表达城市与山之间的亲密关系。
[
本帖最后由 my0511菲雪 于 17-11-21 15:58 编辑
]
2017-11-16 14:59
3楼
MY0511相亲,一分钟注册,享一辈子幸福!
只看该作者
分享本楼
my0511菲雪
版主
来自 江苏省
精华
6
注册 2013-5-21
行业 IT 通信
厨房书房
厨房一如既往的简约、简单的风格。
在空间上,去除过多繁复的设计,也同样没有很多的装饰,
所有的设计都以实用为主,也着重凸显出材料的质感。
书房也是多功能房,以稳重的棕色为主,免去繁琐多余的装饰细节,
仅以少量跳跃的淡黄色地板作为点缀,
也通过书房旁的塌塌米,表达含蓄而生动的东方文化意境。
夹杂在书香中而来的是淡淡的清香,浅疏斜影中,透露出主人怡然自得的心境。
细腻的线条藏于细节之中,布艺加白纱夹带一丝神秘感,东方韵味无限弥散。
衣帽间卧室
衣帽间为半开放式,
把空间不刻意地分隔为两个相对独立的空间,
又保证了光线的引入,室内空间与光影的结合让人感觉温馨且惬意。
主卧室和整体风格统一,床头上两盏白色的壁灯及乳白色床品的运用提亮了空间,
棕色的整体衣柜更适用于业主卧室的收纳。
卫生间
卫生间因为受空间限制,没有做干湿分离,简单的浴室柜,
没有过多复杂的修饰,让原本不大的卫生间变的轻松了许多,
墙面和地面统一的米白色瓷砖的铺贴,使卫浴空间显的清爽整洁。
家是一铺床,一张沙发,一盏灯;
家是一个布偶,一张照片,一个水杯;
家是空间格局的安排,光影气氛的调协;
家是人和人的关系,
家是身体的归宿精神的寄托
......
说到底,家是心之所安----------欧阳应霁
OVER
~
[
本帖最后由 my0511菲雪 于 17-11-21 16:27 编辑
]
2017-11-16 15:02
4楼
找工作,就上MY0511!
只看该作者
分享本楼
my0511菲雪
版主
来自 江苏省
精华
6
注册 2013-5-21
行业 IT 通信
小编的言外话:
不是每张毕业照小编们拍的都华丽丽
我们都懂装修里难免有遗憾 别人家的也请不要强求完美
何况每个人的审美也都不一样的
没有人说要完全按照别人家的装
所以请回帖的童鞋们不要挑刺 尊重别人的劳动成果 谢谢
如果你写了装修日记 想给装修之旅留个纪念
或者你觉得你家亮点多多 有很多装修经验想跟大家分享
欢迎你联系小编 提前预约(QQ: 776280275
775967213
敲门暗号:想拍毕业照)
小编会竭力帮助你的
现在加小编微信号也可以预约哦
装修答疑,建材砍价
扫一扫下方的二维码,加家装小编微信号
微信号:My0511菲雪
2017-11-21 16:16
5楼
MY0511相亲,一分钟注册,享一辈子幸福!
只看该作者
分享本楼
浮生烟雨
来自 上海
精华 0
注册 2014-8-29
突然发现我和楼主家家具选的一个牌子,都是YZ的柚木,同住江山名洲
2017-11-22 09:38
6楼
找工作,就上MY0511!
只看该作者
分享本楼
amy_pan555
来自 江苏省
精华 0
注册 2006-12-21
行业 其它
餐桌柚尊的和我家一样
2017-11-22 13:11
7楼
MY0511相亲,一分钟注册,享一辈子幸福!
只看该作者
分享本楼
暂时躲清静
来自 江苏省
精华 0
注册 2013-5-4
行业 其它
邻居
2017-11-22 13:53
8楼
[联宇电脑] 电脑组装\维修\升级\企业单位电脑维护!
只看该作者
分享本楼
ZML6666
禁止发言
来自 江苏省
精华 0
注册 2008-5-24
行业 工业制造
*** 作者因违反论坛规定,禁言处理,内容自动屏蔽 ***
详情参阅论坛注册条款:
http://bbs.my0511.com/f11b-t2789156z
2017-11-22 15:11
9楼
MY0511相亲,一分钟注册,享一辈子幸福!
只看该作者
分享本楼
舒雅装饰SYZS
家装认证商户
来自 江苏省
精华
3
注册 2010-8-24
行业 房产建筑
QUOTE:
原帖由
amy_pan555
于 17-11-22 13:11 发表
餐桌柚尊的和我家一样
是的
,他家的家具还是不错的,售后也很好
2017-11-22 16:41
10楼
0511家装频道:本地家居服务平台,数万业主共同选择
只看该作者
分享本楼
圣麒麟
来自 江苏省
精华 0
注册 2005-8-24
高大上,赞一个。请问挂牡丹的墙是何材料。另请教厨柜是哪儿订的还是木工打然后定制的门?
2017-11-22 21:11
11楼
0511家装频道:本地家居服务平台,数万业主共同选择
只看该作者
分享本楼
舒雅装饰SYZS
家装认证商户
来自 江苏省
精华
3
注册 2010-8-24
行业 房产建筑
牡丹挂画墙面是硬包材质的,厨柜是我们公司工厂订制的
---发自iPhone 6S Plus---
2017-11-22 22:31
12楼
0511家装频道:本地家居服务平台,数万业主共同选择
只看该作者
分享本楼
megane
来自 江苏省
精华 0
注册 2012-2-7
行业 学生
客厅那个是空气净化器还是加湿器,什么牌子的
2017-11-23 08:02
13楼
0511家装频道:本地家居服务平台,数万业主共同选择
只看该作者
分享本楼
舒雅装饰SYZS
家装认证商户
来自 江苏省
精华
3
注册 2010-8-24
行业 房产建筑
QUOTE:
原帖由
megane
于 17-11-23 08:02 发表
客厅那个是空气净化器还是加湿器,什么牌子的
飞利浦空气净化器
---发自iPhone 6S Plus---
2017-11-23 13:40
14楼
0511家装频道:本地家居服务平台,数万业主共同选择
只看该作者
分享本楼
chencg123
来自 江苏省
精华
1
注册 2014-1-17
行业 其它
能告公司名称吗,或联系方法
2017-11-23 16:50
15楼
[联宇电脑] 电脑组装\维修\升级\企业单位电脑维护!
只看该作者
分享本楼
舒雅装饰SYZS
家装认证商户
来自 江苏省
精华
3
注册 2010-8-24
行业 房产建筑
QUOTE:
原帖由
chencg123
于 17-11-23 16:50 发表
能告公司名称吗,或联系方法
镇江舒雅装饰有限公司 电话:13094970877王
---发自iPhone 6S Plus---
2017-11-24 07:07
16楼
买房、卖房、租房上镇江房产网!
只看该作者
分享本楼
北欧的乔治家具
来自 江苏省
精华 0
注册 2017-11-28
行业 商业贸易
2017-11-28 15:07
17楼
[联宇电脑] 电脑组装\维修\升级\企业单位电脑维护!
只看该作者
分享本楼
悠然见金山
来自 江苏省
精华 0
注册 2008-12-5
行业 医疗卫生
很好看,是我喜欢的那种
---发自荣耀6---
2017-11-30 12:48
18楼
0511家装频道:本地家居服务平台,数万业主共同选择
只看该作者
分享本楼
亚琼
来自 江苏省
精华
4
注册 2007-7-16
行业 其它
很上档次,虽然面积不大,感觉每样东西质感都很好!
2018-1-2 15:11
19楼
买房、卖房、租房上镇江房产网!
只看该作者
分享本楼
小村庄
来自 江苏省
精华 0
注册 2018-1-15
请问楼主餐桌是什么木的,什么价,告诉我下,谢谢
2018-9-14 15:17
20楼
找工作,就上MY0511!
只看该作者
分享本楼
舒雅装饰SYZS
家装认证商户
来自 江苏省
精华
3
注册 2010-8-24
行业 房产建筑
QUOTE:
原帖由
小村庄
于 2018-9-14 15:17 发表
请问楼主餐桌是什么木的,什么价,告诉我下,谢谢
柚木 价格1.3万(包4把椅子 2个圆凳 )
---发自iPhone 6S Plus---
2018-9-14 20:14
21楼
MY0511相亲,一分钟注册,享一辈子幸福!
只看该作者
分享本楼
笑看沧海
来自 江苏省
精华 0
注册 2004-12-30
请问楼主你说的全包17万包括哪几个方面?家具是装潢之后定制的吗?还有就是这个设计是自己的想法还是设计师的建议?问题有点多,万分感谢!
2018-10-12 16:09
22楼
0511家装频道:本地家居服务平台,数万业主共同选择
只看该作者
分享本楼
舒雅装饰SYZS
家装认证商户
来自 江苏省
精华
3
注册 2010-8-24
行业 房产建筑
QUOTE:
原帖由
笑看沧海
于 2018-10-12 16:09 发表
请问楼主你说的全包17万包括哪几个方面?家具是装潢之后定制的吗?还有就是这个设计是自己的想法还是设计师的建议?问题有点多,万分感谢!
好久没有关注了,17万包含柜子十所以主材(不含洁具 灯具 家电 家具 窗帘)
---发自iPhone 6S Plus---
2018-11-9 14:08
23楼
MY0511相亲,一分钟注册,享一辈子幸福!
只看该作者
分享本楼
返回家庭装修
快速回复主题
游客
您目前还是游客,请
登录
或
注册
您目前是游客,本帖已被系统设置了自动关闭,不可回复!
文明交流,理性发言
0/5000字
<
>
请在打开的新窗口中支付完成打赏
我已完成支付打赏
支付失败重新支付
其他金额
打赏金额:
元
确定
支付打赏
提 现
打赏人
打赏金额(元)
打赏时间
Powered by
Discuz! X 2
0.082898 s
清除 Cookies
-
镇江网友之家
-
手机版
论坛导航
关闭
吃喝玩乐
饮食男女
镇江钓友之家
菜菜鸟户外
镇江单车俱乐部
镜头里的镇江
畅游天下
猫狗总动员
视觉Coffeeshop摄影部落
花鸟鱼虫
婚姻.亲子.家庭
家有学子
谈婚论嫁
女性天地
母婴乐园
婚姻生活
梦溪佳缘
装修
家庭装修
装修招标
镇江室内设计师交流
装修商家直通车
你好,镇江!
百姓话题
我要买房
0511爱心家园
市场监管•12315热线
分类信息
生活服务
闲置转让
镇江二手房/镇江租房
镇江招聘求职
教育培训
镇江二手车
商铺厂房写字楼租售
宠物市场
运动健身
卡券交易
电脑维修升级
杂货铺
其他分类信息区
兴趣爱好
HiFi音响江城沙龙
镇江市美术家协会
我爱模型
车友俱乐部
车迷之家
汽车驾培中心
运动俱乐部
镇江市冬泳、铁人三项协会
聚焦足球
镇江羽毛球
镇江乒乓球协会
镇江网球协会
镇江市自行车运动协会
热爱篮球
动力机车
合作栏目
维权热线
天翼时代
色觉影像摄影工作室
站务区
疑问与建议
网络问政
市政府工作部门
垂直管理部门
党群工作部门
其他重点单位
辖市(区)