收藏本站
客户端
扫码下载客户端
官方微信
打开微信扫一扫
登录
|
注册
|
标题
标题
用户
全站首页
|
论坛导航
|
网络问政
|
招聘求职
|
买房租房
|
装修频道
|
生活服务
|
教育
|
相亲
|
亲子
|
美食
|
婚嫁
|
手机客户端
家有学子
|
母婴乐园
快捷导航
精彩推荐:
MY0511客户端下载
中信银行镇江分行
公益体彩 乐善人生
鹏龙鸿蒙
天然石材·人造石
»
梦溪论坛
»
家庭装修
» 一百天:从毛坯房到温馨小家的蜕变,装修实录,持续更新
家庭装修
>
[装修日记]
一百天:从毛坯房到温馨小家的蜕变,装修实录,持续更新
查看: 152422 回复: 253
快速回复
返回家庭装修
254
5/6
<
1
2
3
4
5
6
>
[装修日记]
一百天:从毛坯房到温馨小家的蜕变,装修实录,持续更新
查看: 152422 回复: 253
上一主题
|
下一主题
missClover
来自 江苏省
精华 0
注册 2020-6-19
今天对两个房间做了找平,本来是准备打地板楞装木地板的,后来咨询了专业人士还是推荐那种不打地板楞的地板
,油漆也开始批墙面和顶上面的腻子了
---发自梦溪论坛手机客户端---
2020-9-7 23:53
201楼
[联宇电脑] 电脑组装\维修\升级\企业单位电脑维护!
只看该作者
分享本楼
missClover
来自 江苏省
精华 0
注册 2020-6-19
今天发点风景照养养眼
---发自梦溪论坛手机客户端---
2020-9-8 21:02
202楼
MY0511相亲,一分钟注册,享一辈子幸福!
只看该作者
分享本楼
missClover
来自 江苏省
精华 0
注册 2020-6-19
油漆进行中………
---发自梦溪论坛手机客户端---
2020-9-10 20:43
203楼
买房、卖房、租房上镇江房产网!
只看该作者
分享本楼
missClover
来自 江苏省
精华 0
注册 2020-6-19
油漆第一遍腻子差不多了,墙面也明显好看了一点
,今天做了石膏线条安装,石膏线条选了哪种最简单的线条,感觉这个还是简单一点比较好,最主要为了以后不留卫生死角
---发自梦溪论坛手机客户端---
2020-9-13 18:57
204楼
MY0511相亲,一分钟注册,享一辈子幸福!
只看该作者
分享本楼
missClover
来自 江苏省
精华 0
注册 2020-6-19
今天抽空出去转了一圈,上午跑了好几个地方,感觉效率还是不错的
,厨房阳台和卫生间的吊顶已经定了下来,地板也趁现在搞活动定了下来,感觉装修上面,有的东西可以将就,但是该花钱的地方还是要花的
,所以对于地板还是选择了圣象的多层实木地板,虽然价格是有点高,但还是认了(也许就是心里作用,感觉品牌的更环保
)。对于开关面板也是再三考虑选择了线下购公牛的牌子,其实现在网购跟在实体店买是差不多的价格,因为价格都透明了,感觉还是在实体店买比较方便
,所以我们也随大流选择了一款现在比较流行的星空灰面板开关
---发自梦溪论坛手机客户端---
2020-9-15 21:45
205楼
买房、卖房、租房上镇江房产网!
只看该作者
分享本楼
missClover
来自 江苏省
精华 0
注册 2020-6-19
今天腻子打磨已经结束了,接下来就开始刷乳胶漆了
,今天师傅已经把材料送来了,很期待刷出来的效果哦
,不过现在已经感觉墙面已经很白了
---发自梦溪论坛手机客户端---
2020-9-18 20:13
206楼
[联宇电脑] 电脑组装\维修\升级\企业单位电脑维护!
只看该作者
分享本楼
捕蛇者
来自 江苏省
精华 0
注册 2008-1-20
行业 政府行政
楼主也短我个全屋定制的柜子的品牌以及价格,谢谢
---发自vivo---
2020-9-18 22:54
207楼
买房、卖房、租房上镇江房产网!
只看该作者
分享本楼
missClover
来自 江苏省
精华 0
注册 2020-6-19
QUOTE:
原帖由
捕蛇者
于 2020-9-18 22:54 发表
楼主也短我个全屋定制的柜子的品牌以及价格,谢谢
好的
---发自梦溪论坛手机客户端---
2020-9-19 21:04
208楼
MY0511相亲,一分钟注册,享一辈子幸福!
只看该作者
分享本楼
missClover
来自 江苏省
精华 0
注册 2020-6-19
装修不易,找到一个负责人的装修公司更不易,昨天腻子打磨结束,今天项目李经理与工程部朱经理就一起带我们验收了墙面的打磨情况,说实话对于我们这些装修小白根本就看不出问题,只有他们专业人士通过专业的工具才能看出问题
,不过通过仪器检测都还不错,顺利过关
。所以通过几次的验收,我们感觉该公司还是很专业的
。
---发自梦溪论坛手机客户端---
2020-9-19 21:16
209楼
[联宇电脑] 电脑组装\维修\升级\企业单位电脑维护!
只看该作者
分享本楼
华舒设计装饰
来自 江苏省
精华
31
注册 2019-4-22
2020-9-23 11:24
210楼
MY0511相亲,一分钟注册,享一辈子幸福!
只看该作者
分享本楼
yusany
来自 江苏省
精华 0
注册 2014-12-25
QUOTE:
原帖由
missClover
于 2020-8-20 20:59 发表
已短
同问地砖和柜子的品牌,橱柜及浴室柜
2020-9-23 13:01
211楼
[联宇电脑] 电脑组装\维修\升级\企业单位电脑维护!
只看该作者
分享本楼
missClover
来自 江苏省
精华 0
注册 2020-6-19
墙面颜色选的都是淡淡的颜色,感觉还不错
,今天衣柜橱柜已经开始来安装了
,期待衣柜橱柜安装好之后的效果是我们预期的
---发自梦溪论坛手机客户端---
2020-9-23 15:58
212楼
0511家装频道:本地家居服务平台,数万业主共同选择
只看该作者
分享本楼
missClover
来自 江苏省
精华 0
注册 2020-6-19
QUOTE:
原帖由
yusany
于 2020-9-23 13:01 发表
同问地砖和柜子的品牌,橱柜及浴室柜
衣柜橱柜都是定制工厂店做的,不是品牌哦
---发自梦溪论坛手机客户端---
2020-9-23 16:04
213楼
0511家装频道:本地家居服务平台,数万业主共同选择
只看该作者
分享本楼
missClover
来自 江苏省
精华 0
注册 2020-6-19
衣柜已经差不多已经安装好了,明天还有橱柜,餐边柜安装一下就都差不多好了
---发自梦溪论坛手机客户端---
2020-9-24 19:27
214楼
[联宇电脑] 电脑组装\维修\升级\企业单位电脑维护!
只看该作者
分享本楼
hwq324
来自 江苏省
精华 0
注册 2015-7-10
麻烦楼主短一个瓷砖品牌和价格,以及全屋定制柜子的品牌和价格呗,万分感激!
2020-9-25 12:59
215楼
找工作,就上MY0511!
只看该作者
分享本楼
missClover
来自 江苏省
精华 0
注册 2020-6-19
QUOTE:
原帖由
hwq324
于 2020-9-25 12:59 发表
麻烦楼主短一个瓷砖品牌和价格,以及全屋定制柜子的品牌和价格呗,万分感激!
已短
---发自梦溪论坛手机客户端---
2020-9-25 18:03
216楼
0511家装频道:本地家居服务平台,数万业主共同选择
只看该作者
分享本楼
missClover
来自 江苏省
精华 0
注册 2020-6-19
再过两天就开始做吊顶了,感觉现在已经慢慢变成了我们当初所期待的效果
。今天出去转了一圈,窗帘也定下来了,希望安装以后的效果美美的
---发自梦溪论坛手机客户端---
2020-9-27 21:14
217楼
买房、卖房、租房上镇江房产网!
只看该作者
分享本楼
missClover
来自 江苏省
精华 0
注册 2020-6-19
今天石膏线条的师傅来把柜子周围的线条补上了,吊顶的也来安装了。
---发自梦溪论坛手机客户端---
2020-9-28 22:34
218楼
买房、卖房、租房上镇江房产网!
只看该作者
分享本楼
missClover
来自 江苏省
精华 0
注册 2020-6-19
---发自梦溪论坛手机客户端---
2020-10-1 13:33
219楼
0511家装频道:本地家居服务平台,数万业主共同选择
只看该作者
分享本楼
missClover
来自 江苏省
精华 0
注册 2020-6-19
---发自梦溪论坛手机客户端---
2020-10-6 21:12
220楼
MY0511相亲,一分钟注册,享一辈子幸福!
只看该作者
分享本楼
missClover
来自 江苏省
精华 0
注册 2020-6-19
姗姗来迟的橱柜台面今天终于来安装了
,装好之后的效果还是不错的
---发自梦溪论坛手机客户端---
2020-10-13 16:05
221楼
找工作,就上MY0511!
只看该作者
分享本楼
my0511唐老鸭
论坛小编
来自 江苏省
精华
3
注册 2013-8-6
行业 IT 通信
QUOTE:
原帖由
missClover
于 20-10-13 16:05 发表
姗姗来迟的橱柜台面今天终于来安装了,装好之后的效果还是不错的
清爽漂亮~~
2020-10-13 16:06
222楼
买房、卖房、租房上镇江房产网!
只看该作者
分享本楼
missClover
来自 江苏省
精华 0
注册 2020-6-19
今天一天的效率还是很高的
,定制的橱柜衣柜来把所有的门都安装好了
,门装上之后效果不错
。油烟机灶台和热水器今天师傅们也都来安装好了
,在此要特别点赞一下华帝燃具的安装师傅,本来预约的时间是明天下午才能来安装油烟机灶台,因为橱柜门今天就安装了,为了安装方便以及效果所以必须得在门装之前装油烟机比较好,于是我就抱着试试看给安装师傅打了电话说明了情况,后来安装师傅二话没说就抽空过来帮我安装了
---发自梦溪论坛手机客户端---
2020-10-14 20:05
223楼
[联宇电脑] 电脑组装\维修\升级\企业单位电脑维护!
只看该作者
分享本楼
大音希声5
来自 江苏省
精华 0
注册 2019-9-16
进度好快啊,效果敞亮
2020-10-15 14:50
224楼
MY0511相亲,一分钟注册,享一辈子幸福!
只看该作者
分享本楼
missClover
来自 江苏省
精华 0
注册 2020-6-19
今天师傅来安装灯具,在此我想说的是建议装友们能在实体店买的就在实体店买,虽然网购的价格会稍稍便宜那么一点点,但是如果遇到问题头疼的肯定是你
,在实体店买的遇到问题头疼就是商家了
,所以我当时也是斟酌了好久最后选择了实体店,实体店反正也是包安装包括以后的质保,今天师傅安装的时候就遇到了问题,这时候我就不用管了,问题都是店家跟厂家联系
,所以感觉自己选择了实体店购买还是正确的
---发自梦溪论坛手机客户端---
2020-10-15 19:09
225楼
0511家装频道:本地家居服务平台,数万业主共同选择
只看该作者
分享本楼
missClover
来自 江苏省
精华 0
注册 2020-6-19
厨房的吊顶因为橱柜台面的影响,所以吊顶一直被搁置到今天才全部结束,总之从开始到结束师傅都非常的负责,做事是一点脾气都没有
,顶吊好的效果也是非常不错的
---发自梦溪论坛手机客户端---
2020-10-16 21:40
226楼
0511家装频道:本地家居服务平台,数万业主共同选择
只看该作者
分享本楼
missClover
来自 江苏省
精华 0
注册 2020-6-19
今天移门房门都安装好了
,安装好了之后效果不错
---发自梦溪论坛手机客户端---
2020-10-18 18:40
227楼
[联宇电脑] 电脑组装\维修\升级\企业单位电脑维护!
只看该作者
分享本楼
missClover
来自 江苏省
精华 0
注册 2020-6-19
到了装修的后期真的是装装停停
,地板还要再过一天才能来安装
,好期待地板安装之后的效果哦
---发自梦溪论坛手机客户端---
2020-10-25 21:10
228楼
0511家装频道:本地家居服务平台,数万业主共同选择
只看该作者
分享本楼
1185974935
来自 江苏省
精华 0
注册 2014-4-11
行业 房产建筑
---发自梦溪论坛手机客户端---
2020-10-25 22:06
229楼
找工作,就上MY0511!
只看该作者
分享本楼
missClover
来自 江苏省
精华 0
注册 2020-6-19
今天一天房间的地板和所有的贴脚线条已经全部安装好了
,地板颜色感觉还是不错的,几乎没有色差
---发自梦溪论坛手机客户端---
2020-10-27 20:52
230楼
MY0511相亲,一分钟注册,享一辈子幸福!
只看该作者
分享本楼
算盘
来自 江苏省
精华 0
注册 2006-6-5
装修是件累并快乐的事,看着自己的小窝每天都有新变化,再多的付出都是值得的
,想问一下为什么地板最后选择了做地坪而没有打木楞,我也参考一下
2020-10-28 12:48
231楼
MY0511相亲,一分钟注册,享一辈子幸福!
只看该作者
分享本楼
L幂
来自 江苏省
精华 0
注册 2019-2-21
楼主,短我一个全屋定制的品牌跟价格,谢谢!
2020-10-28 14:14
232楼
买房、卖房、租房上镇江房产网!
只看该作者
分享本楼
轻轻浅浅
来自 江苏省
精华 0
注册 2013-10-16
楼主灯具选的漂亮,在哪买的,价格是多少,能短我一个吗,谢谢!
2020-10-28 15:31
233楼
找工作,就上MY0511!
只看该作者
分享本楼
missClover
来自 江苏省
精华 0
注册 2020-6-19
今天漆工师傅来找补,小缝补过之后效果就是不一样
,估计明天就进行最后一遍的油漆了
,在此我要特别点赞一下我们家的漆工师傅,虽然他帮我家做了这么久,但是我还真不知道他姓什么
,我每次看到他都是习惯性的称呼漆工师傅
,说实话这个漆工师傅真的很负责任,有的事我们没想到的他都能帮我们想到
。真的,在此我们除了感谢还是感谢!
---发自梦溪论坛手机客户端---
2020-10-28 20:11
234楼
买房、卖房、租房上镇江房产网!
只看该作者
分享本楼
missClover
来自 江苏省
精华 0
注册 2020-6-19
QUOTE:
原帖由
算盘
于 2020-10-28 12:48 发表
装修是件累并快乐的事,看着自己的小窝每天都有新变化,再多的付出都是值得的,想问一下为什么地板最后选择了做地坪而没有打木楞,我也参考一下
最后选择地坪而没有选地板楞的原因是因为家人装修经验的推荐
---发自梦溪论坛手机客户端---
2020-10-28 20:16
235楼
[联宇电脑] 电脑组装\维修\升级\企业单位电脑维护!
只看该作者
分享本楼
missClover
来自 江苏省
精华 0
注册 2020-6-19
QUOTE:
原帖由
轻轻浅浅
于 2020-10-28 15:31 发表
楼主灯具选的漂亮,在哪买的,价格是多少,能短我一个吗,谢谢!
已短
---发自梦溪论坛手机客户端---
2020-10-28 20:17
236楼
0511家装频道:本地家居服务平台,数万业主共同选择
只看该作者
分享本楼
missClover
来自 江苏省
精华 0
注册 2020-6-19
QUOTE:
原帖由
L幂
于 2020-10-28 14:14 发表
楼主,短我一个全屋定制的品牌跟价格,谢谢!
我们家定制家具是在丹阳定制的
,谈不上什么品牌,但是材料是选的环保型的多层实木板。
---发自梦溪论坛手机客户端---
2020-10-28 22:59
237楼
买房、卖房、租房上镇江房产网!
只看该作者
分享本楼
镇江风尚大宅
来自 江苏省
精华
87
注册 2017-9-7
2020-10-29 18:41
238楼
买房、卖房、租房上镇江房产网!
只看该作者
分享本楼
镇江风尚大宅
来自 江苏省
精华
87
注册 2017-9-7
2020-10-29 18:41
239楼
买房、卖房、租房上镇江房产网!
只看该作者
分享本楼
missClover
来自 江苏省
精华 0
注册 2020-6-19
今天装潢公司已经安排人员去做了大保洁
,感觉专业的保洁就是不一样
,他们擦的玻璃门窗是真心干净
,保洁做完就剩最后一遍乳胶漆就全部结束了
---发自梦溪论坛手机客户端---
2020-10-29 20:02
240楼
找工作,就上MY0511!
只看该作者
分享本楼
missClover
来自 江苏省
精华 0
注册 2020-6-19
这几天就是送货安装
,今天一天感觉做了好多事
,床,餐桌,电视柜,茶几,还有空调都一起送货到家并安装到位了
---发自梦溪论坛手机客户端---
2020-10-31 20:15
241楼
[联宇电脑] 电脑组装\维修\升级\企业单位电脑维护!
只看该作者
分享本楼
新地标整装
来自 江苏省
精华 0
注册 2019-10-3
---发自华为---
2020-11-3 22:56
242楼
0511家装频道:本地家居服务平台,数万业主共同选择
只看该作者
分享本楼
missClover
来自 江苏省
精华 0
注册 2020-6-19
装修这个大工程今天终于全部完工了
,基本都达到了我们预期的效果
,在此感谢华舒装饰,感谢为我们工程付出的工程部经理(朱经理)
,感谢项目部经理(李经理)
,感谢我们的大设计师(石设计师)
,还有所有为工程付出辛勤劳动的工人们
{:爱你:}!您们辛苦了!感谢
---发自梦溪论坛手机客户端---
2020-11-7 19:36
243楼
MY0511相亲,一分钟注册,享一辈子幸福!
只看该作者
分享本楼
欢迎加入
来自 江苏省
精华 0
注册 2006-10-28
行业 房产建筑
咨询一下半包的价格,谢谢楼主
2020-11-12 11:44
244楼
[联宇电脑] 电脑组装\维修\升级\企业单位电脑维护!
只看该作者
分享本楼
missClover
来自 江苏省
精华 0
注册 2020-6-19
QUOTE:
原帖由
欢迎加入
于 2020-11-12 11:44 发表
咨询一下半包的价格,谢谢楼主
半包价格差不多是500元一个平方。
---发自梦溪论坛手机客户端---
2020-11-12 14:22
245楼
0511家装频道:本地家居服务平台,数万业主共同选择
只看该作者
分享本楼
my0511唐老鸭
论坛小编
来自 江苏省
精华
3
注册 2013-8-6
行业 IT 通信
好消息速报~您的日记已经成功入围2020万家基和装饰杯日记大赛人气奖PK赛,快来为自己的日记投票拉票吧~~~
http://bbs.my0511.com/f95b-t7814358z
2020-12-15 09:15
246楼
0511家装频道:本地家居服务平台,数万业主共同选择
只看该作者
分享本楼
莘茹
来自 江苏省
精华 0
注册 2014-11-5
楼主,短个全屋定制的品牌和价格,还有做美缝的联系方式
---发自iPhone XS Max---
2020-12-21 10:34
247楼
找工作,就上MY0511!
只看该作者
分享本楼
missClover
来自 江苏省
精华 0
注册 2020-6-19
QUOTE:
原帖由
莘茹
于 2020-12-21 10:34 发表
楼主,短个全屋定制的品牌和价格,还有做美缝的联系方式
已短
---发自梦溪论坛手机客户端---
2020-12-24 23:06
248楼
0511家装频道:本地家居服务平台,数万业主共同选择
只看该作者
分享本楼
perfect樱桃树
来自 江苏省
精华 0
注册 2015-2-4
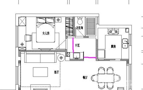
你好,想问下这两个位置的距离是多?感觉通道窄吗?
2021-1-29 16:06
249楼
[联宇电脑] 电脑组装\维修\升级\企业单位电脑维护!
只看该作者
分享本楼
missClover
来自 江苏省
精华 0
注册 2020-6-19
QUOTE:
原帖由
perfect樱桃树
于 2021-1-29 16:06 发表
你好,想问下这两个位置的距离是多?感觉通道窄吗?
两个位置的距离都在1米以上,通道不窄,挺好的!
---发自梦溪论坛手机客户端---
2021-2-1 22:20
250楼
0511家装频道:本地家居服务平台,数万业主共同选择
只看该作者
分享本楼
返回家庭装修
254
5/6
<
1
2
3
4
5
6
>
快速回复主题
游客
您目前还是游客,请
登录
或
注册
您目前是游客,本帖已被系统设置了自动关闭,不可回复!
文明交流,理性发言
0/5000字
<
>
请在打开的新窗口中支付完成打赏
我已完成支付打赏
支付失败重新支付
其他金额
打赏金额:
元
确定
支付打赏
提 现
打赏人
打赏金额(元)
打赏时间
华舒设计装饰
2.88
2020-6-23 19:02
红居装饰
1.11
2020-6-27 15:06
Powered by
Discuz! X 2
0.109093 s
清除 Cookies
-
镇江网友之家
-
手机版
论坛导航
关闭
吃喝玩乐
饮食男女
镇江钓友之家
菜菜鸟户外
镇江单车俱乐部
镜头里的镇江
畅游天下
猫狗总动员
视觉Coffeeshop摄影部落
花鸟鱼虫
婚姻.亲子.家庭
家有学子
谈婚论嫁
女性天地
母婴乐园
婚姻生活
梦溪佳缘
装修
家庭装修
装修招标
镇江室内设计师交流
装修商家直通车
你好,镇江!
百姓话题
我要买房
0511爱心家园
市场监管•12315热线
分类信息
生活服务
闲置转让
镇江二手房/镇江租房
镇江招聘求职
教育培训
镇江二手车
商铺厂房写字楼租售
宠物市场
运动健身
卡券交易
电脑维修升级
杂货铺
其他分类信息区
兴趣爱好
HiFi音响江城沙龙
镇江市美术家协会
我爱模型
车友俱乐部
车迷之家
汽车驾培中心
运动俱乐部
镇江市冬泳、铁人三项协会
聚焦足球
镇江羽毛球
镇江乒乓球协会
镇江网球协会
镇江市自行车运动协会
热爱篮球
动力机车
合作栏目
维权热线
天翼时代
色觉影像摄影工作室
站务区
疑问与建议
网络问政
市政府工作部门
垂直管理部门
党群工作部门
其他重点单位
辖市(区)