
瑞阳装饰免费参观样板房活动是为即将装修的童鞋打造的装修体验式活动
零距离走进正在装修及装修好的样板房
从业资深人士在工地进行现场讲解设计/施工知识/答疑解惑
如果您即将准备装修,赶快加入我们吧!
样板房活动

集合时间:2017月4月9日(星期天上午9点)
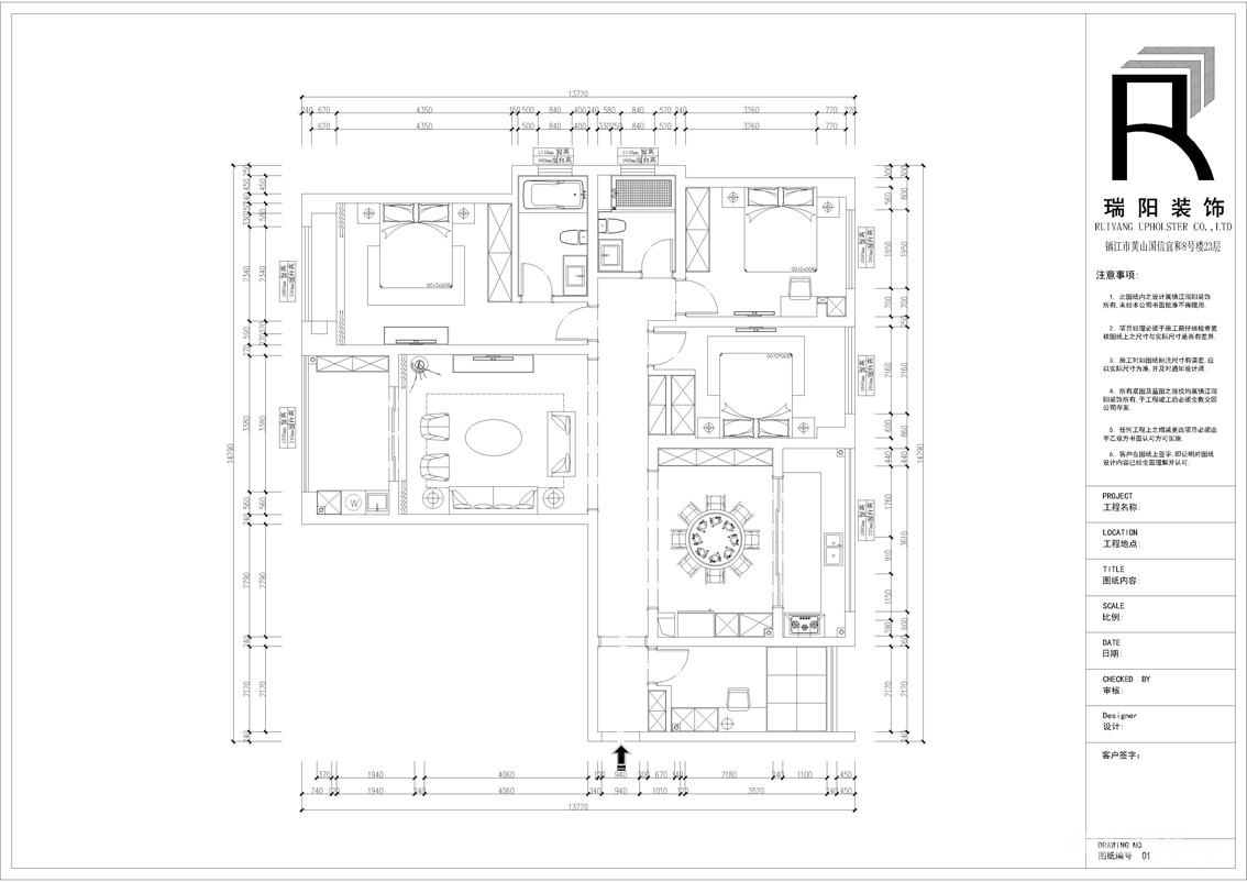
集合地点:镇江瑞阳装饰公司(国信宜和8栋23层)
活动流程:
9:00:公司签到
9:30:出发参观样板房
第一站参观水电样板:北固湾1栋
第二站参观成品样板:中南世纪城大三期11栋
11:30:用餐
12:30(用餐后):设计咨询(为了参观及咨询效果限20户)
装修课堂主讲人
神秘人
如何搞装修
如何看懂装修预算
如何把控装修中的重点
让您在最短的时间内 学装修、看装修、 懂装修!
装修核心你来我就教!
往届样板房活动展示

部分工艺展示



关注我们了解更多

家装咨询微信号:

瑞阳装饰0511主页:
http://bbs.my0511.com/f733b#lidf87bqslwvbx5tav
瑞阳装饰求骚扰热线
Q Q:2652755580
手 机:18261952777 (免费量房、出方案、陪唠嗑……)
公司电话:0511-88803222
公司地址:国信宜和8号楼23层(黄山加油站斜对面)

样板房信息
水电样板房
【业主】:高先生
【建筑面积】:150平米
【装修风格】:欧式
【设计师】:周娟

平面方案图

效果图




整体完工样板房
【业主】:李女士
【建筑面积】:135平米
【装修风格】:新中式
【设计师】:童斌

实景图


[ 本帖最后由 瑞阳装饰客服2 于 17-4-9 15:34 编辑 ]

























借您吉言。如有需要可以报名哦。

